Basílica de la Asunción de Nuestra Señora
| Basílica de la Asunción de Nuestra Señora | ||
|---|---|---|
| Parte de un lugar patrimonio de la República Checa | ||
![]() | ||
| Localización | ||
| País | República Checa | |
| División | Old Brno | |
| Dirección | Mendlovo náměstí (1) | |
| Coordenadas | 49°11′31″N 16°35′40″E / 49.191908333333, 16.594425 | |
| Información religiosa | ||
| Culto | Iglesia católica | |
| Diócesis | diócesis de Brno | |
| Advocación | Asunción de María | |
| Patrono | Virgen María | |
| Historia del edificio | ||
| Fundación | 1323 | |
| Fundador | Isabel Riquilda de Polonia | |
| Datos arquitectónicos | ||
| Estilo | arte gótico | |
| Planta del edificio | ||
![]() | ||
| Sitio web oficial | ||
La basílica de la Asunción de Nuestra Señora en la antigua abadía de Brno es un templo conventual monumental de estilo gótico.[1] Fue fundada en 980-1020 por el señor o monarca desconocido en Moravia. Fue construido sobre un antiguo santuario de finales del siglo X en un corto tiempo en los años 1323 a 1334 por instigación de la reina Isabel Richeza.[2] Es el templo más estilísticamente coherente y mejor conservado de las Tierras de la Corona de Bohemia, siendo por ello una joya de la arquitectura gótica de la corona de las Tierras de Bohemia.[3] Pertenece a la diócesis de Brno.
Historia
En 1323, la doble reina la viuda real Isabel Richeza, fundó un convento cisterciense (en latín: Aulae Sanctae Mariae) junto a la iglesia parroquial prerrománica más antigua de Oure Lady en el Viejo Brno. Después de su muerte en 1335, Isabel Richeza encontró su lugar de entierro de descanso final en la basílica. El lugar está marcado por la letra „E“ con una pequeña corona tallada en el pavimento de la iglesia.
En el siglo XVIII, el interior de la iglesia fue reconstruido en estilo barroco. Ese período también fue testigo del acabado de los edificios barrocos de la Abadía. En 1783, la abadía de clausura del emperador austriaco José II se disolvió en Old Brno (reformas josefinistas) y ordenó a los agustinos que se mudaran a Old Brno desde su monasterio original de Santo Tomás que estaba situado frente a la puerta Běhounská (Porta Rhenensis), más tarde plaza Lažansky (lo que ahora es Moravské náměstí).
Los agustinos también tenían un glorioso «altar de plata» [4] con un baldaquino hecho en Augsburgo y erigido cuando se coronó el icono de la Virgen Negra en 1736. En la Fiesta de la Asunción de Nuestra Señora se celebra cada año una peregrinación el 15 de agosto en la basílica para venerarla como Protectora de la ciudad de Brno.
Fue promovida en 1987 por Juan Pablo II al rango de basílica menor.
Arquitectura
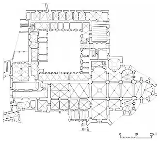
Es de arquitectura típica cisterciense, construida en estilo gótico, de planta cruciforme con nave principal, crucero y dos naves laterales. La nave y sus naves laterales tienen bóveda de crucería. La nave y su crucero un techo abovedado de más de 22 m de alto. El triple coro consta del coro derecho en el este y dos capillas laterales en disposición cruciforme. El crucero está separado de la nave por unos macizos arcos fajones. Todo el cuerpo del edificio tiene 34 ventanas de tracería, la mayoría de ellas triplicadas. Nueve de ellos con arco ojival, 14 con arco equilátero. Se construyó principalmente con ladrillo visto ( bono flamenco ), el primer edificio gótico de ladrillo de la región, pero también se utilizó piedra (para arcos, quoins, estalactitas, troneras, estalactitas, mesas de agua, pliths gárgolas) del área local. Cantera Stránská skála – piedra caliza crinoideo. Tiene una longitud interior de 67,45 metros, un ancho de 28,4 metros y una altura hasta el techo de 23,07 metros, 40 en el crucero . Como las típicas iglesias cistercienses, no tiene torre, solo una pequeña flecha (aguja), en el crucero. Consta de una nave central y dos naves laterales, con el transepto cruzando la nave y los pasillos. El lado sur del transepto tiene ahora una entrada.
-
Altar mayor erguido 1736 -
Vista desde la cercana plaza Gregor Mendel al noroeste
-

Personas destacadas
- Isabel Richeza - Reina
- Juan de Bohemia - Rey y cofundador
- Enrique de Lipá - Gobernador y Magnate, cofundador
- Gregor Mendel - Abad y científico[5]
- Leoš Janáček - Compositor
- František Klácel - Sacerdote
- Francis Thomas Bratranek - Sacerdote y Rector de la Universidad de Cracovia
- Pavel Křížkovský - Compositor y fraile
Servicios
Sus servicios religiosos regulares son misas:
- Domingo: 07:30, 09:00, 11:00
- Martes: 18:00
- Miércoles: 18:00
- Jueves: 18:00
- Viernes: 18:00
- Sábado: 08:00
Véase también
Referencias
- ↑ AUGUSTINIAN ABBEY WITH THE BASILICA OF THE ASSUMPTION OF THE VIRGIN MARY IN BRNO
- ↑ Basilica of the Assumption of Our Lady (Bazilika Nanebevzetí Panny Marie)
- ↑ The Augustinian Abbey of St Thomas in Old Brno
- ↑ Silver Altar and Coronation Set Also known as:The Moravian palladium; Thaumaturga; The Madonna of Old Brno
- ↑ Mendel: The Man, The Monk, The Scientist, Anderson Eric, and Anderson Nancy, MD magazine, June 04 2012
Otras lecturas
- KUTAL, Albert, (1972) El arte gótico en Bohemia y Moravia . Londres/Nueva York, Hamlyn ISBN
- BOEHM, Bárbara Drake; et al (2005). Praga: La Corona de Bohemia, 1347-1437 . Nueva York: Museo Metropolitano de Arte .ISBN 1588391612
- HLOBIL, Ivo (eds. 2000), Las últimas flores de la Edad Media. Del Gótico al Renacimiento en Moravia y Silesia . Olomouc/Brno.ISBN 80-85227-40-1
- SAMEK, Bohumil (1993), Klášter augustiniánů v Brně . UNP de Brno. 62 págs.ISBN 80-85032-19-8 (en checo)

