Casa Frank W. Thomas
| Casa Frank W. Thomas | ||
|---|---|---|
| Lugar inscrito en el Registro Nacional de Lugares Históricos | ||
![]() | ||
| Localización | ||
| País | Estados Unidos | |
| Ubicación | Oak Park | |
| Dirección | 210 Forest Ave. | |
| Coordenadas | 41°53′26″N 87°48′00″O / 41.890556, -87.8 | |
| Información general | ||
| Estilo | Prairie School | |
| Declaración | 14 de septiembre de 1972 | |
| Diseño y construcción | ||
| Arquitecto | Frank Lloyd Wright | |
La Casa Frank W. Thomas es una casa histórica ubicada en 210 Forest Avenue en el suburbio de Chicago de Oak Park, en el estado de Illinois (Estados Unidos). El edificio fue diseñado por el arquitecto Frank Lloyd Wright en 1901 y construido en la Prairie School of Architecture desarrollada por Wright. El 14 de septiembre de 1972 se agregó al Registro Nacional de Lugares Históricos.[1]
Arquitectura
Para describir la cohesión y la complejidadde esta obra, Wright evocó la unidad orgánica de una flor en flor.[2] La casa también incluye muchas de las características que se asociaron con el estilo Prairie, como un techo bajo con voladizos anchos, ventanas abatibles, estantes y gabinetes empotrados, ventanas de vidrio emplomado ornamentadas y chimeneas centrales. Tallmadge & Watson, una firma de Chicago que se convirtió en parte de la Prairie School of Architects, agregó una adición a la parte trasera de la casa en 1923.[1]
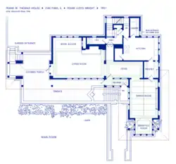
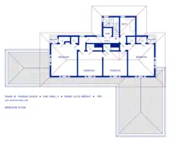
Su planta tiene forma de L.[2] En su interior se enfatizan los planos horizontales la interconexión de distintos volúmenes arquitectónicos mediante ventanas de cinta y marcapianos.[2] El sótano está elevado al nivel del suelo y las habitaciones están en un segundo piso.[2] Para acceder a la casa hay que atravesar un jardín amurallado con un arco.[2] La residencia cuenta a su vez con unas escaleras que serpentean hacia la terraza y la entrada.[2]
La decoración comprende molduras, adornos geométricos en la boiserie, y motivos florales abstractos en las puertas.[2]
Galería
-
Vista desde la calle -
Jardín -
Exterior -
Plano de la planta principal -
Plano del segundo piso
Véase también
Referencias
- ↑ a b Bell, Robert A. (4 de julio de 1972). "National Register of Historic Places Inventory - Nomination Form: Frank Thomas Residence" (PDF). Illinois Historic Preservation Agency. Archivado desde el original (PDF) el 15 de abril de 2016.
- ↑ a b c d e f g «Frank Thomas House | Frank Lloyd Wright Trust». flwright.org. Consultado el 5 de febrero de 2022.
