Casa de Tlaxcala
| Casa de Tlaxcala | ||
|---|---|---|
| Monumento histórico | ||
![]() Vista del patio de la casa | ||
| Ubicación | ||
| País |
| |
| División |
| |
| Municipio |
| |
| Dirección | 06020 | |
| Ubicación | San Ildefonso 40 | |
| Coordenadas | 19°26′11″N 99°07′50″O / 19.4365, -99.1305 | |
| Características | ||
| Tipo | Arquitectura doméstica | |
| Estilo | Barroco novohispano | |
| Historia | ||
| Construcción | siglo XVIII | |
| Información general | ||
| Uso | Sede de la representación del gobierno del estado de Tlaxcala en la Ciudad de México | |
| Administrador | Gobierno del estado de Tlaxcala | |
| Protección | ||
| Declaración |
Monumento histórico | |
| ID | I-09-02565 | |
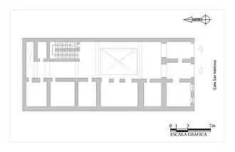
| Planta y mapa | ||
![]() | ||
La Casa de Tlaxcala se encuentra en el número 40 de la calle de San Ildefonso en el centro histórico de la Ciudad de México y es un buen ejemplo de una casa típica de clase media del siglo XVIII, lo que significa que su estilo se encuentra en algún sitio entre las mansiones de los ricos y las casas de los plebeyos de la época.[1]
La fachada exterior tiene dos niveles, con la mayoría de su superficie cubierta de tezontle, una piedra volcánica de color rojo sangre, y con chiluca, una piedra blanca grisácea, para enmarcar las ventanas y puertas. En la parte inferior de la fachada, las persianas que cubren las ventanas llegan a la cornisa. La puerta principal conduce a un hall de entrada que da al patio interior. Sólo tres de los cuatro lados tienen pasillos y habitaciones. El cuarto lado es una simple pared. Los corredores norte y sur tienen arcos y el corredor norte, tiene un techo con pesadas vigas. La escalera que conduce a la planta superior está iluminada por un candil octogonal.[1]
El escritor José Martí habitó la casa a finales del siglo XIX y en la entrada del edificio hay una placa que hace alusión a este hecho.[1][2] Actualmente aloja la delegación del Estado de Tlaxcala en el gobierno federal en la Ciudad de México.[2]
Véase también
- Iglesia de San Bernardo
- Casa de los condes de la Torre Cossío y de la Cortina
- Casa Borda
- Casa de la Marquesa de Uluapa

