Edificio Alonso
| Edificio Alonso | ||
|---|---|---|
|
Edificio Alonso | ||
| Localización | ||
| País | España | |
| Ubicación |
Valencia, | |
| Dirección | C/ Sant Vicent n.º 71-73, Valencia | |
| Coordenadas | 39°28′05″N 0°22′47″O / 39.468053, -0.3797 | |
| Información general | ||
| Usos | residencial | |
| Estilo | Racionalismo valenciano | |
| Inicio | 1935 | |
| Finalización | 1940 | |
| Construcción | 1940 | |
| Diseño y construcción | ||
| Arquitecto | Luis Albert Ballesteros | |
El edificio Alonso está situado en la calle Sant Vicent número 71 y 73 de la ciudad de Valencia (España), situado en los terrenos que ocupaba el convento de Jerusalén, en el ensanche de Cuart-Extramuros, en un interesante emplazamiento ya que allí se produce la confluencia de la calle San Vicente, vía principal de penetración, con la ronda de la ciudad histórica.
El edificio fue un encargo de Carmen Alonso Lacámara en el año 1935 al arquitecto Luis Albert Ballesteros. La construcción del edificio se prolongó durante cuatro años, desde 1936 a 1940.
Descripción
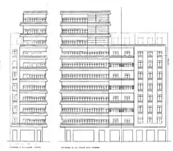
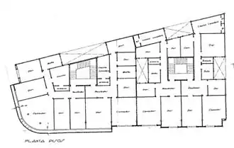
El solar está en una esquina con fuertes condicionantes geométricos. La forma de parcela es trapezoidal; la esquina forma un ángulo un poco mayor de 90 grados, siendo el desarrollo de la fachada a la calle Xàtiva bastante inferior al de la calle San Vicente. La dimensión transversal es por tanto mucho menor que la longitudinal; además, el solar va ganando profundidad a medida que nos alejamos de la esquina a lo largo de la calle San Vicente; con lo que es prácticamente una figura triangular donde se inscribe la planta del edificio.
Presenta un volumen realzado en la misma esquina a modo de torre, que emerge respecto de los cuerpos laterales. Así, la esquina queda enfatizada por su resolución volumétrica y por su formalización plástica, a modo de balcones corridos que se curvan en la esquina; constituyendo una imagen muy singular y muy moderna. Por tanto, se establece un interesante diálogo entre el cuerpo sobreelevado que, a través de la horizontalidad de sus voladizos, sus juegos de sombras y su elegante curvatura, contrasta con los cuerpos laterales, con un tratamiento de fachada más neutro, que hace de transición con las edificaciones colindantes.
El edificio responde a un programa residencial, con bajos destinados a uso comercial y el resto destinado a viviendas. Estas se estructuran según dos núcleos de comunicaciones verticales centrados e independientes, que dan servicio a dos viviendas por planta (en total, cuatro) hasta la planta séptima, y a una vivienda por planta en la planta de áticos. En la torre, ya sólo un núcleo de comunicaciones verticales, da servicio a un estudio por planta, en la novena y la décima. La estructura general del edificio responde a forjados metálicos revestidos de cemento y soportes metálicos o de hormigón armado. Para los paramentos interiores y de cierre se utilizan placas ligeras, bloques de hormigón o ladrillo perforado para aligerar peso. La carpintería exterior es metálica con persianas enrollables.
El proyecto está inspirado en las corrientes expresionistas alemanas, concretamente en los almacenes Schocken de Mendelsohn. Manifiesta esa imagen moderna del rascacielos urbano que llega a conseguir un gran dinamismo ejerciendo de referente visual en un espacio importante de la ciudad, con la solución de esquina del volumen curvado realzado, con el juego de masas y sombras de voladizos y balcones y con el cuidadoso tratamiento de las carpinterías. En estos términos vanguardistas, destaca la solución de fachada acristalada dispuesta en bandas horizontales continuas que además doblan la esquina respondiendo a la superficie cilíndrica del chaflán, en la que se abandona la tradicional composición de la fachada con seriación de huecos. La imagen del edificio responde perfectamente al lugar estratégico en el que está situado, configurándose como un hito urbano.
Planos
-
Fachadas. -
Planta tipo.
Referencias
- VV.AA. (David Urios Mondéjar) Registro de Arquitectura del siglo XX en la Comunidad Valenciana ISBN 84-87233-38-4
Enlaces externos
Wikimedia Commons alberga una categoría multimedia sobre Edificio Alonso.
- Edificio Alonso en la base de datos de la Fundación Docomomo Ibérico.