El Helicoide
| El Helicoide | ||
|---|---|---|
![]() | ||
| Localización | ||
| País | Venezuela | |
| Ubicación | Parroquia San Pedro | |
| Dirección | Avenida Nueva Granada y Avenida Presidente Medina | |
| Coordenadas | 10°29′21″N 66°54′36″O / 10.4892, -66.9101 | |
| Información general | ||
| Usos | Centro de tortura, prisión y sede del Servicio Bolivariano de Inteligencia Nacional (SEBIN) | |
| Inicio | Gobierno de Marcos Pérez Jiménez con intenciones de funcionar como centro comercial | |
| Inauguración | En 1984 como sede de la DISIP | |
| Ocupante | Universidad Nacional Experimental de la Seguridad, Dirección de los Servicios de Inteligencia y Prevención y Servicio Bolivariano de Inteligencia Nacional | |
| Diseño y construcción | ||
| Arquitecto | Pedro Neuberger, Dirk Bornhorst y Jorge Romero Gutiérrez | |
| Información militar | ||
| Eventos | Motín en El Helicoide | |
El Helicoide, formalmente conocido como el Centro de Procesados y Penados Área Metropolitana de Caracas I, es un edificio ubicado en la parroquia San Pedro de Caracas, Venezuela, el cual sirve como sede del Servicio Bolivariano de Inteligencia Nacional (SEBIN) y como centro penitenciario. El Helicoide es conocido también como uno de los centros de tortura más grandes de América.[1][2]
Durante el mandato de Nicolás Maduro, el edificio se ha convertido en una prisión de alto perfil para detenidos políticos, donde se han documentado torturas sistemáticas y violaciones graves de derechos humanos. Los presos han reportado haber sido golpeados, electrocutados, colgados de las extremidades, forzados a adoptar posiciones estresantes y obligados a sumergir el rostro en una bolsa con heces mientras respiraban.[3]
Se encuentra ubicado en Roca Tarpeya, en la parroquia San Pedro (una de las 32 parroquias del Área Metropolitana de Caracas). Originalmente, durante su construcción, el presidente Marcos Pérez Jiménez proyectó que el edificio funcionara como un centro comercial. Sin embargo, en 1984 se convirtió en la sede de la Dirección de los Servicios de Inteligencia y Prevención (DISIP), transformándose en el principal centro de investigaciones policiales. En 2010, el entonces presidente Hugo Chávez ordenó que se utilizara como sede del SEBIN y también como centro penitenciario. El Helicoide tiene una forma helicoidal o espiral y está construido sobre una colina.[4]
Historia

El Helicoide inicialmente planeado como un centro comercial avanzado durante el gobierno de Marcos Pérez Jiménez. Tras el derrocamiento de Pérez Jiménez en 1958, el proyecto quedó inconcluso.[5] Su construcción se emprendió por una compañía privada, la primera etapa de la obra concluyó en 1961. Fue diseñada por los arquitectos Pedro Neuberger, Dirk Bornhorst y Jorge Romero Gutiérrez. La obra estaría conformada por un centro comercial y exposición de industrias, un hotel cinco estrellas, un parque, un club de propietarios y en séptimo nivel un palacio de espectáculos. La particularidad de la obra era que los automóviles una vez ingresaran a la edificación por medio de rampas en ella se encontrarían locales comerciales con estacionamiento, estas rampas recorrerían 4 km en seis niveles bordeando la colina sobre la cual fue construida.[6]
La paralización de las obras en 1961 se debió a problemas presupuestarios. Ese mismo año, el proyecto fue exhibido en el Museo de Arte Moderno de Nueva York hasta que en 1965 se intentan retomar los trabajos para concluirlos en 1967 incluyendo un área para aerotaxis, pero tampoco fue continuada.[7] Para 1982 se logra concluir solamente la cúpula geodésica de aluminio como remate superior de la infraestructura de concreto. A partir de 1984, con mucha lentitud y sin responder a un proyecto global, se fueron instalando en la edificación algunos organismos del Estado, el más importante de los cuales fue la Dirección de los Servicios de Inteligencia y Prevención (DISIP). Por este motivo, la cúpula resultó seriamente afectada por un bombardeo en el Segundo intento de golpe de Estado de Venezuela de 1992 y con respuesta antiaérea desde ella. Luego la cúpula sería reparada. Desde 2010 una parte de la edificación sirve como sede de la Universidad Nacional Experimental de la Seguridad (UNES).
Actualidad y tortura

El Helicoide fue reutilizado como centro de detención,[5] esta reasignación del uso del edificio ha sido objeto de informes por parte de organizaciones de derechos humanos, quienes han señalado que El Helicoide se ha utilizado para detener a disidentes políticos. Estas afirmaciones se basan en testimonios de personas que han estado detenidas en el lugar, así como en informes de organizaciones tanto locales como internacionales.[5]Actualmente es conocido como uno de los centros de tortura más grandes de América.[1][2]
La función de El Helicoide en el contexto político de Venezuela ha sido documentada por diversas organizaciones, incluyendo Human Rights Watch y el Foro Penal Venezolano. Estas entidades han informado sobre las condiciones dentro del edificio y lo han relacionado con un patrón de presuntas violaciones de derechos humanos en el país.El 16 de mayo de 2018 los reclusos y presos políticos del Helicoide se amotinaron como medida de protesta ante la golpiza que le fue propinada a Gregory Sanabria. Patricia Gutiérrez, esposa de Daniel Ceballos, denunció que Sanabria habría sido golpeado por presos comunes, originando la protesta de los opositores; según ella, la policía respondió con gases lacrimógenos y perdigones. Entre los reclusos se encontraba el estadounidense Joshua Holt; la embajada de Estados Unidos en Caracas expresó su preocupación porque Holt y otros ciudadanos estadounidenses estuviesen en peligro.[8]
Daniela Figueredo, apresada en octubre de 2020, acusada de posesión de material estratégico,[9] fue asesinada el 13 de marzo de 2021, a los diecinueve años, por el funcionario policial Daniel Galarraga cuando manipulaba su arma de reglamento dentro del calabozo, una pistola Pietro Beretta modelo 92FS, y le disparó en el rostro.[10][11] Fue trasladada al Hospital General Eugenio Bellard de Guatire, donde llegó sin signos vitales.[9] La ONG Una Ventana a la Libertad, que defiende los derechos de los detenidos, señaló que el hecho ocurrió cuando el funcionario intentó abusar sexualmente de ella. La organización recogió testimonios de seis reclusas que permanecían en la celda,[12] quienes denunciaron que son «hostigadas y obligadas a mantener relaciones sexuales» con funcionarios del cuerpo policial a cambio de beneficios.[10][13][14] La información también se la brindaron a los funcionarios del Cuerpo de Investigaciones Científicas, Penales y Criminalísticas (CICPC).[15] Diputados, activistas y defensores de derechos humanos empezaron a elaborar un informe sobre el asesinato para remitirlo a la alta comisionada de derechos humanos de las Naciones Unidas, Michelle Bachelet,[16] y a la Oficina de la relatora para las Personas Detenidas de la Comisión Interamericana de Derechos Humanos, una instancia que Venezuela abandonó en 2013.[10][13]
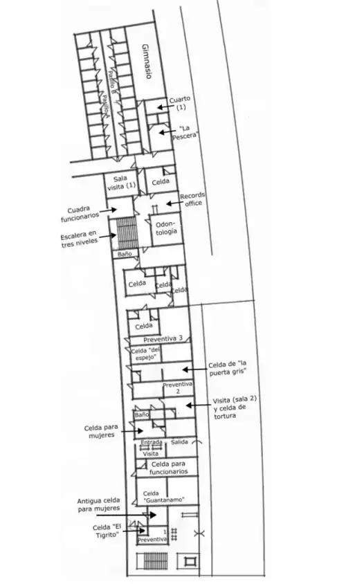
Celdas
El Helicoide originalmente contaba con una celda conocida como “Preventiva I” en su Área de Acceso, también conocida como el “Infiernito”, con unas dimensiones de 3 x 5 metros y donde eran recluidos los recién llegados. Para 2014, era la única celda de este tipo, pero cuando las detenciones comenzaron a aumentar, se crearon tres áreas adicionales más adelante, conocidas como “Preventiva II”, “Preventiva III” y “Preventiva IV”. Para 2015, Preventiva I estaba destinada para presos comunes, mientras que las otras tres celdas estaban destinadas para estudiantes, usuarios de Twitter y manifestantes.[17][18]
Una de las celdas más grandes en El Helicoide fue denominada como la celda “Guarimbero”, a su vez un anejo de la celda “Guantánamo”. Mientras que en “Guantánamo” se recluía a la mayoría de los detenidos por motivos no políticos, los detenidos arrestados durante protestas u opositores eran encarcelados en la celda “Guarimbero”. Ambas celdas han estado hacinadas y en malas condiciones, sin acceso a agua o a baños, y donde los reclusos han tenido que dormir en el suelo.[17]
Otras celdas de castigo o espacios de castigo incluyen los siguientes:[18]
- Las Escaleras
- El Tigrito
- Bañito
Dimensiones
- Superficie total: 101.940 m²
- Área construida: 77.748 m²
- Locales comerciales: 46.715 m²
- Vías y áreas verdes: 29.192 m²
- Área de exposición e industria: 8.445 m²
Véase también
- La Tumba
- DGCIM de Boleíta
- Motín en El Helicoide
- Escuela de Mecánica de la Armada
- Historia de Caracas
- Víctor Navarro
- Tortura en Venezuela
- Anexo:Prisiones de Venezuela
Referencias
- ↑ a b «El Helicoide: el centro comercial de Venezuela que se convirtió en un sitio de torturas». BBC. 25 de enero de 2019.
- ↑ a b «"Conferencia magistral" sobre derechos humanos de Monedero en el Helicoide, uno de los mayores centros de tortura de América». El Mundo. 18 de enero de 2025. Consultado el 1 de febrero de 2025.
- ↑ «“La tortura no se acaba cuando sales”: la realidad virtual muestra el horror del peor centro de detención de Venezuela». El País. 03-07-2023.
- ↑ «El Helicoide: de proyecto de centro comercial a epicentro de las torturas en Iberoamérica». Gaceta. 04-08-2024.
- ↑ a b c Williams Perdomo (27 de noviembre de 2023). «Es lo más cercano al infierno": el testimonio de los ex presos políticos de Venezuela que estuvieron en El Helicoide, "el centro de tortura más grande de América Latina».
- ↑ Lo Monaco, Annalisa (18 de julio de 2017). «El Helicoide: Splendida icona dell'Architettura Venezuelana trasformata in Carcere». Vanilla Magazine (en italiano). Consultado el 2 de mayo de 2018.
- ↑ «El Helicoide continúa siendo un veremos». Archivado desde el original el 2 de octubre de 2002.
- ↑ «El Helicoide: Presos políticos de Venezuela continúan toma de tenebrosa cárcel». El Comercio. 17 de mayo de 2018. Consultado el 17 de mayo de 2018.
- ↑ a b Blanco, Felícita (16 de marzo de 2021). «Detienen a oficial que disparó a Daniela Figueredo por negarse ser abusada». El Carabobeño. Consultado el 25 de marzo de 2021.
- ↑ a b c «Denunciarán ante ONU asesinato de mujer bajo custodia del Estado en Venezuela». Deutsche Welle. 16 de marzo de 2021. Consultado el 25 de marzo de 2021.
- ↑ «Alimentos y seguridad por sexo, el drama de las presas venezolanas, por Carlos Nieto Palma». Runrunes. 19 de marzo de 2021. Consultado el 25 de marzo de 2021.
- ↑ «AN opositora presentará caso de Daniela Figueredo ante oficina de Bachelet y Cidh». El Pitazo. 17 de marzo de 2021. Consultado el 25 de marzo de 2021.
- ↑ a b «Diputados remitirán a Bachelet un informe sobre el asesinato de una mujer a manos de un polizamora». El Nacional. Agencia EFE. 17 de marzo de 2021. Consultado el 25 de marzo de 2021.
- ↑ «Denuncian que mujeres son obligadas a tener sexo con funcionarios por beneficios en calabozos». Crónica Uno. Consultado el 25 de marzo de 2021.
- ↑ «Imputaron por homicidio intencional a oficial tras asesinato de mujer en calabozos de Guatire». Crónica Uno. 18 de marzo de 2021. Consultado el 25 de marzo de 2021.
- ↑ «Respeto al derecho a la verdad y la vida es tarea pendiente en Venezuela». Transparencia Venezuela. Consultado el 25 de marzo de 2021.
- ↑ a b Misión Internacional Independiente de determinación de los hechos sobre Venezuela, ed. (12 de septiembre de 2022). Crímenes de lesa humanidad cometidos a través de los servicios de inteligencia del Estado: estructuras y personas involucradas en la implementación de un plan para reprimir la oposición al gobierno. p. 87.
- ↑ a b Misión Internacional Independiente de determinación de los hechos sobre Venezuela, ed. (15 de septiembre de 2020). Conclusiones detalladas de la Misión internacional independiente de determinación de los hechos sobre la República Bolivariana de Venezuela. p. 90.
Bibliografía
- Olalquiaga, Celeste; Blackmore, Lisa (2018). Downward Spiral: El Helicoide's Descent from Mall to Prison (en inglés). Terreform/Urban Research. ISBN 9781947198005.
Enlaces externos
- El Helicoide, el "mayor centro de tortura en Venezuela" - DOCUMENTAL BBC, YouTube.
- CESCOS (3 de mayo de 2024). «Ecos de libertad: historias de El Helicoide». YouTube.
Wikimedia Commons alberga una categoría multimedia sobre El Helicoide.
