Ermita del Cristo de Cataláin
| Ermita del Cristo de Cataláin | ||
|---|---|---|
| bien de interés cultural | ||
![]() | ||
| Localización | ||
| País | España | |
| División | Garínoain | |
| Coordenadas | 42°36′09″N 1°37′37″O / 42.602397, -1.627012 | |
| Información religiosa | ||
| Culto | catolicismo | |
| Diócesis | archidiócesis de Pamplona y Tudela | |
| Datos arquitectónicos | ||
| Estilo | arquitectura románica | |
| Identificador como monumento | RI-51-0008303 | |
| Año de inscripción | 26 de julio de 1993 | |
| Planta del edificio | ||
![]() | ||
La Ermita del Cristo de Cataláin, o con un título más completo, ermita del Santo Cristo de Cataláin, cerca de Garínoain (Navarra) es un conjunto de arquitectura románica en España, datado en el siglo XII, conservado y utilizado, que llegó a pertenecer a Colegiata de Santa María de Roncesvalles, hasta su desamortización. Pasó después a reconocerse como una ermita, dependiente de la parroquia de Garínoain; junto a él existían algunas viviendas. El nomenclátor de 1887 da el conjunto del templo y casas la denominación de caserío, actualmente solo queda la iglesia y algunas construcciones en ruina,.[1]
Situación
Está ubicado a un kilómetro del casco urbano de la localidad de Garínoain, en la Valdorba, junto a la carretera NA-5100 que une esta localidad con Leoz, a la entrada al valle formado por el río Cemoboráin (río Leoz).[2]
Historia
La primera noticia de Cataláin es del siglo XII, pues en 1203 o 1207 un pequeño monasterio de ese nombre fue donado a la Colegiata de Roncesvalles, que mantuvo esa propiedad hasta la desamortización de Mendizábal. Moret atribuye la donación al rey Sancho el Fuerte en 1203; sin embargo, según el Becerro de Roncesvalles de 1585,[3] la donación la realizaron Jimeno y Miguel de Garínoain en 1207. En cualquier modo Roncesvalles constituyó en esa donación en una clavería,[a] y nombró capellán y caseros. En la Edad Media funcionó como hospital de peregrinos en el Camino de Santiago. En el siglo XVI se convirtió en una ermita, y fue motivo de conflictos entre el capellán nombrado por Roncesvalles y el viario de Garínoain.[1] Hasta la desamortización dispuso de abundantes propiedades, como muestra el apeo de la llamada granja de Cataláin, ordenado por la Colegiata de Roncesvalles en 1828.[4] En 1887 el caserío lo habitaban 15 vecinos, en 1960 solo eran cuatro,[1] y actualmente está deshabitado. En la actualidad del conjunto del antiguo monasterio solo queda en pie la ermita del Santo Cristo de Cataláin; junto a ella, en el lado de epístola ha restos en muy mal estado de distintas dependencias.[5]
Arte y arquitectura
Las características del templo lo sitúan en el románico, por lo demás, su similitud con las parroquias de Orisoain y Olleta, también con la iglesia de San Pedro de Echano, permiten datar a Cataláin a mediados del siglo XII,[b] y señalar la influencia en los aspectos decorativos con Jaca, y en la organización de la planta con la iglesia del castillo de Loarre[6] En el siglo XVIII el estado de la cubierta amenazaba ruina y el templo fue sometido a una reforma considerable, que cubrió la nave con bóveda de lunetos.[c] El estado actual es resultado de la restauración realizada por la Institución Príncipe de Viana bajo la dirección del arquitecto José Yarnoz,[7]
Planta e interior del templo
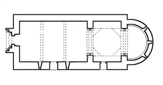
El templo consta de una única nave de tres tramos, con falso crucero y ábside. Los tramos de la nave quedan marcados por arcos diafragma que se apoyan en unas sencillas ménsulas de rollo. Sobre el muro de los arcos que culminan en un perfil en ángulo, se apoya directamente la viguería de madera que suporta la cubierta a dos aguas. Una imposta, a la altura de las ménsulas, recorre los muros laterales de la nave; en el del lado de la epístola se abre un hueco con arco de medio punto.

El paso de la nave al falso crucero se realiza por un arco de medio punto, apoyado en medias columnas adosadas a los machones que limitan el crucero. El espacio del crucero se cubre con una cúpula sobre trompas, en la que se abre una linterna; esta cúpula se alberga en el interior de un cimborrio octogonal. La arquitectura de la nave y el crucero es resultado de la restauración realizada por Francisco Íñiguez, recuperando las formas originales, pues en 1776 se llevaron a cabo en la ermita obras importantes[d]; especialmente en la cubierta, construyendo sobre el crucero una bóveda sobre pechinas, y sobre la nave tres tramos con bóvedas de lunetos.[6]No obstante el falso crucero existía ya cuando se realizan las obras de 1776; y, por la documentación que recoge su contrato, se deduce que estaba cubierto con una cúpula.[8]
En el ábside semicircular que rodea el presbiterio se mantiene el alzado original que presenta dos bandas horizontales, separadas entre sí por una imposta jaqueada, mientras que la banda superior queda separada de la bóveda de horno mediante una imposta con bolas. La banda inferior queda organizada por una arquería -similar a la de Loarre- con siete arcos de medio punto, sobre columnas con capiteles decorados con hojas esquemáticas, y sobre ellos el cimacio; tanto la decoración de este elemento como la de algunos capiteles se ha perdido. En la banda superior se abren tres ventanas abocinadas. El arco triunfal que separa el presbiterio de la nave es de medio punto y se apoya en unas medias columnas esbeltas con unas basas circulares molduradas; los capiteles que dan paso al arco tiene una rica decoración: el del evangelio con motivos vegetales y con un cimacio de bolas; el de la epístola presenta al rey David tocando el arpa entre águilas, con un cimacio de roleos.[6]
-
El ábside tras el arco triunfal. -
Inicio del ábside desde el lado de la epístola -
Capitel del arco triunfal (lado del evangelio) -
El rey David tocando el arpa, en el capitel del arco triunfal (lado de la epístola) -
Acceso visto desde el altar
Exterior de la ermita
El volumen de la ermita, orientado de modo tradicional de este a oriente, presenta un paralelepípedo recto que se completa con un semicilindro en la parte oriental correspondiente al ábside. Delante de él, correspondiendo con el falso crucero de la planta, se levanta un cimborrio octogonal coronado por la linterna. El ábside presenta al exterior tres ventanas de medio punto sobre columnas con capiteles decorados con motivos vegetales y animales fantásticos, y cimacios lisos son perfil de medio bocel. Reforzando el ábside tres contrafuertes -muy rehechos- alternan con la posición de las ventanas con una altura que coincide con la posición de sus alfeizares. Los aleros de la cubierta del ábside se sostiene por una serie de canes -muchos de ellos muy deteriorados- algunos lisos y otros con ajedrezado o figuras de animales fantásticos.[9]
.jpg)
Los muros laterales, salvo los correspondientes al falso crucero, fueron reconstruidos en el siglo XVIII, y no muestran ninguna decoración, En contraste, la portada situada en los pies del templo presenta una rica composición. La portada con arco de medio punto tiene dos arquivoltas que se apoyan en las correspondientes columnas, se enmarca en un pórtico saliente adintelado con una cornisa ajedrezada sobre canes. Las columnas que sostiene las arquivoltas presenta capiteles figurativos y sobre ellos cimacios con decoración de roeles. Sobre el tejaroz que protege el pórtico, y en eje con la nave del templo se sitúa una ventana de arco de medio punto; el hueco que proporciona este arco queda cerrado por el muro en el que se abre una aspillera en que las jambas tienen un perfil lobulado, y sobre ella, a cierta distancia -a modo de guardapolvo- un arco jaqueado sobrepuesto al muro. A la derecha e izquierda de esta ventana sendas aspilleras enmarcadas, como la central con un arco sobrepuesto jaquado que se prolonga horizontalmente. El piñón que presenta la parte alta de la fachad. sostiene la espadaña con dos huecos de medio punto, enmarcados con una moldura lisa que remite en su alzado a la que aparece en las aspilleras inferiores; en esos huecos se sitúan sendas campanas. En la parte derecha -la de la epístola- de la fachada se muestran restos de edificaciones que estuvieron adosadas a ella.[10]
-
Vistal frontal de la ermita -
Vista posterior, de la cabecera -
Detalla de la portada -
Detalle de la portada -
Sobrepórtico -
Una de las ventanas del ábside
Imagen del Cristo y pila bautismal
La ermita recibe su nombre de la imagen gótica del Cristo crucificado, datada como del siglo XIV, similar a la que se conserva en la parroquia de la cercana Barásoain; aparece ya con la herida de la lanzada, pero aún vivo, con los ojos entreabiertos, viste una faja que cubre de la cintura a las rodillas, los pies cogidos con un solo clavo, el derecho sobre el izquierdo, la talla de los brazos y del cuerpo, dejan transparentar los huesos.[11]Ocupa el muro del evangelio del falso crucero; posiblemente el mismo lugar que ocupaba ya cuando se reformó la ermita en el siglo XVIII, aunque la documentación escrita se refiere a la capilla del Santo Cristo, quizá porque lo separaba del resto de la nave un arco con una luz menor que el actual.[12]
También en el falso crucero, pero en el lado de la epístola, se sitúa una pila bautismal, también gótica del siglo XIV, en el cilindro que delimita la pila muestra una galería de arquillos trilobulados,[e] en que se esculpen motivos variados: un crismón, un monje con hisopo, un escudo con tres veneras, una estrella, un escudo con cuatro fajas, una cruz, dos candeleros, un creciente ranversado, etc. Consta documentalmente que en la ermita se realizaban bautizos, y no solo de los hijos de los caseros que vivían all, pues en el libro de bautizados de la parroquia de Olleta hay referencia a bautizos en Cataláin .[4]
-
Cristo de Cataláin, inmágen gótica del siglo XIV -
Situación del Cristo en el falso crucero -
Detalle de la cabeza del Cristo -
Pila bautismal del siglo XIV
Devoción popular
En la Edad Media, el pequeño monasterio del Cristo de Cataláin incluyó un hospital para los peregrinos que se dirigían a Santiago, pues el llamado Camino Francés tuvo algunas variantes, y entre ellas la que saliendo de Sangüesa seguía el curso del Aragón, dejando el río al sur llegaban a Leache, donde la Orden de San Juan del Hospital tenía un hospital para los peregrinos; desde allí, por la Vizcaya entraban en la Valdorba pasaban por Iracheta, con otro hospital de los sanjuanistas, y de allí bajaban a Cataláin; finalmente por Barásoain se dirigían a Puente la Reina, uniéndose antes al trazado principal del Camino Francés[13]
Estas circunstancias van convirtiendo a Cataláin en centro religioso de la Valdorba y ,cómo es habitual en la Navarra del angiuo régimen, centro también de la administración común del valle; efectivamente, allí se reunían los jurados de los pueblos para tratar las cuestiones del general del valle, tal como consta en las actas que se conservan desde la de 1591 hasta la constitución de los ayuntamientos en el siglo XIX.[14]
Muestra de esta devoción al Cristo de Cataláin, son las variadas romerías que, en fechas determinadas, vienen realizando los pueblos del valle. Ocoz y Oyer, en 1956[15] da una relación completa de las romerías que hace cada uno de los pueblos del valle, y algunos en más de una ocasión a lo largo del año, se refiere también a la que hace el pueblo de Salinas de Monreal (sic.)[f] De algunas de esas romerías hay constancia documental de su antigüedad, por ejemplo en las cuentas de concejo de Unzue de 1666 se anota el gasto realizado ese año en la romería "que desde tiempo inmemorial se hace al Santo Cristo de Cataláin".
Entre estas romerías destaca la que, desde 1898, celebran todos los pueblos de Leoz el 3 de mayo, festividad de la invención de la Santa Cruz.[g] Ese día, cada uno de los pueblos de Leoz acude con la cruz parroquial adornada con flores, llegados a la ermitas los que la portan las cruces se sitúan en el ábside de la ermita, saludan al del pueblo de al lado chocando -besando- entre sí las cruces.[16] También adquiere especial relieve la romería que realiza Barásoain alrededor de la festividad de San Marcos, 25 de abril.[17] Desde 1986, alrededor del 24 de septiembre, se celebra junto a la ermita del Santo Cristo, el Día del valle-Orba-jaia, en la que no falta la celebración de la misa.[18]
Véase también
- Valdorba
- Garínoain
- Arquitectura románica
Portal:Navarra. Contenido relacionado con Navarra.
Notas
- ↑ Es decir, con una función respecto a la Colegiata similar a la que supone una clavería para el cabildo catedralicio: Real Academia Española. «Clavería». Diccionario de la lengua española (23.ª edición).
- ↑ Urganga e Iñiguez 1973, p. 210 consideran que Cataláin pudo construirse en el primer cuarto del siglo XII, excepto la portada que puede ser algo posterior
- ↑ Ocoz y Ojer, 1956, pp. 249-256, recoge con detalle el proceso de las obras realizadas en ese momento y las cuestiones que debían reconstruirse, Yarnoz, ha tenido en cuenta esa documentación, en las obras de restauración realizadas en los años 80 del siglo XX, tal como las recoge en1991,
- ↑ Las obras fueron realizada por el cantero Juan de Santesteban, natural de Macaya en Francia, en 1776.[6]
- ↑ Arco cuyo intradós muestra tres lóbulos: cfr.Real Academia Española. «Trilobulado». Diccionario de la lengua española (23.ª edición).
- ↑ Oficialmene Salinas de Ibargoite
- ↑ Así lo acordó el Ayuntamiento de Leoz, en el pleno celebrado el 3 de abril de 1898, haciendo referencia a las que, sin periodicidad fija se habían realizado con anterioridad: cfr. Olco y Oyer 1956, pp. 268-269..
Referencias
- ↑ a b c «Cataláin». Gran Enciclopedia Navarra. Fundación Caja Navarra. Consultado el 29 de septiembre de 2017.
- ↑ Andrés Ortega Alonso, Valdorba Románica, Altaffaylla, Tafalla, 2005 (ISBN 8493335282), p. 60.
- ↑ García Larragueta, Santos (1983). «El Becerro de Roncesvalles». Príncipe de Viana 44 (168): 111-172. ISSN 0032-8472. Consultado el 21 de marzo de 2024.
- ↑ a b Ocoz y Ojer, 1956, p. 290
- ↑ García Gainza, 1985, p. 112
- ↑ a b c d García Gainza, 1985, p. 113
- ↑ Yarnoz, 1991, pp. 261-281.
- ↑ Yarnoz,, p. 273.
- ↑ García Gainza, 1985, pp. 113-114.
- ↑ García Gainza, 1985, pp. 114-115.
- ↑ García Gainza, 1985, p. 115.
- ↑ Yarnoz, 1991, p. 273
- ↑ Ocoz y Ojer, 1956, pp. 261-262.
- ↑ Ocoz y Ojer, 1956, p. 289.
- ↑ Ocoz y Ojer, 1956, pp. 265-266.
- ↑ Rebolé, Arturo Navallas (14 de mayo de 2022). «Romerías de los valles navarros: con cruces parroquiales». diariodenavarra.es. Consultado el 21 de marzo de 2024.
- ↑ «CORO DE BARASOAIN». Consultado el 21 de marzo de 2024.
- ↑ Armendáriz, Carmelo (19 de septiembre de 2016). «Cataláin, epicentro del día de la Valdorba». Diario de Noticias de Navarra. Consultado el 21 de marzo de 2024.
Bibliografía
- García Gainza, María Concepción (ed.) (1985). Catálogo Monumental de Navarra, III. Merindad de Olite. Institución Príncipe de Viana Pamplona. ISBN 978-84-09-06086-3.
- Ocoz y Ojer, Francisco. "Monasterios, basílicas y ermitas baldorbeses". Revista Príncipe de Viana nº 64, fecha=1956. pp. 247-326. ISSN 0567-560X.
- Uranga, José Esteban y Iñiguez, Francisco (1973), Arte medieval Navarro, vol.segundo, Arte Románico, Ed. Aranzadi, Pamplona.ISBN 84-500-5586-5
- Yarnoz Orcoyen, José (1991). "Ermita del Santo Cristo de Cataláin en Garínoain". Academia, boletín de la Real Academia de Bellas Artes de San Fernando, Madrid, n. 72. pp. 261-286. ISSN 0567-560X.
Enlaces externos
- Katalain en Arte románico en Navarra
- Ermita del Cristo de Cataláin, en La guía digital del arte románicoarquiguía
- Ermita del Santo Cristo de Cataláin, en arteguias
