Gálibo ferroviario

Gálibo ferroviario es el gálibo específico para el material rodante y sus cargas (y en particular, de su sección transversal con respecto a la vía) para garantizar que los trenes puedan pasar de manera segura a través de los túneles y por debajo de los puentes, y mantenerse suficientemente alejados de los elementos adyacentes a la plataforma y de los otros trenes.[1][2] De forma análoga, un gálibo ferroviario también puede establecer el espacio mínimo libre de obstáculos del que se debe disponer alrededor de una vía para que un determinado tipo de tren pueda circular por la misma con las debidas condiciones de seguridad. Es habitual que adopten valores particulares en cada país (producto de una solución de compromiso entre las características de sus propias infraestructuras y las de los trenes que las recorren)[3] y pueden variar en una red incluso si se conserva el mismo ancho de vía.
Consideraciones generales


El gálibo restringe el tamaño de las locomotoras, los vagones de pasajeros, los vagones de mercancías y las plataformas de contenedores que pueden circular por una sección de una vía férrea. Varía en todo el mundo y, a menudo, dentro de un solo sistema ferroviario. Con el tiempo, ha habido una tendencia hacia gálibos más grandes y a una mayor estandarización de sus medidas. Algunas líneas más antiguas han mejorado sus gálibos estructurales elevando los puentes situados sobre las vías, aumentando la altura y el ancho de los túneles e introduciendo otras mejoras. La tendencia hacia el uso de contenedores cada vez más grandes ha llevado a las compañías ferroviarias a aumentar los gálibos de las estructuras para poder competir de forma efectiva con el transporte por carretera.
El término "gálibo" también puede hacer referencia a un dispositivo físico, antiguamente un cerco metálico o de madera suspendido de un pórtico reproduciendo el contorno máximo apto para una línea dada, o más recientemente, usando detectores electrónicos que emplean haces de luz dispuestos al efecto en un brazo o pórtico colocado sobre la salida de los haces de vías de mercancías o en el punto de entrada a una parte restringida de una red. Estos dispositivos aseguran que las cargas apiladas en vagones abiertos o plataformas permanezcan dentro de los límites de altura/forma de los puentes y túneles de una línea, y evitan que el material rodante con un tamaño excesivo pueda circular en un tramo de línea con un gálibo estructural más pequeño que el necesario. El cumplimiento de un gálibo ferroviario se puede verificar con un coche auscultador de gálibos. En el pasado, estos coches eran simples marcos de madera o sensores físicos montados sobre material rodante convencional. Más recientemente, se utilizan vehículos dotados con haces de luz láser.
El perfil constructivo máximo del material rodante sirve de base para determinar el gálibo estructural, que es el tamaño mínimo de la sección de paso del ferrocarril en puentes y túneles, y que debe tener en consideración una serie de resguardos para contemplar las tolerancias de fabricación y los desplazamientos del material móvil. La diferencia entre los dos se denomina "resguardo". Los términos "envolvente dinámica" o "envoltura cinemática", que incluyen factores como el recorrido de la suspensión, el peralte en las curvas (en ambos extremos y en el medio de un vehículo ferroviario) y el posible desplazamiento lateral de la vía, están íntimamente ligados con el concepto de gálibo.
La altura de los andenes también es una dimensión a considerar para determinar el gálibo de los trenes de pasajeros. Cuando ambos no son directamente compatibles, será necesario disponer escalones (generalmente abatibles) en los trenes, lo que aumentará el tiempo necesario para el transbordo de pasajeros. Cuando se utilizan coches largos con andenes curvos, se genera un "salto" entre ambos, lo que incrementa el peligro de que los viajeros puedan introducir los pies accidentalmente en estos huecos. Los problemas aumentan cuando trenes de distintos gálibos y alturas de suelo diferentes usan (o incluso deben pasar sin detenerse en) el mismo andén.
El tamaño de la carga que puede transportarse en un ferrocarril de un gálibo particular también está influido por el diseño del material rodante. El material rodante de plataforma baja a veces se puede usar para transportar contenedores más altos (de 9 pies 6 plg (2,9 m)) en líneas de gálibo reducido, aunque sea a costa del número total de contenedores que podría transportar un tren dado.
Gálibos excepcionales
En ocasiones es posible transportar cargas de "gálibo excepcional" adoptando una o más de las siguientes medidas:
- Circular a baja velocidad, especialmente en lugares con espacio limitado, como las vías de andén.
- Cambios de itinerario, desviando el recorrido a vías con mayor espacio libre disponible incluso si la señalización no contempla estas trayectorias.
- Cancelar el paso de otros trenes por las vías adyacentes.
- Uso de "vagones schnabel" (un material rodante especial) que manipula la carga hacia arriba y hacia abajo o hacia la izquierda y hacia la derecha para sortear obstáculos.
- Eliminar (y luego reemplazar) obstáculos.
- Utilizar vías entrelazadas para desplazar el tren a un lado o al centro.
- Para las locomotoras que son demasiado pesadas, mantener los depósitos de combustible casi vacíos.
- Desconectar la alimentación eléctrica de la catenaria o del tercer riel.
Las líneas de metro generalmente tienen un gálibo muy pequeño, lo que reduce el costo de la construcción de los túneles, y solo utilizan su propio material rodante casi siempre diseñado a medida.
Historia
En los inicios del ferrocarril, cada compañía decidió el gálibo de sus vías en función de las dimensiones de su material móvil. Así, las líneas principales de Gran Bretaña (la mayoría de las cuales se construyeron antes de 1900), disponen de gálibos generalmente más pequeños que las redes de otros países. En el resto de Europa, el gálibo de Berna (en francés: "Gabarit passe-partout international", PPI), un poco más grande, se acordó en 1913 y entró en vigor en 1914.[4][5] Como resultado, los trenes británicos (de pasajeros) tienen gálibos notablemente y considerablemente más pequeños e interiores más pequeños, a pesar de que las vías son de ancho estándar como en la mayoría de los países de Europa.
Esto da como resultado un aumento en los costos para la compra de trenes, ya que deben estar diseñados específicamente para la red británica, en lugar de ser comprados "listos para usar". Por ejemplo, los nuevos trenes para la nueva línea de alta velocidad HS2 tienen un sobrecoste del 50 % aplicado a las composiciones "clásicas compatibles" que podrán funcionar en el resto de la red, lo que significa que cada tren costará 40 millones de libras en lugar de los 27 millones que cuestan los trenes construidos según los estándares europeos (que no pueden circular en la mayoría de las líneas británicas), a pesar de que el diseño de los trenes estándar europeos incluye secciones más amplias.[6]
Con la apertura a la competencia de las redes ferroviarias de la Unión Europea, la armonización de gálibos mediante una normativa unificada se ha convertido en uno de los aspectos clave del concepto de Interoperabilidad, de forma que se pueda garantizar que los trenes estándar de cualquier operador puedan circular adecuadamente por las distintas redes ferroviarias nacionales de la Unión. En algunos casos, las diferencias de gálibos ferroviarios entre países pueden suponer un obstáculo prácticamente insalvable (mayor incluso que las diferencias en el ancho de vía) para la circulación de formatos de carga cada vez de mayor tamaño, como los contenedores de transporte marítimo.
Cálculo de gálibos ferroviarios

[1] Vehículo [2] Perfil constructivo máximo del material móvil [3] Suma de los desplazamientos del vehículo y de su interacción con la infraestructura [4] Contorno de referencia [5] Gálibo de implantación de obstáculos [6] Infraestructura
[a] Gálibo de partes bajas [b] Gálibo de partes altas [c] Gálibo del pantógrafo
Las dimensiones del espacio libre que requiere el material móvil utilizado en una línea de ferrocarril para circular sin peligro de colisionar con la infraestructura o con otros trenes, son el resultado de combinar las características dinámicas y geométricas del propio material móvil, con las características geométricas de la infraestructura:[7]
- Características del material móvil: Altura y anchura (sección transversal); velocidad máxima; tipo de rodadura (ejes simples o bogies, y sus dimensiones); distancia entre ejes y su posición en el vehículo; longitud total; altura del centro de basculación de la suspensión; y ángulo de basculación máximo. Además, se consideran las características del sistema de toma de corriente eléctrica (tercer carril o catenaria, dimensiones de las tomas y tensión de alimentación), y la localización y geometría de los sistemas de frenado automático utilizados en los haces de clasificación de vagones.
- Características de la infraestructura: Se considera la geometría de las vías, incluyendo su ancho, el tipo de vía (en placa o sobre balasto) y su estado de conservación, los radios en planta, el parámetro de las curvas de acuerdo verticales, y los peraltes utilizados; así como la distancia con las vías adyacentes (denominada entre-eje); y la posición relativa de los andenes con respecto a las vías.
El cálculo suele realizarse para abordar la adaptación de vías antiguas a nuevos tipos de material rodante, generalmente con mayores exigencias de gálibo de paso. En el diseño de nuevas infraestructuras ferroviarias, se suele tomar como referencia de partida un gálibo de implantación de obstáculos uniforme, estandarizado para garantizar la compatibilidad entre el material rodante y la configuración de las vías dentro de los parámetros básicos de diseño de una línea o de una red ferroviaria.
Para ello, se suele partir de contornos de referencia normalizados, a los que se circunscribe el material móvil que se va a utilizar. Las dimensiones de estos contornos se combinan con la geometría de la vía siguiendo unas reglas preestablecidas, analizando todas las situaciones de circulación, desde el paso a la velocidad máxima autorizada, hasta la detención en un punto dado, lo que significa que se deben utilizar dos tipos de contornos de referencia: uno estático, para cuando el tren está parado; y otro cinemático, para cuando se considera que está en marcha.
A su vez, cuando el material móvil circula por una curva, se produce un desplazamiento localizado de la posición del eje longitudinal del vehículo con respecto al eje de la vía, lo que implica una asimetría de la posición del contorno de referencia, que a su vez se combina con el efecto del peralte de la vía y de la fuerza centrífuga relacionada con la velocidad de paso por la curva, debiéndose analizar su influencia individualmente sobre el lado del vehículo más próximo y sobre el más alejado con respecto al centro de la curva.
Análogamente, cuando un vehículo circula por un acuerdo vertical, los puntos de su contorno de referencia se desplazan arriba y abajo con respecto a la posición que ocupan respecto a la vía en una rasante uniforme.
Por último, se tienen en cuenta además una serie de resguardos, ligados al estado de la vía, a sus características geométricas, a las holguras generadas por el uso y a los posibles fallos de alineación de la infraestructura, y al desgaste o al fallo de los sistemas de suspensión del material móvil. Algunos de estos factores se suman directamente a los desplazamientos considerados (como los ligados a excesos o defectos de peraltes), mientras que los que están ligados a fallos de carácter aleatorio, se combinan cuadráticamente (calculando la raíz cuadrada de las suma de sus valores elevados al cuadrado).
El gálibo final resultante, denominado gálibo de implantación de obstáculos es la envolvente convexa de los puntos de control del tipo de contorno de referencia utilizado. Los puntos de control están ligados preferentemente a las partes altas del contorno de referencia, puesto que las partes bajas quedan situadas por debajo del centro de basculación de la suspensión del vehículo, y se consideran unívocamente (salvo holguras horizontales o irregularidades verticales) ligadas al perfil de la vía. El gálibo del pantógrafo posee sus propias reglas de cálculo, y se combina con la parte superior del gálibo de implantación de obstáculos resultante.
Se suelen contemplar tres tipos de gálibos de implantación de obstáculos, que comparten el mismo procedimiento de cálculo, aunque con algunos parámetros diferentes:[7]
- Gálibo límite: Es el valor mínimo utilizable que garantiza la circulación normal del material móvil, considerando los desplazamientos esperables de la vía entre dos operaciones de mantenimiento. Su adopción solo se considera en casos excepcionales justificados técnica o económicamente, especialmente en la adaptación de infraestructuras existentes.
- Gálibo nominal: Dimensionado para permitir la circulación normal de los vehículos, más un resguardo considerando los desplazamientos esperables de la vía entre dos operaciones normales de mantenimiento y unos márgenes complementarios para la circulación de transportes excepcionales, incrementos de velocidad, etc. Se define para un punto o tramo de línea.
- Gálibo uniforme: Es un gálibo nominal obtenido para una envolvente de parámetros (radios, peraltes, etc.) de una línea dada suficientemente desfavorables, de forma que se puede utilizar un único gálibo para toda ella, comprobando que no se superan los parámetros de partida. Se define para una línea completa, y es un requisito habitual en las nuevas líneas.
Gálibos estándar para líneas de ancho de vía estándar
Gálibo de la Unión Internacional de Ferrocarriles (UIC)

La Unión Internacional de Ferrocarriles (UIC) ha desarrollado una serie estándar de gálibos llamados A, B, B+ y C.
- PPI: El predecesor de los gálibos UIC tenía unas dimensiones máximas de 3,15 por 4,28 m (10' 4" por 14'1/2") y con un techo casi semicircular.
- UIC A: El más pequeño (un poco más grande que el gálibo PPI).[8] Dimensiones máximas 3,15 por 4,32 m (10' 4" por 14' 2,10").[9]
- UIC B: La mayoría de las vías del TGV de alta velocidad en Francia están construidas con el gálibo UIC B.[8] Sus dimensiones máximas son de 3,15 por 4,32 m (10' 4" por 14' 2,10").[9]
- UIC B+: Se están construyendo nuevas estructuras en Francia adaptadas al gálibo UIC B+.[8] Con una altura de hasta 4,28 m (14'1/2"), presenta un ancho de 2,5 m (8' 22/5") para acomodar contenedores ISO.
- UIC C: Gálibo centroeuropeo. En Alemania y otros países de Europa central, los sistemas ferroviarios se han construido con gálibo UIC C, a veces con un incremento en el ancho, lo que permite que los trenes escandinavos lleguen directamente a las estaciones alemanas, originalmente construidas para vagones de carga soviéticos en el caso de la antigua Alemania Oriental. Dimensiones máximas 3,15 por 4,65 m (10' 4" por 15' 3,10").[9]
Europa
Normas europeas

En la Unión Europea, las directivas UIC fueron sustituidas por las Especificaciones Técnicas de Interoperabilidad de la ERA (ETI's) de la Unión Europea en 2002, institución que ha definido una serie de recomendaciones para armonizar los sistemas ferroviarios. La ETI (2002/735/EC) sobre material rodante sustituye los perfiles de la UIC, definiendo sus propios gálibos cinemáticos con un perfil de referencia tal que los gálibos GA y GB tienen una altura de 4,35 m (14' 3,30") (difieren en su forma) y con un gálibo GC que se eleva hasta 4,7 m (15' 5") permitiendo un ancho de 3,08 m (10' 1,30") para el caso de techo plano.[10] Todo el material móvil debe mantenerse dentro de una envolvente de 3,15 m (10' 4") de ancho en una curva de 250 m (12,4 ch) de radio. Los TGV, que tienen un ancho de 2,9 m (9' 61/5"), se inscriben dentro de este límite.
El gálibo GB+ se refiere al plan de crear una red de carga paneuropea para contenedores ISO y remolques con contenedores ISO cargados. Estos trenes de contenedores se inscriben en el gálibo B con una parte superior plana, por lo que solo se requieren cambios menores para las estructuras compatibles con el gálibo B en Europa continental. Actualmente, algunas estructuras en las islas británicas se están modificando para adaptarse también al gálibo GB+, actuándose en primer lugar sobre las líneas que conectan con el Eurotúnel.[11]
Los ferrocarriles de muchos Estados miembros, en particular los de Gran Bretaña, no se ajustan a las especificaciones de las ETI's, pero dado el costo y las interrupciones de servicio que conllevan, no es probable que se acometan otras modificaciones que no sean la adaptación al gálibo GB+ de algunas líneas principales.
| Gálibo ferroviario | Perfil de referencia estático | Perfil de referencia cinemático | Notas | |||
|---|---|---|---|---|---|---|
| UIC y/o ETI's[12][13] | RIV[14] | Ancho | Alto | Ancho | Alto | |
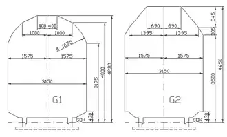
| G1 / UIC 505-1 | T 11 | 3,150 m | 4,280 m | 3.290 m | 4,310 m | Perfil estático también conocido como gálibo de Berna, PPI o OSJD 03-WM |
| GA | T 12 | 4,320 m | 4,350 m | |||
| GB | T 13 | |||||
| GB1 / GB+[15] | ||||||
| GB2 | ||||||
| G2 | T 14 | 4,650 m | 4,680 m | Anteriormente UIC C; perfil estático también conocido como OSJD 02-WM | ||
| DE3 | No definido | Expansión del G2, parte de las regulaciones de la TEN-T | ||||
| GC | 3,150 m | 4,650 m | 4,700 m | Anteriormente UIC C1 | ||
| SE-C | 3,600 m | 4,830 m | No definido | Futuro estándar europeo | ||
Coches de dos pisos

Un ejemplo específico del valor de estos gálibos es que permiten el transporte de pasajeros con coches de dos pisos. Aunque se usan principalmente en las líneas de cercanías suburbanas (en Austria, Bélgica, la República Checa, Dinamarca, Finlandia, Francia, Alemania, Italia, Lituania, Polonia, Portugal, Rusia, Eslovaquia, España, Suecia y Suiza, así como en otros lugares alrededor del mundo, incluyendo Sídney, Australia), Francia es notable por usarlos en sus servicios TGV de alta velocidad: los vagones TGV Duplex tienen una altura de 4,32 metros (14' 2,10"). Los Países Bajos y Suiza también cuentan con un gran número de trenes interurbanos de dos pisos.
Gran Bretaña
Gran Bretaña dispone (en general) los gálibos más ajustados en relación con el ancho de vía. Este hecho es una consecuencia de que la red ferroviaria británica es la más antigua del mundo, y fue construida por una gran cantidad de compañías privadas diferentes, cada una con sus propios estándares para el ancho y la altura de los trenes. Después de la nacionalización, en 1951 se definió un gálibo estático estándar denominado W5, que prácticamente permitía el paso por toda la red. El gálibo W6 es un refinamiento del W5 y el W6a cambió la parte inferior para tener en cuenta la electrificación mediante un tercer carril.
Mientras que la parte superior está redondeada en el caso del gálibo W6a con una curva estática, el gálibo W7 dispone de un perfil envolvente rectangular adicional para el transporte de contenedores ISO de 2,44 m (8'0,10"), y el W8 es todavía más grande y se extiende por fuera de la curva para acomodar el transporte de contenedores ISO de 2,6 m (8' 62/5"). Si bien los gálibos del W5 al W9 se basan en una estructura de techo redondeada, los tipos del W10 al W12 poseen un perfil plano en la parte superior y, en lugar de un gálibo estático estricto para los vagones, sus tamaños se derivan de los cálculos del gálibo dinámico para contenedores de carga rectangulares.[16]
Network Rail utiliza un sistema de clasificación de tamaños W para el transporte de carga, que van desde el W6A (el más pequeño) hasta W7, W8, W9, W9Plus, W10, W11 y W12 (el más grande). Las definiciones utilizan un "perfil de estructura del sector inferior" común, con una plataforma de carga común en 1100 mm (43,31 plg) sobre el carril.[17]
Además, el gálibo C1 establece una especificación para el material móvil estándar, el gálibo C3 para los vehículos del tipo MkIII más largos, el C4 para los trenes del tipo Pendolino,[18] y el gálibo UK1 para los trenes de alta velocidad. También existe un gálibo para locomotoras. El tamaño del contenedor que se puede transportar depende tanto del tamaño de la carga como del diseño del material rodante.[19]
De forma pormenorizada, los ferrocarriles de ancho estándar de Gran Bretaña se rigen por los siguientes gálibos:
- W6a: Disponible en la mayoría de la red ferroviaria británica.[20]
- W8: permite transportar contenedores estándar de 2,6 m (8' 62/5") de alto en vagones estándar.[21]
- W9: Permite que los contenedores Hi-Cube de 2,9 m (9' 61/5") de alto se transporten en vagones Megafret,[22] que tienen una altura de cubierta más baja con una capacidad reducida.[21] Con un ancho de 2,6 m (8' 62/5"), permite el envío de contenedores del tipo Euro de 2,5 m (8' 22/5") de ancho,[23] diseñados para transportar Euro-palés de manera eficiente.[11][24]
- W10: Permite que los contenedores de 2,9 m (9' 61/5") de altura Hi-Cube se transporten en vagones estándar[21] y también permite contenedores de 2,5 m (8' 22/5") de ancho del tipo Euro.[23] Más grande que UIC A.[11][25]
- W11: Poco usado, es algo mayor que el UIC B.[25]
- W12: Ligeramente más ancho que el W10, dispone de 2,6 m (8' 62/5") para acomodar contenedores refrigerados.[26] Espacio recomendado para nuevas estructuras, como puentes y túneles.[27]
- UIC GC: Utilizado en el Eurotúnel y en la Línea de alta velocidad Londres-Eurotúnel. Se han formulado propuestas para habilitar itinerarios con gálibo GB+ hacia el norte desde Londres a través de la línea principal a través de Midland actualizada.[28]
En 2004 se adoptó una estrategia para planificar las mejoras de gálibo[29] y en 2007 se publicó una estrategia de uso de rutas de carga, identificándose una serie de rutas clave en las que el gálibo debe acomodarse hasta el estándar W10. Donde se deban renovar las estructuras, el gálibo W12 se convirtió en el estándar elegido.[27]
Altura y ancho de los contenedores que pueden transportarse en medidores GB (altura por anchura). Unidades según el origen del material:
- W9: 9 pies 0 plg (2,7 m) por 2,6 m (8' 62/5")
- W10: 9 pies 6 plg (2,9 m) por 2,5 m (8' 22/5")
- W11: 9 pies 6 plg (2,9 m) por 2,55 m (8' 42/5")
- W12: 9 pies 6 plg (2,9 m) por 2,6 m (8' 62/5")[23]
Líneas de metro
- El Ferrocarril de la Ciudad y el Sur de Londres se construyó con túneles de tan solo 10,5 pies (3,20 m) de diámetro, ampliado a 12 pies (3,66 m) para la Línea Norte.
- La Línea Central utiliza túneles de 11 pies 8+1/4 plg (3,56 m), aumentado en las curvas, y reducido a 11 pies 6 plg (3,51 m) cerca de las estaciones. Esto hace que los trenes de la línea Central sean únicos en el sistema del Metro de Londres porque, aunque el calibre de carga del material rodante es el mismo que el de las otras líneas, el tamaño más pequeño del túnel requiere que el tercer carril electrificado deba situarse 1,6 plg (4,1 cm) más alto que en todas las demás líneas.
El 23 de mayo de 1892, un comité parlamentario encabezado por James Stansfeld presentó un informe, en el que se afirmaba que: "La evidencia presentada al Comité sobre la cuestión del diámetro de las galerías subterráneas que contienen los ferrocarriles ha sido claramente a favor de un diámetro mínimo de 11 pies y 6 pulgadas". Después de esto, todas las líneas de metro tenían al menos ese tamaño.[30]
- Línea de Piccadilly con túneles de 12 pies (3,66 m).
- Línea de Victoria con túneles de 12,5 pies (3,81 m); ampliados para reducir la fricción del aire.
- Metro de Glasgow con túneles de 11 pies (3,35 m) y un ancho de vía único de solo 4 pies 0 plg (1,22 m).
- Metro de Tyne y Wear con túneles de 15,5 pies (4,7 m), construidos según los estándares de la red ferroviaria principal.
Suecia
Suecia usa formas similares al gálibo ferroviario de Europa Central, pero los trenes son más anchos. Hay tres clases principales en uso (ancho × alto):[31]
- La clase SE-A de 3,4 por 4,65 m (11' 129/32" por 15' 3,10"). Similar a los gálibos OPS-NL de los Países Bajos, a los de los Ferrocarriles de Victoria (Australia), y a los de China.
- La clase SE-B de 3,4 por 4,3 m (11' 129/32" por 14' 1,30"). Similar al gálibo noruego.
- La clase SE-C de 3,6 por 4,83 m (11' 9,70" por 15' 101/5") con un techo completamente plano. Similar al gálibo OPS-GC de los Países Bajos.
Malmbanan al norte de Kiruna fue la primera línea ferroviaria electrificada en Suecia y tiene una altura libre limitada (SE-B) debido a los refugios de nieve. En el resto de la red que pertenece al Trafikverket, el gálibo de la red acepta material fabricado para el gálibo SE-A y, por lo tanto, acepta material adecuado para los gálibos UIC GA y GB. Algunas unidades múltiples eléctricas modernas, como las del tipo Regina X50 y sus derivados, son algo más anchas de lo que normalmente permite el gálibo SE-A de 3,45 m (11' 34/5"). Esta situación es generalmente aceptable, ya que el ancho adicional está por situado por encima de la altura normal de la plataforma, pero significa que no pueden usar las plataformas altas que usa Arlanda Express (la Estación Central de Arlanda tiene espacios libres normales). El mayor ancho permite que las personas altas pueden dormir con las piernas y los pies estirados en los coches-cama, lo que no es posible en Europa central.
Cuando se construyen nuevos ferrocarriles o se realizan reinversiones extensas en la infraestructura ferroviaria existente, el gálibo se amplía a SE-C, compatible con el gálibo UIC GC. El gálibo disponible en la mayor parte de la red, ya en 2012, permitía el paso de material móvil construido según el gálibo SE-C, aunque con restricciones y un permiso especial. La limitación adicional está ligada a los circuito de vía, puesto que las marcas de vía libre no están dimensionados para el ancho adicional y un vagón con un ancho superior al estándar situado cerca de un desvío en una vía de apartado puede invadir la envolvente de seguridad de la línea pasante. Este problema generalmente se resuelve agregando un coche extra de tamaño normal en el extremo trasero, con el fin de garantizar que ninguna parte del tren obstruya el espacio necesario para el paso de otros trenes (la máquina cumple la misma función en el extremo delantero). Los vagones más grandes también tienen prohibido el uso de ciertos ramales que conducen a almacenes o muelles de carga construidos para el material remolcado normal. El gálibo SE-C es el futuro estándar europeo, para las rutas de ancho estándar Rail Baltica II y Narvik a Tel-Aviv, incluidos los enlaces ferroviarios fijos entre Suecia y Polonia y el segundo enlace ferroviario fijo de Marmaray.
Países Bajos
En los Países Bajos, se utiliza una forma similar a la UIC C, con una altura de 4,7 m (15' 5"). Los trenes son más anchos, lo que implica adoptar una anchura de 3,4 m (11' 129/32"), similar a la de Suecia. Alrededor de un tercio de los trenes de pasajeros holandeses usan coches de dos pisos. Sin embargo, los andenes holandeses son mucho más altos que los suecos.
Betuweroute (ruta desde Alemania a Róterdam) y Túnel del Canal
- Betuweroute: dispone de un gálibo de 4,1 por 6,15 m (13' 52/5" por 20' 2,10") para permitir el paso de trenes de contenedores con doble apilamiento en el futuro. La catenaria actual no permite esta altura, ya que tiene que seguir los estándares.
- Eurotúnel: su gálibo es de 4,1 por 5,6 m (13' 52/5" por 18' 41/2")
Norteamérica
Mercancías
El gálibo ferroviario estadounidense para vagones de carga en el Transporte de América del Norte generalmente se basa en los estándares establecidos por la División Mecánica de la Association of American Railroads (AAR).[32] Los estándares más extendidos son la Placa AAR B y la Placa AAR C,[33] pero se han introducido gálibos más amplios en rutas principales fuera de los núcleos urbanos, con el fin de poder utilizar diseños de material rodante que permiten obtener un uso más económico de la red ferroviaria, como portacoches, plataformas para contenedores altos y para contenedores apilados en dos pisos.[34]
A continuación se enumeran las alturas y anchuras máximas de los vagones cargados. Sin embargo, la especificación de cada Placa AAR muestra una sección transversal biselada en las partes superior e inferior, lo que significa que una carga no puede ocupar un rectángulo completo de la altura y el ancho máximos especificados.[35][36]
| Placa AAR | Ancho | Alto | Distancia entre centros de bogies | Notas | Imagen | |||
|---|---|---|---|---|---|---|---|---|
| ft in | m | ft in | m | ft in | m | |||
| B | 10' 8" | 3,25 | 15' 1" | 4,60 | 41' 3" | 12,57 | Para distancias entre ejes de bogies mayores, el ancho debe reducirse de acuerdo con la gráfica Placa AAR B-1[32] o Placa AAR D-1[36] |
|
| C | 10' 8" | 3,25 | 15' 6" | 4,72 | Con 46' 3" | 14,1 | Para distancias entre ejes de bogies mayores, el ancho debe reducirse de acuerdo con la gráfica Placa AAR C-1[32] o Placa AAR D-1[36] |
|
| E | 10' 8" | 3,25 | 15' 9" | 4,80 | Con 46' 3" | 14,1[36] | Como con el Placa AAR C, pero 3 plg (76,2 mm) más alto, y con una sección mayor en el techo |
|
| F | 10' 8" | 3,25 | 17' 0" | 5,18 | Con 46' 3" | 14,1[36] | Como con la Placa AAR C, pero 18 plg (457,2 mm) más alto que la Placa AAR C y 15 plg (381 mm) más alto que la Placa AAR E, y con una sección mayor en la techo que la Placa AAR E |
|
| H | 10' 1" | 3,07 | 20' 3" | 6,17[36] | 63' 9" | 19,43[36] | Por ejemplo Transporte ferroviario de contenedores en dos pisos|contenedores apilados en dos pisos[37]Double-stack rail transport |
|
| ---[38] | 9' 10,25" | 3,00[38] | 3' 11" | 1,19[38] | 66' 0" | 20,12[38] | Por ejemplo, un vagón plano de 85 pies 2,5 pulgadas (25,97 m)[38] de longitud, altura de la plataforma al centro del vagón[38] anchura según AAR Placa D-1.[33] Por ejemplo, autopistas ferroviarias (camiones de carga o semirremolques sobre vagones plataforma)[39] | |
| J | 10' 8" | 3,25 | 19' 0" | 5,79 | 55' 0" | 16,76 | Centros entra bogias pueden ser más. AAR Plate D1.[33] | |
| K | 10' 0" | 3,05 | 20' 3" | 6,17[36] | 65' 0" | 19,81[36] | autoracks | |
| L[36] | 10' 8" | 3,25 | 16' 3" | 4,95 | 46' 3" | 14,1 | Para locomotores solamente | |
| M[36] | 10' 8" | 3,25 | 16' 3" | 4,95 | 46' 3" | 14,1 | Para locomotores solamente | |


Técnicamente, las circulaciones de la Placa AAR B siguen siendo las más habituales, mientras que la circulación de trenes de l Placa AAR C está más restringida. La presencia de material rodante de mayor altura (inicialmente plataformas bajas de 18 pies (5,5 m) de largo y cajas hicube, y luego vagones portacoches, plataformas para el transporte de partes de aviones y vagones planos para transportar fuselajes del Boeing 737, así como contenedores de 20 pies 3 plg (6,17 m)[36] en vagones de doble apilamiento), ha aumentado. Esto significa que la mayoría, si no todas, las líneas ahora están diseñadas para un gálibo ferroviario más alto. El ancho de estos vagones de altura adicional está regulado por la Placa AAR C-1.[32]
Todas las compañías ferroviarias de Clase I han invertido en proyectos a largo plazo para incrementar el número de las autorizaciones necesarias para permitir el transporte de carga doble. Las principales redes ferroviarias norteamericanas, como Union Pacific, BNSF, Canadian National y Canadian Pacific, ya se han actualizado la Placa AAR K. Esto representa más del 60 % de la red ferroviaria de Clase I.[40]
Servicio de pasajeros

El antiguo coche de pasajeros estándar norteamericano medía 10 pies 6 plg (3,20 m) de ancho por 14 pies 6 plg (4,42 m) alto, con 85 pies 0 plg (25,91 m) entre acoplamientos, y 59 pies 6 plg (18,14 m) entre centros de bogies; o con 86 pies 0 plg (26,21 m) entre caras de tracción de acoplamientos y 60 pies 0 plg (18,29 m) entre centros de bogies. En las décadas de 1940 y 1950, el gálibo ferroviario de los coches de pasajeros estadounidenses se incrementó a una altura de 16 pies 6 plg (5,03 m) en la mayor parte del país fuera del noreste, para acomodar coches domo y Superliners posteriores y otros tipos de trenes de cercanías de dos pisos. Los vehículos de pasajeros de dos niveles y los de techo alto han estado en uso desde la década de 1950, y se han construido nuevos equipos de pasajeros con una altura de 19 pies 9+1/2 plg (6,03 m) para su uso en Alaska y las Montañas Rocosas canadienses (véase coche de dos pisos). El gálibo estructural del túnel bajo el Monte Royal limita la altura de los coches de dos pisos a 14 pies 6 pulgadas (4,42 m).[41]
Metro de la ciudad de Nueva York
El Metro de Nueva York es el resultado de la fusión de tres compañías, y si bien todas utilizan ancho de vía estándar, las inconsistencias en el gálibo ferroviario impiden que los coches del sistema BMT y del sistema IND (División B) funcionen en las líneas del sistema IRT (División A) anterior, y viceversa. Esto se debe principalmente a que los túneles y estaciones del IRT son aproximadamente 1 pie (305 mm) más estrechos que los demás, lo que significa que el matdrial móvil del IRT circulando en las líneas del BMT o del IND producirían unas holguras entre coche y andén superiores a 8 pulgadas (203 mm), mientras que los coches del BMT o del IND ni siquiera encajarían en una estación del IRT sin tocar el borde de los andenes. Teniendo esto en cuenta, todos los vehículos de mantenimiento están construidos con el gálibo del IRT, de forma que puedan operar en toda la red, siendo los empleados los responsables de estar pendientes de la holgura entre coche y andén.
Otra inconsistencia es la longitud máxima permitida de los coches. En el antiguo sistema IRT, miden 51 pies (15,54 m) (diciembre de 2013), pero pueden alcanzar hasta 64 pies (19,51 m). Sin embargo, en los antiguos BMT e IND pueden ser más largos: en la División Este, los coches están limitados a 60 pies (18,29 m), mientras que en el resto de las líneas BMT e IND (más el Ferrocarril de Staten Island que usa material del IND modificado) los coches pueden medir hasta 75 pies (22,86 m).[42][43]
Metro de Boston (MBTA)
El sistema del Metro de Boston (MBTA) se compone de cuatro líneas. Si bien todas son de ancho estándar, las inconsistencias en el gálibo, la electrificación y la altura de la plataforma impiden que los trenes de una línea se utilicen en otra. El primer sector de la Línea Verde (conocido como Tremont Street Subway) se construyó en 1897 para sacar los tranvías de las concurridas calles del centro de Boston.
Cuando la Línea Azul se abrió en 1904, solo prestaba servicio con tranvías; la línea se convirtió en un sistema de metro en 1924, debido a la alta demanda del tráfico de pasajeros, pero el espacio disponible en el túnel bajo la bahía de Boston requería coches más estrechos y cortos.[44] La Línea Naranja fue construida originalmente en 1901 para acomodar vagones de transporte ferroviario pesados de mayor capacidad. La Línea Roja fue inaugurada en 1912, siendo diseñada para manejar lo que durante un tiempo fueron los coches de un ferrocarril metropolitano subterráneo más grandes del mundo.[45]: 127
Metro de Los Ángeles (LACMTA)
El sistema del Metro de Los Ángeles es una fusión de dos compañías constituyentes anteriores, la Los Angeles County Transportation Commission y la Southern California Rapid Transit District; ambas compañías fueron responsables de planificar el sistema inicial. Hoy en día, se compone de dos líneas de metro de ferrocarril de gran capacidad y de varias líneas de tren ligero con secciones de metro. Si bien todas las líneas son de ancho estándar, las inconsistencias en la electrificación y el gálibo impiden que los trenes ligeros operen en las líneas de gran capacidad y viceversa. La Línea Azul, planificada por la LACTC se abrió en 1990 y opera parcialmente en la ruta de la línea de ferrocarril interurbano Pacific Electric entre el centro de Los Ángeles y Long Beach, que utilizaba tranvías de electrificación aérea que circulan por las calles. La Línea Roja, planificada por la SCRTD (luego dividida en las líneas Roja y Púrpura) fue inaugurada en 1993 y se diseñó para manejar vagones de transporte ferroviario de alta capacidad que operarían bajo tierra. Poco después de que la Línea Roja comenzara a funcionar, la LACTC y el SCRTD se fusionaron para formar la LACMTA, que se hizo responsable de la planificación y la construcción de las líneas Verde, Oro, Expo y Crenshaw, así como también de la Extensión de la Línea Púrpura y del Conector Regional.
Asia
Las principales líneas troncales en los países de Asia oriental, como China, Corea del Norte, Corea del Sur, así como el Shinkansen de Japón, han adoptado un gálibo ferroviario de ancho máximo 3400 milímetros (11' 129/32"), con una altura máxima de 4500 milímetros (14' 91/5").[46]
Japón

Los trenes de la red del Shinkansen operan en vías de ancho estándar (1435 mm) y tienen un gálibo cuyo ancho máximo es de 3400 milímetros (11' 129/32") y una altura máxima de 4500 milímetros (14' 91/5").[47] Sin embargo, algunos trenes Shinkansen son más anchos, como los Shinkansen Serie E1, trenes de alta velocidad de dos pisos.
Los Mini Shinkansen (antiguas líneas convencionales de vía estrecha reconvertidas al ancho estándar) y algunos ferrocarriles privados (incluidas algunas líneas del Metro de Tokio y todas las del Metro de Osaka) también usan el ancho de vía estándar, aunque sus gálibos son diferentes.
El resto del sistema japonés en vía estrecha se analiza más adelante.
Corea del Sur
La red nacional de Corea del Sur tiene el mismo gálibo que el Shinkansen japonés.[48] La caja del material móvil puede tener una altura máxima de 4500 milímetros (177,2 plg) y un ancho máximo de 3400 milímetros (133,9 plg), con instalaciones adicionales permitidas hasta 3600 milímetros (141,7 plg). Ese ancho de 3400 mm solo se permite por encima de una altura de 1250 milímetros (49,2 plg) sobre los carriles, ya que los andenes comunes de pasajeros están construidos para los antiguos trenes estándar de 3200 milímetros (126 plg) de ancho.
China
La altura, el ancho y la longitud del material rodante chino máximos son 4800 milímetros (15' 9"), 3400 milímetros (11' 129/32") y 26 metros (85' 33/5").[49] China está construyendo numerosos ferrocarriles nuevos en el África subsahariana y el sudeste asiático (como en Kenia y Laos respectivamente) de acuerdo con los "Estándares chinos", aplicados al ancho de vía; al ancho de carga; al ancho de las estructuras; y al tipo de acoplamientos, frenos y electrificación.[50]
África
Algunos de los nuevos ferrocarriles que se están construyendo en África permiten disponer contenedores apilados en dos pisos, cuya altura total es de aproximadamente 5800 milímetros (19'0,30") dependiendo de la altura de cada contenedor, de 2438 milímetros (8') o de 2900 milímetros (9' 61/5"), más la altura de la cubierta del vagón plano, de unos 1000 milímetros (3' 32/5"), totalizando 5800 milímetros (19'0,30"). Esto supera el estándar de altura utilizado en China para contenedores apilados individualmente, de 4800 milímetros (15' 9"). Se necesita una altura adicional de aproximadamente 900 milímetros (2' 112/5") para los cables aéreos de la electrificación a 25 kV en corriente alterna.
Australia
Las líneas de ancho estándar de los Ferrocarriles del Gobierno de Nueva Gales del Sur (NSWGR) permitieron un ancho de 9 pies 6 pulgadas (2,9 m) hasta 1910, después de que una conferencia de los estados creara un nuevo estándar de 10 pies 6 pulgadas (3,2 m), con el correspondiente aumento de la distancia de la entrevía. La vía estrecha se ha eliminado en su mayoría, excepto, por ejemplo, en las plataformas principales en la Sección de Gosford y en algunos apartaderos. Los vagones más largos son de 72 pies 6 pulgadas (22,1 m).
Los Ferrocarriles de la Commonwealth adoptaron el estándar nacional de 10 pies 6 pulgadas (3,2 m) cuando se establecieron en 1912, aunque no se dispuso de ninguna conexión con Nueva Gales del Sur hasta 1970.
La altura del gálibo ferroviario en Nueva Gales del Sur solo permite coches de dos pisos en Sídney, mientras que el gálibo ferroviario en Victoria (similar al gálibo ferroviario sueco SE-A), no es lo suficientemente alto como para permitir trenes de dos pisos en Melbourne (excepto un tren experimental).
En 1884, los ferrocarriles en Nueva Gales del Sur utilizaban furgones de frenado con 8 pies 3,5 plg (2,5 m) de ancho y 11 pies 5 plg (3,5 m) de alto. Un tren eléctrico suburbano de la década de 1920 tenía 10 pies 6 plg (3,2 m) de ancho, con entrevía ampliada a 12 pies 0 plg (3,7 m) para adaptarse. Con la implantación del sistema métrico en 1973, el entreje de las nuevas vías se amplió a 4 m (13' 11/2").
Un tren eléctrico Tangara de dos pisos de finales de la década de 1980 medía 3000 mm (9' 10,10") de ancho.[51]
En 1968, el ferrocarril de carga de Kwinana, construido en Australia Occidental, se diseñó con un gálibo de 12 pies (3,66 m) de ancho y 20 pies (6,10 m) de alto para permitir el tráfico de remolques sobre plataformas. Los gálibos a lo largo del ferrocarril trans-australiano[52] se modificaron en la década de 1990, adoptándose un estándar mínimo de 21 pies 4 pulgadas (6,50 m) para permitir el paso de trenes de contenedores apilados en dos pisos. El nuevo estándar ARTC de altura libre por encima de los carriles es de 23 pies 3,5 pulgadas (7,10 m).
Vía ancha
España
La red ferroviaria española presenta la particularidad de combinar una moderna red de alta velocidad en ancho de vía estándar, con su red histórica de vía ancha, en la que se utiliza el ancho ibérico de 1668 mm. La red de alta velocidad sigue los estándares generales marcados por las Especificaciones Técnicas de Interoperabilidad Europeas, pero para la red en ancho ibérico se han incluido en las citadas especificaciones técnicas (desarrolladas en la correspondiente Instrucción de Gálibos del año 2015 por la Administración de España)[7] un conjunto de contornos de referencia estáticos para el ancho ibérico, con las dimensiones máximas siguientes:
- GEB16: 3300 mm de ancho por 4320 mm de alto, con el techo redondeado. Es la envolvente del contorno GHE16 y del contorno normalizado GB. Se utiliza en acondicionamiento de líneas existentes, cuando no sea aconsejable la implantación del contorno GEC16 por motivos técnicos o económicos.
- GEC16: 3300 mm de ancho por 4650 mm de alto, con el techo plano. Es la envolvente del contorno GHE16 y del contorno normalizado GC. De aplicación en las líneas de nueva construcción.
El contorno GHE16 es un contorno histórico, definido en la Instrucción española de gálibos de 1985.[7]
Finlandia
En Finlandia, el gálibo puede tener un ancho de hasta 3,4 m (11' 129/32") con una altura permitida desde 4,37 m (14' 4") en los lados hasta 5,3 m (17' 4,70") en el centro.[53]
India y Pakistán
- Tráfico de pasajeros
- El gálibo más pequeño para un ferrocarril con ancho de vía de 1676 mm (5' 6") es el Metro de Nueva Delhi, que mide 3250 mm (10' 8") de ancho y 4140 mm (13' 7") de alto.
- Los Ferrocarriles de la India y los Ferrocarriles de Pakistán (también con un ancho de vía de 1676 mm (5' 6")) tienen un gálibo muy grande, que mide 3660 mm (12'0,10") de ancho y 5300 mm (17' 4,70") de alto para el tráfico de pasajeros.
- Mercancías
- En India y Pakistán se utiliza un gálibo de 3660 mm (12'0,10") de ancho y de 7100 mm (23' 31/2") de alto en las líneas de mercancías, reducido a 3250 mm (10' 8") de ancho y 6150 mm (20' 2,10") de alto en las líneas exclusivamente de pasajeros.
Rusia
Los gálibos rusos se definieron en 2013 según el estándar GOST 9238 (ГОСТ 9238–83, ГОСТ 9238–2013) "Габариты железнодорожного подвижного состава и прибя" (Dimensiones del material rodante ferroviario y circulación).[54] Fue aceptado por el Consejo Interestatal de Estandarización, Metrología y Certificación, para ser válido en Rusia, Bielorrusia, Moldavia, Ucrania, Uzbekistán y Armenia.[54]
El estándar define gálibos estáticos para los trenes aptos para circular en la red nacional, denominados T, Tc y Tpr. El perfil estático 1-T es el estándar común en la red ferroviaria completa de 1520 mm, incluidos los estados de las antiguas repúblicas soviéticas de Asia y en los países Bálticos. El espacio libre alrededor de las vías se define como S, Sp y S250. Normalmente, el espacio libre en las estructuras es mucho más grande que los tamaños comunes de trenes. Para el tráfico internacional, el estándar hace referencia al gálibo cinemático GC y define un GCru modificado para sus trenes de alta velocidad. Para otro tráfico internacional, se utilizan los gálibos 1-T, 1-VM, 0-VM, 02-VM y 03-VMst/03-VMk para los trenes y 1-SM para el espacio libre alrededor de las vías.[54]
El perfil estático principal T permite un ancho máximo de 3750 mm (12' 33/5") que se eleva a una altura máxima de 5300 mm (17' 4,70"). El perfil Tc permite ese ancho solo a una altura de 3000 mm (9' 10,10"), requiriendo un máximo de 3400 mm (11' 129/32") por debajo de 1270 mm (50,0 plg), que coincide con el estándar de los andenes (con una altura de 43,3 plg). El perfil Tpr tiene el mismo requisito de gálibo inferior, pero reduce el ancho máximo de la parte superior a 3500 mm (11' 54/5"). El perfil más universal, el 1-T, tiene el cuerpo completo con un ancho máximo de 3400 mm (11' 129/32"), que se eleva a una altura de 5300 mm (17' 4,70").[54]
El gálibo de estructura S requiere que los obstáculos fijos se coloquen como mínimo a 3100 mm (10' 2") desde el eje central de la vía. Los puentes y túneles deben tener un espacio libre de al menos 4900 mm (16'29/32") de ancho y 6400 mm (21') de alto. El gálibo de estructura Sp para andenes de pasajeros permite 4900 mm solo por encima de 1100 mm (la altura del andén común) que requiere un ancho máximo de 3840 mm (12' 71/5") debajo de esa línea.[54]
Los andenes principales se definen para tener una altura de 1100 mm (43,3 plg) a una distancia de 1920 mm (75,6 plg) desde el centro de la vía, adecuado para el paso de los trenes de gálibo T. Pueden colocarse andenes bajos a una altura de 200 mm (7,9 plg) situados a 1745 mm (68,7 plg) desde el centro de la vía. Un andén medio es una variante del andén alto, pero con una altura de 550 mm (21,7 plg),[54] que coincide con la altura TSI en Europa Central. En el estándar anterior de 1983, al perfil T solo se le permitía el paso junto a andenes bajos de 200 mm de altura, mientras que el andén alto estándar para carga y pasajeros se colocaría a no menos de 1750 mm (68,9 plg) desde el centro de la vía.[55] Estas dimensiones son compatibles con los gálibos Tc y Tpr; y con el gálibo universal 1-T.
Vía estrecha
Los ferrocarriles de vía estrecha generalmente tienen un gálibo más pequeños que los de vía estándar, y esta es una razón importante para el ahorro de costos en lugar del ancho de vía en sí mismo. Por ejemplo, la Locomotora Lyn del Ferrocarril de Lynton y Barnstaple tiene 7 pies 2 pulgadas (2,2 m) de ancho. En comparación, varias locomotoras Clase 73 para vía estándar de los Ferrocarriles del Gobierno de Nueva Gales del Sur, que tienen un ancho de 9 pies 3 pulgadas (2,8 m), se han reconvertido para su uso para transportar de caña de azúcar sobre vías de 610 mm (2'), donde no hay puentes estrechos, túneles o haces de vías que causen problemas. La locomotora 6E1 con ancho de vía de 1067 mm (3' 6") de los Ferrocarriles de Sudáfrica, tienen un ancho de 9 pies 6 pulgadas (2,9 m).
Un gran número de ferrocarriles con vías de 762 mm (2' 6") utilizan material rodante diseñado con una anchura de 7 pies 0 plg (2,1 m).
España
Para la red de ancho métrico, la normativa española contempla dos contornos estáticos de referencia:[7]
- GEE10: de 2850 mm por 4070 mm de alto. De uso general, ideado para líneas electrificadas.
- GED10: de 2850 mm por 3870 mm de alto. Para líneas sin electrificar, cuando por distintos motivos sea desaconsejable adoptar el contorno anterior.
Gran Bretaña
Ferrocarril de Festiniog
- Ancho de vía = 23 1/2 plg (597 mm)
- Ancho (guardafreno) = 6 pies 10 pulgadas (2,1 m).[56]
- Ancho (cuerpo de freno) = 6 pies 0 pulgadas (1,8 m).
- Altura = 5 pies 7,5 pulgadas (1,7 m).
- Longitud = (vagones) 36 pies 0 pulgadas (11,0 m).[57]
Ferrocarril de Lynton y Barnstaple
- Ancho de vía = 23 1/2 plg (597 mm)
- Locomotora Lyn hasta acoplamientos:
- Longitud = 23 pies 6 plg (7,16 m)
- Ancho = 7 pies 2 plg (2,18 m)
- Altura = 8 pies 11 plg (2,72 m)
- Coches de pasajeros:
- Longitud = 39 pies 6 plg (12,04 m)
- Ancho = 6 pies (1,83 m)
- Ancho sobre pasos = 7 pies 4 plg (2,24 m)
- Altura = 8 pies 7 plg (2,62 m)
Japón
La red nacional japonesa operada por Japan Railways emplea vías estrechas de 1067 mm (3' 6"), cuyo material móvil tiene un ancho máximo de 3000 mm (9' 10,10") y una altura máxima de 4100 mm (13' 52/5"). Sin embargo, varias líneas se construyeron como ferrocarriles privados antes de la nacionalización a principios del siglo XX, y cuentan con gálibos más pequeños que el estándar. Estos incluyen la Línea Chūō Main al oeste de Takao, la Línea Minobu y la Línea Yosan al oeste de Kan'onji (con una altura de 3900 mm (12' 91/2")). Sin embargo, los avances en la tecnología de los pantógrafos para la toma de corriente han eliminado en gran medida la necesidad de material rodante especial para estas zonas.
Existen numerosas compañías ferroviarias privadas en Japón, cada una con sus propios gálibos.[48]
Nueva Zelanda
Los Ferrocarriles de Nueva Zelanda utilizan vías de 1067 mm (3' 6") de anchura. El ancho máximo es de 2830 mm (9' 32/5") y la altura máxima es de 3815 mm (12' 61/5").[58]
Sudáfrica
La red nacional sudafricana emplea el ancho de vía de 1067 mm (3' 6"), con un gálibo de un ancho máximo de 3048 mm (10 pies) y una altura máxima de 3962 mm (13 pies),[48] que es mayor que el gálibo británico normal para vehículos para vía de ancho estándar.
Otros
- Ancho de vía de 762 mm (2' 6") en el Reino Unido y Sierra Leona:
- Radio mínimo: 132 pies (40,2 m)
- Ancho: 7 pies 0 pulgadas (2,13 m) (véase Everard Calthrop)
- Longitud de vagón de carga: 25 pies 0 pulgadas (7,62 m) entre testeros
- Longitud de vagón de pasajeros: 40 pies 0 pulgadas (12,19 m) entre testeros
- Longitud de locomotora: 29 pies 6 pulgadas (8,99 m) entre testeros
Gálibo estructural

El gálibo estructural se refiere a las dimensiones de los puentes o túneles más bajos y/o más estrechos de una línea, y complementa al gálibo del material móvil, que especifica las dimensiones máximas de un tipo de vehículo. Debe existir un resguardo entre el gálibo de la estructura y el gálibo ferroviario, teniendo en cuenta el desplazamiento dinámico de los vehículos (balanceo) para evitar interferencias mecánicas que causen daños en el equipo y en la estructura.
Lógicamente, para garantizar una circulación segura, el gálibo estructural siempre debe ser mayor que el gálibo ferroviario.
Interferencias de gálibo
Si bien puede ser cierto que los trenes de un gálibo ferroviario en particular pueden viajar libremente sobre las vías con el espacio libre en su entorno correspondiente, en la práctica, aún pueden darse algunos problemas. En un accidente sucedido en la estación de Moston, un andén antiguo, que normalmente no utilizan los trenes de mercancías, fue golpeado por un tren que no estaba dentro del gálibo W6a debido a que dos cierres de contenedores colgaban sobre un costado. Un posterior análisis demostró que el tren configurado correctamente habría pasado de manera segura, a pesar de que el andén no estaba diseñado para el tamaño máximo de diseño del gálibo W6a. Utilizar resguardos mínimos en infraestructuras existentes es una práctica normal si no ha habido incidentes, pero si el andén hubiera cumplido con los estándares modernos que exigen un mayor margen de seguridad, el tren que superaba el gálibo habría pasado sin incidentes.[59][60][61]
Los trenes más grandes que el gálibo ferroviario hasta un cierto límite, pueden circular excepcionalmente si se determina cuidadosamente el gálibo estructural disponible y el viaje está sujeto a varias regulaciones especiales.
Referencias
- ↑ Real Academia Española. «Gálibo ferroviario». Diccionario de la lengua española (23.ª edición). Gálibo: 2. m. Perímetro que marca las dimensiones máximas de la sección transversal de un vehículo Gálibo: 3. m. Arco de hierro en forma de U invertida, que sirve en las estaciones de los ferrocarriles para comprobar si los vagones con su carga máxima pueden circular por los túneles y bajo los pasos elevados.
- ↑ Gabriel Rodríguez Alberich (gabi@gabi.is) y Real Academia Española (2017). «Gálibo». DIRAE. Consultado el 2 de junio de 2020. «Gálibo, del árabe hispánico qálib, este del árabe clásico qālab o qālib, y este del griego καλόπους, horma».
- ↑ «Glossary». NetworkRail.co uk. Network Rail. Archivado desde el original el 6 de mayo de 2009. Consultado el 15 de mayo de 2009.
- ↑ «European Loading Gauges». www.crowsnest.co.uk. Archivado desde el original el 13 de febrero de 2010.
- ↑ Douglas Self. «A Word on Loading Gauges». Archivado desde el original el 3 de marzo de 2016.
- ↑ «HS2 Cost and Risk Model Report». p. 15. Archivado desde el original el 20 de octubre de 2013.
- ↑ a b c d e Gobierno de España. «Orden FOM/1630/2015, de 14 de julio, por la que se aprueba la "Instrucción ferroviaria de gálibos".». Boletín Oficial del Estado. Consultado el 6 de junio de 2020.
- ↑ a b c «European Loading Gauges». Modern Railways. April 1992. Archivado desde el original el 13 de febrero de 2010.
- ↑ a b c GE/GN8573 Guidance on Gauging, Issue 3. London: Rail Safety and Standards Board. October 2009. p. 20. Archivado desde el original el 7 de septiembre de 2012. Consultado el 2 de julio de 2013.
- ↑ «2002/735/EC: Commission Decision of 30 May 2002 concerning the technical specification for interoperability relating to the rolling stock subsystem of the trans-European high-speed rail system». Archivado desde el original el 19 de octubre de 2015. Consultado el 6 de junio de 2020.
- ↑ a b c Mike Smith (2003). «Track Gauge & Loading Gauge». Archivado desde el original el 12 de agosto de 2009.
- ↑ «Leaflet 506 – Rules governing application of the enlarged GA, GB, GB1, GB2, GC and GI3 gauges». Archivado desde el original el 7 de octubre de 2011. Consultado el 27 de mayo de 2009.
- ↑ EUR-Lex (28 de julio de 2006). «TSI CR WAG; 02006D0861-20130124; Annex C: Track interaction and gauging». Archivado desde el original el 19 de octubre de 2015. Consultado el 7 de octubre de 2015.
- ↑ «Verladerichtlinien der DB Schenker Rail AG (UIC – Verladerichtlinien); Tafel 1 Sammlung der Lademasse» (en alemán). 1 de julio de 2014. Archivado desde el original el 19 de octubre de 2015. Consultado el 6 de octubre de 2015.
- ↑ Jacques Molinari (April 1999). «Transport combiné et infrastructures ferroviaires; Compléments 1 – Terminologie – Chargements – Gabarits – Institutions» (en francés). Archivado desde el original el 6 de marzo de 2016. Consultado el 29 de septiembre de 2015.
- ↑ «Archived copy». Rail Safety and Standards Board (RSSB). January 2013. Archivado desde el original el 19 de octubre de 2015. Consultado el 3 de agosto de 2015.
- ↑ «Freight Opportunities Stage 2 Part 3 – Available Space Assessment – ISO Container Routes». Rail and Safety Standards Board. September 2007. 7481- LR- 009 issue 1. Archivado desde el original el 27 de septiembre de 2011. «(2 definiciones) Gálibo 'W'. Un conjunto de dimensiones estáticas que definen el tamaño físico de los vehículos de carga. [...] (3 Metodología) Se supone que las combinaciones de contenedor/vagón consideradas se ajustan a las dimensiones establecidas en el gálibo de estructura de la parte inferior. Por lo tanto, solo las holguras estructurales anteriores situadas 1100 mm (43,31 plg) por encima del nivel del carril son evaluadas.»
- ↑ «The V/S SIC Guide to British gauging practice». Rail and Safety Standards Board. January 2013. Archivado desde el original el 19 de octubre de 2016. Consultado el 19 de febrero de 2018. «Mark 3 coaches are labeled C3 restriction and Class (Pendolino) trains are labeled C4. These do not refer to any standard gauge.»
- ↑ «GE/GN8573». Archivado desde el original el 29 de septiembre de 2011. Consultado el 15 de mayo de 2009.
- ↑ «Business Plan 2004 – Network Capability». Network Rail. Archivado desde el original el 29 de septiembre de 2012. Consultado el 15 de mayo de 2009.
- ↑ a b c «Felixstowe South reconfiguration inspector's report, Strategic Rail Authority submission». Department for Transport. Archivado desde el original el 10 de febrero de 2010. Consultado el 21 de julio de 2017.
- ↑ «Megafret». ersrail.com. Archivado desde el original el 5 de julio de 2015. Consultado el 22 de noviembre de 2012.
- ↑ a b c «TEN PROPOSED ENHANCEMENT SCHEMES IN SCOTLAND». Freight on rail. Archivado desde el original el 18 de noviembre de 2008. Consultado el 17 de mayo de 2009.
- ↑ «Standard Shipping Containers». Container container. Archivado desde el original el 7 de julio de 2009. Consultado el 18 de mayo de 2009.
- ↑ a b «British and Continental Loading Gauges». Joyce's World of Transport Eclectica. Archivado desde el original el 29 de septiembre de 2007. Consultado el 18 de mayo de 2009.{ate=March 2013}
- ↑ «24 November 2006 Freight RUS Consultation Response National RUS». Central Railways. Archivado desde el original el 7 de agosto de 2008. Consultado el 17 de mayo de 2009.
- ↑ a b «Freight RUS». Archivado desde el original el 2 de marzo de 2012. Consultado el 16 de mayo de 2009.
- ↑ «Strategic Freight Network: The Longer-Term Vision». Department for Transport. Archivado desde el original el 4 de mayo de 2011. Consultado el 17 de mayo de 2009.
- ↑ «New SRA Gauging Policy Aims to Make Best Use of Network Capability». Department for Transport. Archivado desde el original el 12 de mayo de 2009. Consultado el 15 de mayo de 2009.
- ↑ Railway Magazine February 1959 pp. 94–96 Michael Robbins: The Size of the Tube
- ↑ «Spårteknik – Fritt utrymme utmed banan» (en swedish). Trafikverket. 15 de mayo de 1998. Archivado desde el original el 30 de enero de 2013. Consultado el 18 de septiembre de 2012.
- ↑ a b c d Association of American Railroads; Mechanical Division (15 de mayo de 1966). «Car and locomotive cyclopedia of American practice.». Car and Locomotive Cyclopedia of American Practice. OCLC 5245643.
- ↑ a b c https://web.archive.org/web/20210224215901/https://my.aar.org/OTLR/Documents/Section%201/Section1AppendixA_20200826.pdf
- ↑ «Clearance maps for CSX, a typical major carrier». Archivado desde el original el 10 de diciembre de 2012. Consultado el 6 de junio de 2020.
- ↑ «Comparaison des gabarits UIC et nord-américains (Comparison of UIC and North American Gauges)». Marc Dufour. Archivado desde el original el 12 de septiembre de 2009. Consultado el 16 de octubre de 2009.
- ↑ a b c d e f g h i j k l Appendix A
- ↑ April 2001 Official Railway Equipment Register «Archived copy». Archivado desde el original el 9 de mayo de 2013. Consultado el 23 de noviembre de 2012. «Archived copy». Archivado desde el original el 1 de abril de 2010. Consultado el 23 de noviembre de 2012.
- ↑ a b c d e f Guide to Railcn:ars
- ↑ «Guide to Railcars». Archivado desde el original el 31 de octubre de 2011. Consultado el 6 de junio de 2020. Texto «-» ignorado (ayuda); Texto «J» ignorado (ayuda)
- ↑ «Railway line clearances and car dimensions including weight limitations of railroads in the United States, Canada, Mexico and Cuba.». Railway Line Clearances and Car Dimensions Including Weight Limitations of Railroads in the United States, Canada, Mexico and Cuba. OCLC 10709088.
- ↑ Dufour, Marc. «CoupeTunnelDouble» (GIF). La ligne de banlieue Montréal – Deux-Montagnes & le réseau ferré de banlieue. Archivado desde el original el 10 de octubre de 2007. Consultado el 13 de mayo de 2008.
- ↑ «NYC Fun Facts: Not All NYC Subway Trains Are the Same Size». Untapped Cities. 2 de agosto de 2017. Consultado el 11 de julio de 2018.
- ↑ Línea de la Segunda Avenida Draft Environmental Impact Statement, «Glossary». (45.6 KiB)
- ↑ Clarke, Bradley (1981). The Boston Rapid Transit Album. Cambridge, Mass.: Boston Street Railway Association. p. 8.
- ↑ Fischler, Stanley I. (1979). Moving millions : an inside look at mass transit (1st edición). New York: Harper & Row. ISBN 0-06-011272-7.
- ↑ 久保田博 (13 de febrero de 1997). ja:鉄道工学ハンドブック (en japonés). グランプリ出版. pp. 148-149. ISBN 4-87687-163-9. 和書.
- ↑ «ja:鉄道に関する技術上の基準を定める省令等の解釈基準» (en japonés). Ministry of Land, Infrastructure, Transport and Tourism.
- ↑ a b c Hiroshi Kubota (13 de febrero de 1997). Railway Engineering Handbook (en japonés). Grand Prix publishing. p. 148. ISBN 4-87687-163-9.
- ↑ National Standard GB146.1–83 Rolling stock gauge for standard gauge railways
- ↑ Janes World Railways
- ↑ «New intercity trains too wide for rail line to stations in Blue Mountains». Sydney Morning Herald. Archivado desde el original el 1 de enero de 2017. Consultado el 10 de mayo de 2017.
- ↑ «Engineers Australia, WA SGR Nomination».
- ↑ «Lastprofiler Finland» (en swedish). Green Cargo. 15 de diciembre de 2009. Archivado desde el original el 11 de noviembre de 2011. Consultado el 18 de septiembre de 2012.
- ↑ a b c d e f «ГОСТ 9238-2013». 1 de julio de 2014. Archivado desde el original el 15 de abril de 2018.
- ↑ «ГОСТ 9238-83 Габариты приближения строений и подвижного состава железных дорог колеи 1520 (1524) мм». vsegost.com. Archivado desde el original el 17 de septiembre de 2016.
- ↑ Festiniog Railway Volume Two by James Boyd p365. ISBN 0-85361-168-8.
- ↑ «THE FESTINIOG RAILWAY.». Rockhampton Bulletin (Qld.). 17 de abril de 1873. p. 3. Consultado el 3 de diciembre de 2011 – vía National Library of Australia.
- ↑ «National Rail System Standard 6 – Engineering Interoperability Standards». KiwiRail. 12 de abril de 2013. Archivado desde el original el 24 de enero de 2016. Consultado el 6 de septiembre de 2015.
- ↑ The Railway Magazine April 2015, p12
- ↑ «Here is a platform alteration». rail.co.uk. 17 de febrero de 2015. Archivado desde el original el 20 de agosto de 2016.
- ↑ «Report 17/2015: Trains struck platform at Moston, Manchester». gov.uk. Rail Accident Investigation Branch. 7 de octubre de 2015. Archivado desde el original el 24 de septiembre de 2016.
Enlaces externos
- 2002/732 / EC: Decisión de la Comisión de 30 de mayo de 2002 sobre la especificación técnica de interoperabilidad de la infraestructura subsistema del sistema ferroviario transeuropeo de alta velocidad
- Berna y todo eso (diagrama de 1992 de los gálibos europeos) en crowsnest.com (Las imágenes no se abren)
- Diagramas de calibre de carga de "placa" AAR en comparación con UIC (pdf y Autocad)
- Indicadores de carga ferroviaria en Joyce's World of Transport Eclectica(Enlace roto: mayo de 2020)
- Loading Gauges en The Self Site
- Fichas UIC
- Asociación de Autorización Industrial Ferroviaria
- British Track Gauge & Loading Gauge
- APTA PR-CS- RP-003-98
- Despejes de línea de ferrocarril y dimensiones de vagones, incluidas las limitaciones de peso de los ferrocarriles en los Estados Unidos, Canadá, México y Cuba
- Tipos AAR y UIC




