Iglesia de Orosi
| Iglesia de San José de Orosi | ||
|---|---|---|
| Monumento nacional | ||
![]() | ||
| Localización | ||
| País |
| |
| División |
| |
| Subdivisión |
| |
| Dirección | Orosi 30203 | |
| Coordenadas | 9°47′50″N 83°51′20″O / 9.7972722222222, -83.855508333333 | |
| Información religiosa | ||
| Culto | Iglesia católica | |
| Uso | Abierta al culto | |
| Advocación | José de Nazaret | |
| Historia del edificio | ||
| Fundación | 1767 | |
| Fundador | Franciscanos | |
| Construcción | 1743-1767 | |
| Datos arquitectónicos | ||
| Estilo | Arquitectura vernácula | |
| Materiales | Adobe, bahareque y mampostería | |
| Nave principal | Tres naves, cubierta con artesonado | |
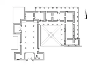
| Planta del edificio | ||
![]() Plano del conjunto | ||
La Iglesia de Orosi, también conocida como Iglesia Colonial de Orosi o Iglesia de San José de Orosi, es un templo cristiano católico y parroquia ubicado en el distrito de Orosi, perteneciente al cantón de Paraíso de Cartago, en Costa Rica. Es una de las más antiguas edificaciones del país, que datan de la época de la Colonia española, que persisten hasta la actualidad. Fue construida en 1767 por frailes franciscanos, y está dedicada a San José. En el antiguo convento de los frailes, se ubica actualmente un museo de arte religioso. Desde 1920 es patrimonio histórico-arquitectónico de Costa Rica, y en 1985, fue declarada Monumento Nacional.
.jpg)
Historia
La parroquia de San José de Orosi fue fundada por misioneros franciscanos en el siglo xviii, en el sitio que ocupó el pueblo de indios de Orosi, fundado en 1570 luego de que el gobernador español Perafán de Ribera repartiese a los indígenas locales en encomienda. La población de Orosi es aún más antigua: se trató de un asentamiento habitado por indígenas huetares, que ocupaban el Valle de Orosi a la hora del arribo de los europeos en el siglo xvi.
En 1743, los misioneros edificaron un convento, y diez años después, en 1753, erigieron una parroquia. En 1766, finalizaron la construcción del templo, edificado en cañabrava y adobe, que es el mismo que persiste hasta el siglo xxi, siendo de este modo la iglesia más antigua de Costa Rica aún en funcionamiento.
La construcción de la ermita inició en 1743 y finalizó en 1766, y formó parte de otras 12 ermitas construidas en la región por los misioneros franciscanos Antonio Margil y Melchor López, quienes iniciaron la evangelización en la región de Talamanca en 1689 con la fundación del poblado de San José Cabécar. De estas 12 ermitas, solamente el templo de Orosi subsiste hasta la actualidad. Diez años después de la llegada de los frailes, en 1699, los indígenas que habitaban la reducción de Orosi fueron trasladados a Ujarrás, por considerarse el lugar (Orosi) «enfermizo» debido a dos epidemias en 1690 y 1694. En 1753, con la erección de la parroquia de Orosi, pero especialmente en 1755, con las revueltas indígenas en Talamanca y el fracaso de los franciscanos en evangelizar esa región, los misioneros repueblan el lugar con indígenas cabécares, que en 1763 alcanzan los 300 habitantes. El templo, abandonado a partir de 1846 con la partida de los franciscanos, comienza a ser restaurado en 1973 bajo el impulso de fray Ginés Dima Mateos, hasta que en 1986 empieza a ser administrado por los frailes diocesanos.
La iglesia colonial de Orosi cuenta con la particularidad de que mira hacia el oriente, a diferencia de la mayoría de los templos católicos. Esta situación es explicada a través de una leyenda local, según la cual, tras la destrucción del templo de San José en la comunidad de Cabécar, como consecuencia de las revueltas indígenas lideradas por Pablo Presbere en 1709, los padres franciscanos que habían huido llevándose la imagen del santo erigieron una ermita de paja en Orosi, la cual fue destruida en dos ocasiones por inundaciones del río Reventazón. Tras continuas oraciones, se comprendió que la iglesia debía ser construida a la inversa, de modo que la imagen de San José pudiese mirar siempre hacia el oriente, hacia las montañas de su «amado Cabécar», con lo cual ni las inundaciones ni los consecuentes terremotos en la región de Cartago pudieron derrumbar el antiguo recinto.
El templo de Orosi, fabricado en gruesas paredes de adobe, posee una línea arquitectónica sencilla que le da un aspecto humilde y a la vez sobrio. Posee una fachada blanca de forma triangular, que sostiene un techo a dos aguas hecho de tejas. Destaca una sólida torre blanca adosada al costado noroeste del edificio principal, donde se encuentra el campanario. La planta basilical se encuentra dividida en tres pequeñas naves con pavimento de ladrillo y pilastras de cedro con base de piedra que sostienen un techo artesonado de tablones de madera, originalmente hecho de cañabrava. Posee dos capillas: la Bautismal y la de las Ánimas, ubicadas en la nave izquierda. El retablo mayor con la imagen de San José se encuentra en la nave central. Dos retablos rematan los muros en las naves laterales, mientras que la sacristía a la derecha da paso al convento, con forma de «L», al costado sureste del templo. El espacio delante de la fachada del templo y el patio del convento se encuentran ocupados por un tupido jardín de hortensias. En el patio del convento, se encuentra un sepulcro. Un vano en forma de arco, hecho en la época actual, sirve de entrada al recinto.
En 1920, el templo de Orosi fue declarado Patrimonio Nacional. A partir de 1996, pasó a ser administrado por frailes diocesanos, siendo restaurado en dos ocasiones, 1976 y 1980. En este último año, el antiguo convento franciscano fue transformado en la sede del Museo de Arte Religioso de San José de Orosi.
Arquitectura
El templo de Orosi posee una arquitectura típicamente de estilo colonial: es una construcción tipo misión, que integra la iglesia y el convento mediante un corredor, fabricada con gruesas paredes de adobe, bahareque y calicanto. Posee una línea arquitectónica sobria y sencilla, austera. Su fachada principal es un cuerpo de forma triangular, con un techo a dos aguas hecho de tejas. La puerta principal se encuentra coronada por un arco de medio punto. Al costado noroeste, adosada al edificio principal, se encuentra una torre-campanario que destaca por sobre el resto del conjunto. El templo es un edificio de una sola planta, dividido en tres naves, con pavimento de ladrillo y pilastras de cedro. Estas pilastras se asientan sobre bases de piedra, y sostienen el artesonado de tablones de madera del techo. En su interior, el presbiterio se eleva del resto de la construcción apenas por dos escalones. De una sola planta, la iglesia se mantiene a la misma altura que el atrio.
La nave izquierda del templo posee dos capillas, llamadas Bautismal y de las Ánimas. En la nave central se encuentra el retablo mayor con la imagen de San José, mientras que otros dos retablos se sitúan en las naves laterales. A la derecha del recinto, se encuentra la sacristía, que se comunica con el convento, en forma de letra L, ubicado al sureste del templo, y en donde actualmente se halla el Museo de Arte Religioso de Orosi, en el cual pueden encontrarse piezas antiguas de cerámica precolombina, valiosas pinturas de la época colonial, esculturas e imaginería y otros objetos religiosos hechos de plata. En contraste con la sencillez de la misión, estas obras de arte dan al lugar cierto ambiente barroco.
Posee un patio central. Al sur, se ubica el cementerio. Un vano contemporáneo, hecho en forma de arco, sirve de entrada al sitio.
Museo
Junto a la iglesia de Orosi, se encuentra el Museo de Arte Religioso de San José de Orosi, ubicado en el antiguo Convento de Padres Franciscanos, que data de 1760. Abrió sus puertas en 1980, y ofrece a los visitantes un panorama completo de la historia católica del lugar, con abundantes manifestaciones artísticas religiosas practicadas en la época de la colonia española en Costa Rica.
La colección de arte consta de unas 120 piezas entre las que se pueden encontrar pinturas, esculturas de santos, un sepulcro y muchos objetos religiosos de plata, además de algunas piezas de cerámica indígena que datan de la época precolombina. El museo también expone un antiguo claustro de un fraile franciscano, el comedor utilizado en el convento desde el siglo XVIII y las casullas que se empleaban en los servicios religiosos de la época.
Entre las obras de arte más valiosas de este museo, hay 5 pinturas que fueron traídas desde México, las cuales, aunque carecen de firma de los autores, su estilo y composición hace suponer a los expertos que pertenecen a la escuela mexicana de Miguel Cabrera, Miguel Correa y Luis de Morales. Estas pinturas son «La muerte de San José», «La Virgen del Carmen», «La Inmaculada Concepción», «La Piedad» y «San Miguel Arcángel».
Véase también
Referencias
- Lemistre Pujol, Annie: Orosi. San José, Costa Rica: Ministerio de Cultura Juventud y Deportes,1980.
.jpg)
