Parque de la Conferencia
| Parque de la Conferencia | ||
|---|---|---|
![]() Mapa | ||
| Ubicación | ||
| País |
| |
| Comunidad |
| |
| Provincia |
| |
| Localidad | Algeciras | |
| Coordenadas | 36°07′32″N 5°26′32″O / 36.12555556, -5.44222222 | |
| Características | ||
| Tipo | Parque | |
| Área | 9011 m² | |
| Historia | ||
| Inauguración | 2007 | |
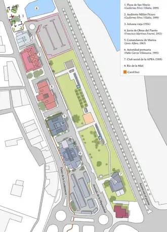
El parque de la Conferencia de Algeciras (provincia de Cádiz) España está situado junto a la avenida de la Hispanidad en terrenos portuarios ganados al mar, fue inaugurado en 2007. La extensión del parque es de 9011 metros cuadrados y consta de tres zonas, un gerontoparque, un parque infantil y una pradera de césped y palmeras, todo ello conectado por un paseo de 2000 metros cuadrados en el que se encuentran dos fuentes geométricas y varias pérgolas.[1] Anteriormente a su construcción en el lugar se localizaba el parque de las Anclas, muy deteriorado por las obras de ampliación de los muelles a principios del siglo XXI.
La Avenida de la Hispanidad marca el límite entre la ciudad y la entrada sur del puerto, en ella se encuentra la sede de la Autoridad Portuaria, el vicerrectorado del Campus Bahía de Algeciras, las Aduanas, la sede de Sestibalsa, la Comandancia Militar de Marina o el auditorio Millán Picazo. En el extremo sur del parque se sitúa desde 2008 la sede social de los trabajadores de la Autoridad portuaria, un edificio diseñado por los arquitectos Emilio Rivas y Rafael Otero.[2]
El parque nació como fruto de la colaboración entre el Ayuntamiento de la ciudad, la Autoridad Portuaria de la Bahía de Algeciras, y la empresa MAERSK con motivo del centenario de la Conferencia de Algeciras y de la creación de la Junta de Obras del Puerto.[3]
Referencias
- ↑ Veintepies.com (ed.). «Hoy se inaugura en el puerto de la Bahía de Algeciras el Parque de la Conferencia». Consultado el 11 de enero de 2012.
- ↑ Europa Sur (ed.). «Una pieza escultórica como sede». Consultado el 11 de enero de 2012.
- ↑ Reportero Digital (ed.). «Inaugurado en Algeciras el Parque de la Conferencia de 1906». Archivado desde el original el 18 de diciembre de 2011. Consultado el 11 de enero de 2012.
Enlaces externos
Wikimedia Commons alberga una categoría multimedia sobre Parque de la Conferencia.
