Reloj astronómico de Mesina
| Reloj astronómico de Mesina | ||
|---|---|---|
![]() | ||
| Localización | ||
| País | Italia | |
| Ubicación | Catedral de Mesina, Sicilia | |
| Coordenadas | 38°11′32″N 15°33′17″E / 38.1923, 15.5547 | |
| Información general | ||
| Usos |
| |
| Inicio | 1930 | |
| Finalización | 1933 | |
| Altura | ||
| Altura arquitectónica |
| |
| Diseño y construcción | ||
| Arquitecto |
| |
El reloj astronómico de Mesina es una obra realizada por Théodore Ungerer y Frédéric Klinghammer entre 1930 y 1933. Está ubicado en el campanario de la Catedral de Mesina, en Sicilia (Italia).
Historia
Contexto
La mañana del 28 de diciembre de 1908 un terremoto de magnitud 7,2 asoló las zonas del estrecho de Mesina, Mesina y Regio de Calabria; el seísmo destruyó estas áreas en apenas unos segundos y causó la muerte de alrededor de 120 000 personas, lo que en aquel entonces representaba más de la mitad de su población. Respecto a Mesina, donde hubo en torno a 80 000 víctimas mortales, ni la catedral ni su campanario lograron salvarse, quedando la estructura casi derruida por completo, si bien este terremoto no era el primer seísmo al que hacía frente la región, ya que además de numerosos incendios, los fenómenos sísmicos se han caracterizado por marcar la historia de la zona. La catedral original había sido promovida por el normando Roger II de Sicilia, aunque el templo no sería consagrado hasta cuarenta y tres años después de su muerte, el 22 de septiembre de 1197, en presencia de su hija Costanza y el marido de esta, el rey Enrique VI del Sacro Imperio Romano Germánico. Desde el mismo momento de su construcción la catedral fue objeto de reformas destinadas a adaptar la estructura a los gustos estéticos del momento, culminando su existencia con los seísmos ocurridos entre febrero y marzo de 1783 en la zona del estrecho de Mesina, perdiéndose además el valioso grupo de obras de arte que se custodiaba en su interior. El campanario, de 90 metros de altura incluyendo la aguja de madera que lo coronaba, sería reconstruido tras el desastre y demolido en 1863 por hallarse en estado ruinoso,[1] mientras que la reedificación de la catedral efectuada entre 1919 y 1929 quedaría arrasada en la Segunda Guerra Mundial.[2]: 48
Construcción
El campanario actual, erigido varios años después del terremoto, fue encargado por Angelo Paino; nombrado obispo en 1909 y arzobispo en 1921, Paino siempre luchó por recuperar la arquitectura de la ciudad, particularmente después del seísmo y tras los bombardeos de 1943, reconstruyendo cientos de iglesias y rectorías así como decenas de colegios, centros de caridad, guarderías y bibliotecas. El proyecto para el levantamiento del campanario fue comisionado en 1930 al arquitecto e ingeniero Francesco Valenti,[1][3] quien ocupó el cargo de Superintendente de Monumentos de Sicilia oficialmente de 1924 a 1935. En aquel entonces en la isla estaba muy extendido el gusto por la arquitectura árabe-normanda, empleada con gran profusión en la renovación de edificios y en la erección de nuevas construcciones, preocupándose Paino de mantener la estética del anterior campanario. La nueva torre fue inaugurada ante 70 000 personas el 13 de agosto de 1933;[1][4] pese a perder su carácter monumental (mide 60 metros frente a los 90 metros de la original), el campanario se enriqueció por iniciativa de Paino con un fabuloso reloj astronómico hasta entonces nunca visto el cual le ha otorgado la fama que ostenta en la actualidad. Este dispositivo, de 48 metros de alto, fue creado entre 1930 y 1933 por Frédéric Klinghammer,[1][5] ingeniero al servicio de la compañía Ungerer, con sede en Estrasburgo; para ello siguió un diseño elaborado por Théodore Ungerer a partir del reloj astronómico de dicha ciudad,[1] de cuyo mantenimiento se encargaba la empresa, aunque la idea de tomar este reloj como modelo se debe al papa Pío XI, quien sugirió a Paino que se inspirase en él sirviéndose de una maqueta a escala donada en 1887 por los obispos de Estrasburgo Andreas Räß y Peter Paul Stumpf al papa León XIII. Räß había encargado este reloj como regalo para el pontífice, si bien su muerte el 17 de noviembre de 1887 le impidió ver la obra terminada, por lo que fue Stumpf, su sucesor, quien hizo entrega de la pieza, la cual pasó a ser propiedad del Vaticano y posteriormente de Paino, quien el 30 de enero de 1952, víspera de la festividad de Don Bosco, la regaló a los Padres Salesianos del Santísimo Salvador de Mesina, conservándose a día de hoy en el Oratorio Salesiano Domenico Savio.[4][6][7]
Descripción
El reloj astronómico señala, entre otros, la hora, los días de la semana, el calendario lunar y el ciclo planetario, indicando además el tiempo litúrgico a la vez que relata la historia de la ciudad y su vida religiosa. Ungerer quiso dar un profundo significado simbólico al movimiento ascendente del espíritu humano hacia Dios, por lo que distribuyó las dieciséis piezas de las que se compone la estructura en cuatro tetralogías colocadas sobre los cuatro brazos de una cruz. El conjunto de dioramas que conforman el reloj se halla dispuesto en el lado de la torre que da a la plaza de la catedral, donde un total de 54 autómatas elaborados en bronce dorado realizan siete representaciones (cuatro de ellas de corte histórico), con el inicio de la función, de aproximadamente doce minutos de duración, en la parte alta de la torre.[1][8][9]
Fachada principal
Zona superior
A las 12:00 horas, directamente bajo el cuadrante del reloj (de 2,40 metros de diámetro y presente en las cuatro caras de la torre),[9] un león coronado de cuatro metros de altura empieza a mover la cola y a ondear un mástil de 6,30 metros[8] en el que figura el estandarte de la ciudad, caracterizado por una cruz blanca sobre un fondo rojo (símbolo empleado desde el siglo v), al tiempo que mueve la cabeza y abre sus fauces para emitir un rugido, proceso que realiza hasta tres veces. La figura del animal con la bandera recuerda a su vez al estandarte de Mesina, descrito oficialmente como un «escudo samnita, con forma de león rampante sobre un campo azul. El león, de oro, con la cabeza coronada, sostiene con sus patas delanteras el estandarte de Mesina, de color rojo con una cruz de oro, cuyo asta en la parte superior está coronado por una bola y rodeado por una guirnalda de roble y laurel adornada con cintas rojas; debajo de la guirnalda ondea una banda bífida en plata con el lema Fert Leo vexillum Messanae cum cruce».[1] Los movimientos del león, a cuya altura se encuentran ocho campanas, se realizan gracias a ejes verticales y horizontales, mientras que el movimiento del estandarte se debe a una plataforma giratoria. Por su parte, la bandera no es la original ya que esta fue objeto de un robo a finales de la década de 1960 por parte de los goliardos toscanos en respuesta a una acción similar de los mesinenses.[8]
Zona central

En la zona central, una vez finalizados los rugidos del león, un gallo de cerca de 2,50 metros de alto y con las alas, la cabeza y el pico móviles empieza a cantar, proceso que, al igual que el león, realiza tres veces. El gallo constituye un símbolo cristiano además de poseer un significado específico puesto que tal y como propuso el papa Gregorio Magno en el Regula Pastoralis, el animal simboliza al buen predicador: al inicio, el gallo mueve las alas en referencia al penitente que se golpea el pecho tras reconocer sus pecados, procediendo acto seguido a cantar del mismo modo que un sacerdote solo puede predicar tras haber hecho examen de conciencia. Sumado a esto, el gallo posee un destacado papel en los Evangelios puesto que Jesús profetiza en ellos la negación de San Pedro al exclamar: «En verdad te digo que esta misma noche, antes de que el gallo cante, me negarás tres veces».[1][8] A ambos lados del animal, a cuyos pies se conserva el «corazón del reloj» (un potente mecanismo de relojería con contrapesos que rige el movimiento de los 54 autómatas),[9] se ubican dos campanas y, junto a ellas, dos figuras de aspecto femenino y cerca de 3,10 metros de altura cuya función es hacerlas sonar. Cada una tiene un brazo alzado al cual está sujeta una cuerda atada a su vez al badajo; los autómatas tiran de la cuerda al girar levemente la parte superior de sus torsos, movimiento sincronizado con un martillo que es el que golpea realmente la campana, dando los cuartos la de la izquierda (fechada en 1590) y las horas la de la derecha (fechada en 1679).[1][8] Estos autómatas representan a las dos heroínas de Mesina, Dina y Clarenza, quienes de acuerdo con una leyenda sobre las Vísperas sicilianas la noche del 8 de agosto de 1282, en pleno asedio angevino y estando de guardia en las murallas de la colina de Caperrina, advirtieron de la intención de las tropas francesas de invadir la ciudad haciendo sonar las campanas, ayudando a mayores a repeler al enemigo arrojando grandes rocas sobre los soldados desde lo alto de las murallas.[1]
Debajo del grupo formado por Dina, Clarenza y el gallo se ubica Nuestra Señora de la Carta (Madonna della Lettera), patrona de Mesina, quien figura en el centro de un retablo neogótico enmarcado en una ventana rectangular y rodeada de un carrusel por el que van desfilando varios personajes en fila. El culto a Nuestra Señora de la Carta fue instaurado en el siglo xviii y su origen se halla en una tradición popular según la cual San Pablo, tras predicar en Mesina en el año 42, llevó consigo a varios ciudadanos conversos rumbo a Tierra Santa; estos llevaron a Jerusalén una carta en la que los habitantes de Mesina solicitaban la protección de la Virgen, quien les respondió con una misiva sellada con un mechón de su cabello el 8 de septiembre del mismo año, día en que se celebra la Natividad de María. En dicha misiva la Virgen otorgaba su protección a Mesina, terminando la carta con estas palabras: «Vos et ipsam civitatem benedicimus» («Os bendecimos a vos y a la ciudad misma»). El carrusel que evoca este episodio, el cual arranca tras el diorama de las escenas del Nuevo Testamento y pone fin a la función, muestra en primer lugar a un ángel haciendo entrega de la carta, la cual, sujeta estratégicamente al carrusel por un poste apenas visible, queda frente a la Virgen, con cinco personajes representativos de San Pablo y cuatro mesinenses desfilando tras el ángel. Destaca el hecho de que el segundo personaje del grupo recoge la carta a medida que se desplaza, la cual pasa a convertirse en la respuesta que María dio a los habitantes de Mesina. Al momento de desfilar frente a la Virgen los seis autómatas se giran hacia ella y hacen una reverencia mientras María levanta el brazo derecho en actitud de bendecir,[10] realizando al final la señal de la cruz.
Zona inferior

La parte alta de la zona inferior de la torre alberga un complejo diorama con cuatro escenas del Nuevo Testamento las cuales se reproducen en función del periodo litúrgico y tras la representación de la fundación del Santuario de la Madona de Montalto: la primera escena constituye la Natividad y en ella aparecen San José y la Virgen de pie detrás del Niño Jesús, quien está acostado en un pesebre, desfilando por el carrusel que los rodea varios pastores del mismo modo que en el diorama de Nuestra Señora de la Carta (se muestra de Navidad a Reyes); la segunda escena es la Adoración de los Reyes Magos, la cual se complementa con sus pajes y la Estrella de Belén (se muestra de Reyes a Pascua); la tercera es la Resurrección de Jesús, quien surge de su sepulcro para a continuación desaparecer a medida que se aleja de los espectadores mientras dos guardias romanos presencian el acontecimiento (se muestra de Pascua a Pentecostés); y finalmente la cuarta constituye Pentecostés, representándose el momento en que una paloma revolotea sobre la Virgen y los apóstoles al tiempo que alzan sus brazos y surgen llamas sobre las cabezas de los discípulos (se muestra de Pentecostés a Navidad).[9][10]
Inmediatamente debajo se halla el diorama que relata la fundación del Santuario de la Madona de Montalto. El 12 de junio de 1294 un fraile de nombre Nicola, quien vivía en las faldas del monte Caperrina, tuvo una visión en la que la Virgen le pedía que construyese una iglesia en su honor y llevase a las autoridades al monte para que a mediodía viesen a una paloma trazar el prímetro del templo con su vuelo; siguiendo sus indicaciones, el fraile comunicó el mensaje a los gobernantes de la ciudad así como a los lugareños, reuniendo posteriormente a las autoridades en el lugar señalado, donde a mediodía se pudo ver a una paloma blanca dibujando con su vuelo el perímetro exacto del templo, tal y como había predicho la Virgen.[9][10] En el diorama se aprecia una paloma en la zona superior dando vueltas en círculos mientras una maqueta del santuario surge de entre las rocas. Esta escena, la cual se reproduce después del canto del gallo, está acompañada del famoso «Ave María» compuesto por Franz Schubert en 1825,[10] pieza que suena hasta el final de la función.
Debajo del diorama del Santuario de la Madona de Montalto se encuentran otros dos. El de la parte superior arranca con cada toque de campana y se compone de una alegoría representativa de la Muerte moviendo su guadaña al son de las horas y los cuartos, desfilando frente a ella cada cuarto de hora una de las cuatro imágenes que reproducen a tamaño natural las cuatro fases de la vida: niño con antorcha (infancia), joven con arco (juventud), soldado con espada (madurez) y anciano con bastón (vejez).[9][10] Por su parte, el de debajo contiene un carrusel en el que cada figura, consistente en una deidad pagana montada en un carro, indica el día de la semana cambiando de posición a las 00:00 horas: el diorama se inicia el domingo con Apolo en un carro tirado por un caballo, seguido del lunes con Diana en un carro tirado por un ciervo, el martes con Marte en un carro tirado por un caballo, el miércoles con Mercurio en un carro tirado por una pantera, el jueves con Júpiter en un carro tirado por una quimera, el viernes con Venus en un carro tirado por una paloma y el sábado con Saturno en un carro tirado por una quimera.[9][10]
Fachada lateral
La cara de la torre que da a la catedral muestra los dispositivos mecánicos de alta precisión que rigen el movimiento del reloj astronómico,[10] careciendo de interés la zona superior por hallarse en ella dos arcos ajimezados sin ninguna función relacionada con el reloj.
Zona central
En la zona central destaca un calendario lunar el cual consiste en un globo de 1,20 metros de diámetro dividido en hemisferio norte y hemisferio sur (uno de color dorado y otro de color negro). El globo efectúa un movimiento rotatorio que dura 29 días, 12 horas, 44 minutos y 3 segundos, tiempo que coincide con el mes sinódico. Por su parte, la alternancia entre ambos hemisferios muestra con precisión el cambio del ciclo lunar a partir de una luna nueva.[10]
Zona inferior
En la parte alta de la zona inferior se halla un calendario planetario consistente en un círculo de 3,50 metros de diámetro en el que figuran las constelaciones del Zodíaco en torno a una reproducción tridimensional del sistema solar, con los planetas situados a una distancia proporcional a la original y un tiempo de revolución sincronizado con el real con una aproximación a la centésima de segundo.[9][10] Bajo el calendario se encuentra una placa con la siguiente inscripción:
MONSIGNOR ANGELO PAINO ARCIVESCOVO ED ARCHIMANDRITA
DONANDO A MESSINA QVESTO INSIGNE OROLOGIO
MIRACOLO DINTELIGENZA E DARTE
DEGLI VNGERER DI STRASBVRGO
VOLLE
CHE ALLE MISTICHE VOCI DEI SACRI BRONZI
FOSSERO VNITE
LE VOCI DELLA STORIA E DEL TEMPO
NEL RICHIAMO DEI FIGLI SVLLE VIE DI DIO
IL XIII AGOSTO DEL XIX CENTENARIO DELLA REDENZIONEMONSEÑOR ANGELO PAINO ARZOBISPO Y ARCHIMANDRITA
ENTREGA A MESINA ESTE INSIGNE RELOJ
MILAGRO DE LA INTELIGENCIA Y DEL ARTE
DE LOS UNGERER DE ESTRASBURGO
QUISO
QUE A LAS VOCES MÍSTICAS DE LOS SAGRADOS BRONCES
SE UNIESEN
LAS VOCES DE LA HISTORIA Y DEL TIEMPO
EN LA LLAMADA DE LOS HIJOS POR LOS CAMINOS DE DIOS
EL XIII DE AGOSTO DEL XIX CENTENARIO DE LA REDENCIÓN
Debajo de la placa se halla por su parte un calendario perpetuo el cual consta de un círculo en el que figuran el día, el mes y el año así como los festivos movibles. La información es mostrada de forma concéntrica desde el año solar indicado en el anillo central del círculo hasta los meses y series numéricas correspondientes a los días, reflejándose a su vez las fiestas de carácter religioso, las cuales aparecen señaladas en el anillo exterior. La fecha está indicada por la punta de una flecha sostenida por la estatua de un ángel emplazada a la izquierda del círculo, poniéndose el dispositivo en marcha a las 00:00 horas.[10]
Mantenimiento y reformas
El coste del mantenimiento del reloj ha sido siempre muy elevado, no teniendo como objetivo las distintas restauraciones conservar su originalidad sino aumentar su espectacularidad. Con el paso del tiempo los sistemas mecánicos para producir el rugido del león y el canto del gallo fueron reemplazados por pistas de audio las cuales producen un sonido más realista. Otra importante modificación realizada afecta al orden de funcionamiento: tanto en el proyecto original de Ungerer como en la filmación del Instituto Luce[11] con ocasión de la inauguración el reloj sigue un orden ascendente mientras que en la actualidad es primero descendente y luego ascendente (en la grabación se puede apreciar además el anterior sistema de sonido y el hecho de que los autómatas de Dina y Clarenza giraban la parte superior de sus torsos de forma más pronunciada). A su vez, fue en época reciente cuando se incluyó la pieza de Schubert; para que los efectos de sonido no solapasen la música se dispuso que los animales realizaran sus movimientos en primer lugar, poniéndose en marcha inmediatamente después los demás mecanismos.
Legado
El reloj astronómico de Mesina se erige como una de las expresiones más altas e intrincadas de la mecánica, siendo a su vez una manifestación refinada de sofisticados conocimientos de física y astronomía. Actualmente, además de constituir una de las atracciones turísticas más importantes de Mesina,[5] ostenta el honor de ser el reloj astronómico más grande del mundo y uno de los más complejos junto con el de Praga.[12]
Galería de imágenes (diagramas de Théodore Ungerer)
-
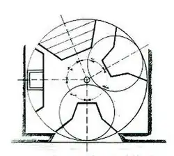
Diagrama de la torre. -
Diagrama donde se muestra la relación entre las partes del mecanismo. -
Diagrama en el que se aprecia la secuencia de activación de las partes del mecanismo. -
Diagrama donde se muestran los ratios de los engranajes del calendario planetario. -
Diagrama del movimiento de la paloma en el diorama del Santuario de la Madona de Montalto. -
Diagrama en el que se aprecia el carrusel de las escenas del Nuevo Testamento.
Referencias
- ↑ a b c d e f g h i j Campanelli, Federica (noviembre de 2015). «L’OROLOGIO ASTRONOMICO DI MESSINA: UNA STORIA “IN MOVIMENTO” - PARTE I». InStoria (95).
- ↑ Bascones, Antonio (mayo de 2018). «Mesina. La tercera ciudad más grande de Sicilia y que delimita el estrecho de Mesina, unida indefectiblemente a la batalla de Lepanto». El Dentista del siglo XXI (89). ISSN 1889-688X.
- ↑ «Il grande spettacolo dell’orologio astronomico di Messina». magazine.leviedeitesori.com. 13 de enero de 2023.
- ↑ a b Roberto Cassaro, Vincenzo (24 de noviembre de 2019). «L’OROLOGIO ASTRONOMICO DI MESSINA, IL PIÙ GRANDE E COMPLESSO AL MONDO». ilSicilia.
- ↑ a b «OROLOGIO ASTRONOMICO DI MESSINA». scoprilo.net. 11 de agosto de 2021.
- ↑ «Landmark». visitme.comune.messina.it.
- ↑ Caruso, Enzo. «L'orologio astronomico del Duomo». mutualpass.it.
- ↑ a b c d e «Il Gallo del campanile del Duomo di Messina». summagallicana.it.
- ↑ a b c d e f g h «Campanile del Duomo di Messina». messinarte.it.
- ↑ a b c d e f g h i j Campanelli, Federica (enero de 2016). «L’OROLOGIO ASTRONOMICO DI MESSINA: UNA STORIA “IN MOVIMENTO” - PARTE II». InStoria (97).
- ↑ Messina. Il campanile del Duomo oltre possedere l'orologio più grande del mondo offre un interessante spettacolo (YouTube). 15 de junio de 2012.
- ↑ «Orologio Astronomico Duomo». operabnb.com. 16 de septiembre de 2020.
Enlaces externos
Wikimedia Commons alberga una categoría multimedia sobre reloj astronómico de Mesina.
