Terumah (parashah)

Terumah, Terumoh, Terimuh, o Trumah (תְּרוּמָה para «regalo» u «ofrenda», la duodécima palabra y la primera palabra distintiva en la parashá) es la decimonovena porción semanal de la Torá (פָּרָשָׁה, parashá) en el ciclo anual judío de lectura de la Torá y la séptima en el Libro del Éxodo. La parashá habla de las instrucciones de Dios para hacer el Tabernáculo y sus muebles. La parashá constituye Éxodo 25:1-27:19. Está compuesto por 4692 letras hebreas, 1145 palabras hebreas, 96 versículos y 155 líneas en un rollo de la Torá (Sefer Torah).[1] Los judíos de la Diáspora lo leen el decimonoveno Sabbath después de Simjat Torá, generalmente en febrero y rara vez a principios de marzo.[2]
Lecturas
En la lectura tradicional de la Torá del sábado, la parashá se divide en siete lecturas, o עליות, aliyot[3]

Primera lectura: Éxodo 25:1-16
En la primera lectura, Dios ordenó a Moisés que dijera a todos los israelitas cuyo corazón se conmoviera que trajeran ofrendas de oro, plata, cobre, hilos de colores, lino fino, pelo de cabra, pieles curtidas de carnero, madera de acacia, aceite, especias, lapislázuli y otras piedras preciosas para hacer un santuario, el Tabernáculo (Mishkan, מִּשְׁכָּן), y su mobiliario, para que Dios pudiera morar entre ellos.[4] Dios les ordenó que hicieran el Arca de la Alianza de madera de acacia recubierta de oro en la que depositar las tablas que exponían los mandamientos de Dios.[5]
Segunda lectura: Éxodo 25:17-30
En la segunda lectura, Dios les dijo que hicieran dos querubines de oro para que cubrieran el arca sobre el propiciatorio.[6] Dios prometió impartir mandamientos a Moisés desde entre los dos querubines sobre la cubierta del Arca.[7] Dios les ordenó que hicieran una mesa de madera de acacia recubierta de oro, sobre la cual colocar el pan de la exhibición o pan de la proposición.[8]

Tercera lectura: Éxodo 25:31-26:14
En la tercera lectura, Dios les ordenó que hicieran un candelabro de seis brazos y siete lámparas —Menorá— de oro puro.[9] Dios les ordenó que hicieran el Tabernáculo con diez cortinas de fino lino retorcido, de hilos azules, púrpura y carmesí, con un diseño de querubines entretejidos.[10] Dios les ordenó que hicieran 11 telas de pelo de cabra para una tienda sobre el Tabernáculo,[11] y cubiertas de pieles de carnero curtidas y pieles de tachash (תְּחָשִׁים).[12]
Cuarta lectura: Éxodo 26:15-30
En la cuarta lectura, Dios les ordenó que hicieran tablas de madera de acacia y las recubrieran de oro para el Tabernáculo.[13]
Quinta lectura: Éxodo 26:31-37
En la quinta lectura, Dios les ordenó que hicieran una cortina de hilos azules, púrpura y carmesí, y lino fino retorcido, con un diseño de querubines, para que sirviera de tabique que ocultara el Santo de los Santos.[14] Dios les ordenó que colocaran el Arca, la mesa y el candelabro en el Tabernáculo.[15] Dios les ordenó que hicieran una pantalla para la entrada de la tienda, con hilos de colores y fino lino retorcido, bordada y sostenida por cinco postes de madera de acacia recubiertos de oro.[16]
En Éxodo 26:31, Dios instruyó a Moisés: «Y harás una cortina [de brocado] de [hilos de lana] azules, púrpura y carmesí, y lino fino retorcido de obra maestra, con querubines». Los sabios de Israel transmitieron una tradición oral de que el sentido aquí es el trabajo de un artesano experto en motivos y tejido directamente en la tela desde el telar, en lugar de bordado.[17]
Sexta lectura: Éxodo 27:1-8
En la sexta lectura, Dios les ordenó que hicieran el altar de madera de acacia recubierta de cobre. ref>27:1–2.
Séptima lectura: Éxodo 27:9–19
En la séptima lectura, Dios les ordenó que hicieran el recinto del Tabernáculo con lino fino retorcido.[18]
Lecturas según el ciclo trienal
Los judíos que leen la Torá según el ciclo trienal de lectura de la Torá leen la parashá según el siguiente calendario:[19]
| Año 1 | Año 2 | Año 3 | |
|---|---|---|---|
| 2023, 2026, 2029 . . . | 2024, 2027, 2030 . . . | 2025, 2028, 2031 . . . | |
| Lecturas | 25:1–40 | 26:1–30 | 26:31–27:19 |
| 1 | 25:1–5 | 26:1–3 | 26:31–33 |
| 2 | 25:6–9 | 26:4–6 | 26:34–37 |
| 3 | 25:10–16 | 26:7–11 | 27:1–3 |
| 4 | 25:17–22 | 26:12–14 | 27:4–8 |
| 5 | 25:23–30 | 26:15–21 | 27:9–12 |
| 6 | 25:31–33 | 26:22–25 | 27:13–16 |
| 7 | 25:34–40 | 26:26–30 | 27:17–19 |
| Maftir | 25:37–40 | 26:26–30 | 27:17–19 |
Interpretación bíblica interna
La parashá tiene paralelismos o se discute en estas fuentes bíblicas:[20]
Este es el patrón de instrucción y construcción del Tabernáculo y su mobiliario:

La historia sacerdotal del Tabernáculo en Éxodo 25-27 se hace eco de la historia sacerdotal de la creación en el Génesis 1:1-2:3.[21] A medida que la historia de la creación se desarrolla en siete días,[22] las instrucciones sobre el Tabernáculo se desarrollan en siete discursos.[23] Tanto en el relato de la creación como en el del Tabernáculo, el texto señala la finalización de la tarea.[24] Tanto en la creación como en el Tabernáculo, se ve que el trabajo realizado es bueno.[25] Tanto en la creación como en el Tabernáculo, cuando el trabajo está terminado, Dios toma una acción en reconocimiento.[26] Tanto en la creación como en el Tabernáculo, cuando se termina la obra, se invoca una bendición.[27] Y tanto en la creación como en el Tabernáculo, Dios declara algo «santo».[28] Jeffrey Tigay señaló[29] que el candelabro tenía siete velas,[30] Aarón vestía siete vestiduras sacras,[31] el relato de la construcción del Tabernáculo alude al relato de la creación,[32] y el Tabernáculo se completó el día de Año Nuevo.[33] Y Carol Meyers señaló que Éxodo 25:1–9 y 35:4–29 enumeran siete tipos de sustancias —metales, hilo, pieles, madera, aceite, especias y piedras preciosas— que representan la totalidad de los suministros.[34] Martin Buber y otros señalaron que el lenguaje utilizado para describir la construcción del Tabernáculo es similar al utilizado en la historia de la creación:[35]
| Versículos del Génesis | Textos | Palabras en común | Versículos en Éxodo | Textos |
|---|---|---|---|---|
| 1:7, 16, 25 | 7Y Dios hizo (וַיַּעַשׂ) el firmamento, y dividió las aguas que estaban debajo del firmamento de las aguas que estaban encima del firmamento; y así fue. ... 16 Y Dios «hizo (וַיַּעַשׂ) las dos grandes lumbreras: la lumbrera mayor para que dominara el día, y la lumbrera menor para que dominara la noche; y las estrellas. ... 25 Y Dios «hizo» (וַיַּעַשׂ) los animales de la tierra según su especie, y el ganado según su especie, y todo lo que se arrastra sobre la tierra según su especie; y Dios vio que era bueno. | Hecho
Hacer וַיַּעַשׂ וְעָשׂוּ וְעָשִׂיתָ |
25:8, 10, 23, 31] | 8Y que Me hagan (וְעָשׂוּ) un santuario, para que Yo pueda habitar entre ellos. . . . 10Y «harán» (וְעָשׂוּ) un arca de madera de acacia: dos codos y medio de largo, un codo y medio de ancho y un codo y medio de alto. . . . 23 Y harás (וְעָשִׂיתָ) una mesa de madera de acacia: dos codos será su longitud, un codo su anchura y un codo y medio su altura. ... 31 Y harás (וְעָשִׂיתָ) una menorá de oro puro: la menorá será de martillado, incluso su base y su asta; sus copas, sus nudos y sus flores serán de una sola pieza con ella. |
| 2:1–2 | 1Y el cielo y la tierra fueron acabados וַיְכֻלּוּ), y todo el ejército de ellos. 2 Y en el séptimo día Dios acabó (en hebreo: וַיְכַל) la obra que había hecho; y reposó en el séptimo día de toda la obra que había hecho. | acabado
וַיְכֻלּוּ וַיְכַל וַתֵּכֶל |
39:32; 40:33 | 32Así se «terminó» (וַתֵּכֶל) toda la obra del Tabernáculo de la tienda de reunión; y los hijos de Israel hicieron conforme a todo lo que el Señor mandó a Moisés, así lo hicieron. ... 33 Y erigió el atrio alrededor del tabernáculo y del altar, y colocó el biombo de la puerta del atrio. Así que Moisés «terminó» (וַיְכַל) la obra. |
| 1:31 | 31Y Dios «vio» (וַיַּרְא) todo lo que había hecho, y «he aquí» (וְהִנֵּה), que era muy bueno. Y fue la tarde y fue la mañana del sexto día. | «Vio... he aquí»
וַיַּרְא . . . וְהִנֵּה |
39:43 | 43Y Moisés «vio» (וַיַּרְא) toda la obra, y «contempló» (וְהִנֵּה), que la habían hecho; como el Señor había mandado, así la habían hecho. Y Moisés los bendijo. |
| 2:3 | 3Y Dios bendijo (וַיְבָרֶךְ) el séptimo día, y lo santificó; porque en él descansó de toda su obra que Dios había hecho al crear. | bendecido
וַיְבָרֶךְ |
39:43 | 43Y Moisés vio toda la obra, y he aquí que la habían hecho; como el Señor había mandado, así la habían hecho. Y Moisés los bendijo (וַיְבָרֶךְ) |
.jpg)
El Tabernáculo también presentaba similitudes con el Monte Sinaí. Tanto el Monte Sinaí como el Tabernáculo tenían tres áreas separadas con niveles crecientes de exclusividad: una para el pueblo en general, otra para la clase ungida y otra solo para el representante único del pueblo;[36] las tablas de la ley[37] una nube;[38] y la presencia de Dios.[39] Y Dios habló con Moisés tanto en el monte Sinaí como en el Tabernáculo.[40] Pero a diferencia del Monte Sinaí, con el Tabernáculo la presencia de Dios era constante; la presencia de Dios estaba en medio de ellos, ya no distante; y la presencia de Dios ya no estaba arraigada en un lugar fijo[41]
La petición de Dios de dones «voluntarios» en Éxodo 25:2 se repite en los relatos de dones dados «voluntariamente» en 1 Crónicas 29:9 en la época de David y en Esdras 2:68 para el Segundo Templo.
En la interpretación no rabínica temprana
La parashá se discute en estas fuentes no rabínicas tempranas.[42]
Flavio Josefo interpretó el Tabernáculo y su mobiliario como una representación del universo. Vio las dos partes del Tabernáculo accesibles a los sacerdotes (el Santo y el Patio) para denotar la tierra y el mar, la tercera división reservada para Dios (el Lugar Santísimo) para representar el cielo, inaccesible para las personas. Vio los 12 panes para denotar el año dividido en meses. Vio la Menorá dividida en 70 partes, que representan las 70 divisiones de los planetas, y las siete lámparas de la Menorá para referirse al curso de los siete planetas (entonces conocidos). Vio los velos, compuestos de cuatro cosas, para declarar los cuatro elementos: el lino fino significaba la tierra, porque el lino crece de la tierra; la púrpura significaba el mar, porque la púrpura se tiñe con la sangre de los crustáceos del mar; el azul significaba el aire; y el escarlata significaba el fuego.[43]
Filón enseñó que los dos querubines de Éxodo 25:18-22 representaban los dos poderes principales de Dios: (1) el poder benéfico de Dios, en virtud del cual Dios creó el mundo, y en virtud del cual Dios es llamado «Dios», y (2) el poder castigador de Dios, en virtud del cual Dios gobierna y rige lo que Dios ha creado, y en virtud del cual Dios es llamado «Señor». Filo leyó Éxodo 25:22 para enseñar que los dos poderes de Dios estaban divididos en el medio por Dios, que estaba por encima de ambos. Y Éxodo 25:22 informa que Dios hablaría a los israelitas desde entre los dos querubines para mostrar que los dos poderes son iguales, los poderes benéficos y castigadores de Dios están divididos por la misma Palabra.[44]
En la interpretación rabínica clásica
La parashá se discute en estas fuentes rabínicas de la época de la Mishná y el Talmud:[45]

Éxodo, capítulo 25
Un Midrash leyó Éxodo 25:2 para decir «que me tomen como ofrenda» y así contar cómo Dios dio la Torá a Israel y les dijo: «Me están tomando».[46]
Al leer las palabras de Dios en Éxodo 25:2, «aceptad regalos para mí de cada persona cuyo corazón así lo mueva», la Mekhilta de-Rabbi Shimon dedujo que todos y cada uno de los israelitas eran tan ricos por haber despojado a los egipcios (como se relata en Éxodo 12:36) que cada israelita tenía los medios para erigir la Tienda de la Reunión, con todos sus utensilios, todos sus ganchos de oro, tablas, barras de madera, columnas y pedestales.[47]
Un Midrash enseñó que Éxodo 25:3 pide ofrendas de oro, plata y bronce para la construcción del Tabernáculo, porque el oro simboliza Babilonia, de la cual Daniel 2:32 dice: «En cuanto a esa imagen, su cabeza era de oro fino»; la plata simboliza los medos, de los cuales Daniel 2:32 dice: «Su pecho y sus brazos eran de plata»; y el latón se refiere a Grecia, de la que Daniel 2:32 dice: «Su vientre y sus muslos eran de bronce». Pero la Biblia no menciona el hierro en la construcción ni del Tabernáculo ni del Templo de Jerusalén, porque el hierro simboliza Roma, que destruyó el Templo.[48]
Los rabinos enseñaron en una Baraita que la lana turquesa (techeilet, תְכֵלֶת) que aparece en Éxodo 25:4 procedía de un animal llamado chilazon que se parecía al mar en color y a un pez en forma, que aparecía una vez cada 70 años, y cuya sangre se utilizaba para teñir el costoso hilo azul.[49]
Pero, ¿con qué tela se teñía el azul de Éxodo 25:4? La escuela del rabino Ishmael enseñaba que todas las prendas no especificadas mencionadas en la Torá son de lana o lino.[50]

El rabino Elai dijo en nombre del rabino Simeón ben Lakish (Resh Lakish) que Rabí Meir solía sostener que los תְּחָשִׁים, techashim (a veces traducido como «pieles de foca» o «pieles de delfín») que figuran en Éxodo 25:5 procedían de un animal llamado tachash que vivía en la época de Moisés. Era una especie aparte, y los sabios no podían decidir si era una bestia salvaje o un animal doméstico. Tenía un cuerno en la frente, y vino a Moisés providencialmente justo para la ocasión. Moisés hizo la cubierta del Tabernáculo, y luego el tachash desapareció.[51] La Guemará enseñaba que el «tachash» era multicolor.[52]
La Tosefta dedujo de Éxodo 25:5 (y del principio de que la ley prohíbe hacer en el Sabbath todo lo que se hizo para construir el Tabernáculo) que quien curte pieles en el Sabbath viola el mandamiento de guardar el Sabbath[53]
La Tosefta enseñaba que la invalidez de las piedras de ónix o de las piedras para engastar descritas en Éxodo 25:7 invalidaba a las otras.[54]
La Tosefta enseñó que Éxodo 25:8 proporcionaba el mandamiento que Éxodo 39:43 decía que Moisés cumplió.[55]
Un Midrash explicó con una parábola la instrucción de Dios de construir un Tabernáculo. Un rey tenía una sola hija, que se casó con otro rey. Cuando el rey yerno quiso regresar a su país y llevarse a su esposa con él, el rey padre le dijo que no podía separarse de su hija ni decirle a su esposo que no se la llevara, ya que ahora era su esposa. El rey padre pidió al rey yerno que, dondequiera que el rey yerno fuera a vivir, tuviera una cámara preparada para que el rey padre morara con ellos, porque no podía soportar dejar a su hija. Así, Dios dijo a Israel que Dios le había dado una Torá de la que Dios no podía separarse, y sin embargo, Dios tampoco podía decirle a Israel que no se llevara la Torá. Así pues, Dios pidió a los israelitas que le hicieran una casa en la que pudiera morar dondequiera que fueran los israelitas, y así dice Éxodo 25:8: «Y háganme un santuario, para que yo more en medio de ellos».[56]
El rabino Eleazar ben Azariah enseñó que las palabras de Éxodo 25:8, «Y que me hagan un santuario, para que yo more en medio de ellos», demuestran que tan grande es el trabajo que la Presencia de Dios no moró entre los israelitas hasta que no hubieron realizado el trabajo de hacer el santuario.[57]
La Mekhilta del rabino Ishmael preguntó por qué en Éxodo 25:8 Dios ordenó: «Hagan un santuario para que yo pueda habitar entre ellos», cuando en Isaías 66:1, Dios dijo: «El cielo es mi trono y la tierra el estrado de mis pies; ¿dónde está la casa que me van a construir?». La Mekhilta del rabino Ishmael enseñaba que el propósito del mandamiento era simplemente permitir a los israelitas recibir una recompensa por cumplirlo.[58]
El Talmud babilónico relata una historia sobre el deseo de Dios por el Tabernáculo. El rabino Yehudah Hanasí hizo arreglos para que su hijo se casara con una hija de la familia del rabino Yosei ben Zimra. Los dos rabinos acordaron que apoyarían al novio durante doce años para que fuera a estudiar a la sala de estudio. Se suponía que primero iría a estudiar y luego se casaría. Pero cuando el novio vio a la futura novia, pidió que acortaran el retraso a solo seis años. Cuando la volvió a ver, dijo que quería casarse con ella inmediatamente y luego ir a estudiar. Entonces tuvo vergüenza de ver a su padre, ya que pensó que el rabino Judah lo reprendería por su impaciencia. Su padre lo aplacó y le dijo que tenía la percepción de su Creador, lo que significa que actuaba de la misma manera que Dios. Porque inicialmente, las palabras de Éxodo 15:17, «Tú los traes y los plantas en el monte de Tu herencia, el lugar que Tú, oh Señor, has hecho para que habites en él», indicaban que la intención original de Dios era construir un Templo para el pueblo judío después de que hubieran entrado en la Tierra de Israel. Pero luego, en Éxodo 25:8, Dios ordenó: «Y que me hagan un santuario, para que yo pueda habitar entre ellos», es decir, incluso mientras aún estaban en el desierto, lo que indica que debido a su cercanía a Dios, los israelitas disfrutaban de un mayor afecto de Dios y, por lo tanto, Dios adelantó lo que originalmente habría llegado más tarde.[59]
Abba Ḥanan, en nombre del rabino Elazar, señaló que Deuteronomio 10:1 dice: «Y hazte un arca de madera», indicando que debe ser de tu propia propiedad, mientras que Éxodo 25:10 dice: «Y harán un arca de madera de acacia», es decir, del pueblo judío. La Guemará resolvió esta aparente contradicción enseñando que Éxodo 25:10 se refiere a una época en la que el pueblo judío hacía la voluntad de Dios, y se les atribuye la construcción del Arca de la Alianza. Sin embargo, Deuteronomio 10:1 se refiere a una época en la que el pueblo judío no hacía la voluntad de Dios, y la construcción del Arca se atribuye únicamente a Moisés. Así, cuando Israel actúa de acuerdo con la Torá, se les considera creadores del Arca, pero cuando no lo hacen, el Arca se ve como producto únicamente de Moisés.[60]

Un Midrash enseñaba que todo lo que Dios creó en el cielo tiene una réplica en la tierra. Y el Midrash enseñaba que muchas cosas en el Tabernáculo reflejaban cosas en el cielo. Así, Isaías 37:16 informa que hay querubines en el cielo, diciendo: «Oh Señor de los ejércitos, Dios de Israel, que te sientas entre los querubines». Mientras que en la tierra, Éxodo 25:18-20 ordena a los israelitas que fabriquen dos querubines de oro para que extiendan sus alas y cubran el Arca. Del cielo, el Salmo 104:2 relata que Dios «extiende los cielos como una cortina». Mientras que de la tierra, Éxodo 26:1 ordena a los israelitas que creen «diez cortinas» para el Tabernáculo. Del cielo, Isaías 6:2 informa: «Sobre [Dios] estaban los serafines». Mientras que en la tierra, Éxodo 26:15 ordena a los israelitas que «hagan las tablas para el Tabernáculo de madera de acacia, de pie». (Así, las tablas de madera de acacia de pie corresponden a los serafines de pie). Del cielo, Génesis 1:6 relata el mandato de Dios: «Haya un firmamento en medio de las aguas, y separe las aguas de las aguas». Mientras están en la tierra, Éxodo 26:33 ordena a los israelitas que «el velo separe el lugar santo del santísimo». Del cielo, Daniel 2:22 informa: «Y la luz mora con [Dios]». Mientras que en la tierra, Éxodo 27:20 ordena: «Que te traigan aceite de oliva puro batido para la luz». (Así, puesto que todo lo que está arriba también está abajo, Dios mora en la tierra al igual que Dios mora en el cielo). Y lo que es más, el Midrash enseñó que Dios tiene más cariño por las cosas de la tierra que por las de arriba, porque como relata Éxodo 25:8, Dios dejó las cosas del cielo para descender a morar entre los de abajo, diciendo: «Y que me hagan un santuario, para que yo pueda morar entre ellos».[61] La Mekhilta del rabino Ishmael enseñaba que Éxodo 35:1-3 establece leyes de observancia del sábado cuando lo hace porque en Éxodo 25:8 Dios ordenó: «Y que me hagan un santuario», y uno podría haber entendido que podían construir el santuario tanto en días laborables como en sábado. La Mekhilta del rabino Ishmael enseñaba que la instrucción de Dios en Éxodo 25:8 de «hacerme un santuario» se aplicaba a todos los días excepto el sábado. La Mekhilta del rabino Ishmael postulaba que se podría argumentar que, dado que el servicio del Templo se celebra incluso en sábado, tal vez la preparación para el servicio, sin la cual los sacerdotes no podrían realizarlo, podría tener lugar incluso en sábado. Se podría concluir que si el cuerno del altar se rompiera o un cuchillo se estropeara, se podrían reparar en sábado. Sin embargo, Éxodo 35:1-3 enseña que incluso ese tipo de trabajo debe realizarse solo entre semana, y no en sábado.[62]

El rabino Simeón, hijo del rabino Ismael, interpretó el término «el Tabernáculo del testimonio» en Éxodo 38:21 en el sentido de que el Tabernáculo era el testimonio de Dios para todo el mundo de que Dios había perdonado a Israel por haber hecho el Becerro de oro. El rabino Isaac lo explicó con una parábola. Un rey tomó por esposa a una mujer a la que amaba profundamente. Se enfadó con ella y la dejó, y sus vecinos se burlaron de ella, diciendo que él no volvería. Entonces el rey le envió un mensaje pidiéndole que preparara el palacio del rey y que hiciera las camas en él, porque volvería a ella tal y tal día. Ese día, el rey regresó con ella y se reconcilió con ella, entrando en su cámara y comiendo y bebiendo con ella. Sus vecinos al principio no se lo creyeron, pero cuando olieron las fragantes especias, supieron que el rey había regresado. De manera similar, Dios amó a Israel, llevando a los israelitas al monte Sinaí y dándoles la Torá, pero después de solo 40 días, pecaron con el Becerro de Oro. Las naciones paganas dijeron entonces que Dios no se reconciliaría con los israelitas. Pero cuando Moisés suplicó misericordia en su nombre, Dios los perdonó, como se relata en Números 14:20: «Y el Señor dijo: 'He perdonado según vuestra palabra'». Moisés le dijo entonces a Dios que, aunque personalmente estaba bastante satisfecho de que Dios hubiera perdonado a Israel, le pedía que anunciara ese hecho a las naciones. Dios respondió que haría que su Shejiná morara en medio de ellos, y así dice Éxodo 25:8: «Y que me hagan un santuario, para que yo more en medio de ellos». Y con esa señal, Dios pretendía que todas las naciones supieran que Dios había perdonado a los israelitas. Y así, Éxodo 38:21 lo llama «el Tabernáculo del testimonio», porque el Tabernáculo era un testimonio de que Dios había perdonado los pecados de los israelitas.[63]

Un Midrash cuenta que cuando Dios le dijo a Moisés que hiciera un tabernáculo para Dios (en Éxodo 25:8), Moisés se preguntó cómo Dios podía ordenarle a Moisés que hiciera un tabernáculo para Dios, si la gloria de Dios llena el cielo y la tierra. Y Moisés vio proféticamente que Salomón construiría un día un templo, mucho más grande que el tabernáculo, y sin embargo (en 1 Reyes 8:27) Salomón le diría a Dios: «Pero, ¿acaso Dios habitará en verdad sobre la tierra? He aquí, el cielo y los cielos de los cielos no pueden contenerte; ¡cuánto menos esta casa que he construido!». Dios respondió que Dios no piensa como piensan los humanos. Veinte tablas al norte, veinte al sur y ocho al oeste pueden ser suficientes. Dios podría incluso confinar su Shejiná dentro de un cuadrado codo.[64]
El rabino Assi de Hozna'ah dedujo de las palabras «Y sucedió en el primer mes del segundo año, el primer día del mes», en Éxodo 40:17, que el Tabernáculo se erigió el primero de Nisán. Con referencia a esto, un Tanna enseñó que el primero de Nisán tomó diez coronas de distinción en virtud de los diez acontecimientos trascendentales que ocurrieron ese día. [ref] Talmud babilónico Shabat 87b. El primero de Nisán fue: (1) el primer día de la Creación,[65] (2) el primer día de las ofrendas de los príncipes,[66] (3) el primer día para que el sacerdocio haga las ofrendas de sacrificio,[67] (4) el primer día para el sacrificio público, (5) el primer día para el descenso del fuego del cielo,[68] (6) el primero para que los sacerdotes coman alimentos sagrados en el área sagrada, (7) el primero para la morada de la Shejiná en Israel,[69] (8) el primero para la Bendición de Aarón de Israel,[70] (9) el primero para la prohibición de los lugares altos,[71] y (10) el primero de los meses del año.[72]
Una Baraita comparó además el día en que los israelitas dedicaron el Tabernáculo con el día en que Dios creó el universo. Leyendo las palabras de Levítico 9:1, «Y sucedió que al octavo día», la Baraita enseñó que en ese día (cuando los israelitas dedicaron el Tabernáculo) hubo alegría ante Dios como en el día en que Dios creó el cielo y la tierra. Porque Levítico 9:1 dice: «Y sucedió (וַיְהִי, va-yehi) en el octavo día», y Génesis 1:5 dice: «Y hubo (וַיְהִי, va-yehi) un día».[73] Y Rav Judah enseñó en nombre de Rav que Dios dotó al artesano del Tabernáculo, Bezalel, con el mismo atributo que Dios utilizó al crear el universo. Rav Judah dijo en nombre de Rav que Bezalel sabía cómo combinar las letras con las que Dios creó los cielos y la tierra. Porque Éxodo 35:31 dice (sobre Bezalel): «Y Él lo ha llenado del espíritu de Dios, en sabiduría y en entendimiento, y en conocimiento», y Proverbios 3:19 dice (sobre la creación): «El Señor fundó la tierra con sabiduría; con entendimiento estableció los cielos», y Proverbios 3:20 dice: «Con su conocimiento se rompieron las profundidades».[74]
La Guemará dedujo de Éxodo 25:8, «Y que me hagan un santuario, para que yo more entre ellos», que el Tabernáculo se llamaba «Santuario». Y la Guemará dedujo que el Santuario (es decir, el Templo de Jerusalén) se llamaba «Tabernáculo» por Levítico 26:11, «Y pondré mi Tabernáculo entre vosotros» (ya que esto se dijo después de que los israelitas ya hubieran erigido el Tabernáculo en el desierto). Así, la Guemará concluyó que las Escrituras llaman al Tabernáculo «Santuario» y al Santuario (es decir, el Templo) «Tabernáculo», y por lo tanto se pueden establecer analogías entre ambos.[75]
Leyendo Éxodo 25:9, «Según todo lo que te muestro, el patrón del Tabernáculo... así lo harás», Rav Shimi bar Hiyya dedujo que así como el Tabernáculo requería el consentimiento de Moisés, las adiciones al Templo o a la Ciudad de Jerusalén requerían el consentimiento del Sanedrín (el heredero de la autoridad de Moisés). (La frase «así lo haréis» es superflua, porque Éxodo 25:8 ya decía: «Que me hagan un santuario». Así que Rav Shimi interpretó la frase superflua en el sentido de que todo lo que se hizo para el Tabernáculo en el desierto también debería hacerse para cualquier futuro Templo o ciudad del Templo).[76]
Al interpretar las palabras «Y ellos harán un Arca», en Éxodo 25:10, el rabino Judá ben Rabí Shalom enseñó que Dios dijo que todos debían venir y ocuparse del Arca para que todos pudieran merecer la Torá. El rabino Simeón enseñó que hay tres coronas: la corona de la Torá, la corona del sacerdocio y la corona de la realeza; pero la corona de un buen nombre las supera a todas.[77] La mesa es la corona de la realeza, de la que se dice en Éxodo 25:24: «Y hazle una corona de oro alrededor». El altar es la corona del sacerdocio, de la que se dice en Éxodo 30:3: «Y le harás una corona de oro alrededor». Y el Arca es la corona de la Torá, de la que se dice en Éxodo 25:11: «Y le harás una corona de oro alrededor». La palabra para «corona» («zer», זֵר) también puede leerse como «zar» (extraño), para enseñar que si una persona tiene méritos, se convierte en una corona, pero si una persona no tiene méritos, entonces se vuelve ajena a esa persona. De los demás muebles, la Escritura dice: «Y tú harás», mientras que del Arca, Éxodo 25:10 dice: «Y ellos harán», para enseñar que la corona de la Torá está por encima de todo; cuando una persona adquiere la Torá, es como si esa persona hubiera adquirido todo lo demás.[78]

Una vez, cuando el rabino Hanina fue al campo, algunos aldeanos notaron una aparente contradicción entre dos versículos. 1 Reyes 6:2 dice: «Y la casa que el rey Salomón edificó para el Señor, tenía sesenta codos de largo, veinte de ancho y treinta de alto». Y 1 Reyes 6:20 dice: «Y delante del Santuario, que tenía veinte codos de largo, veinte de ancho y veinte de alto». El rabino Hanina respondió que 1 Reyes 6:20 da cuenta del espacio desde el borde de los querubines hacia arriba. La Guemará dedujo que 1 Reyes 6:20 enseña así que los 10 codos de espacio de abajo (desde el suelo hasta la parte superior de los querubines) eran como los 20 codos de espacio de arriba (los querubines) en el sentido de que ninguno de los dos espacios tenía un propósito material. (Ambos espacios carecían de estructura). Esto apoya al rabino Levi (u otros dicen rabino Johanan), quien dijo que es una tradición transmitida por nuestros padres que el lugar del Arca y los Querubines no está incluido en el espacio medido (y milagrosamente no ocupaban nada del espacio del Santuario). Así, también, se enseñó en una Baraita que el Arca que Moisés hizo tenía un espacio libre de 10 codos en cada lado (y milagrosamente no ocupaba nada del espacio del Lugar Santísimo en el Tabernáculo). Ravina dijo en nombre de Samuel que los querubines hechos por Salomón se mantuvieron en pie por un milagro (y no ocuparon espacio), porque 1 Reyes 6:24 dice: «Y cinco codos tenía una ala del querubín, y cinco codos la otra ala del querubín; desde la punta de una ala hasta la punta de la otra había diez codos». (Los dos querubines habrían llenado así los 20 codos enteros del Santuario). Como el Santuario no dejaba espacio para que sus cuerpos se mantuvieran en pie, la Guemará dedujo que se mantenían en pie por un milagro. Abaye objetó que podrían haberse mantenido en pie con sus cuerpos bajo sus alas como gallinas (cuyas alas se tocan entre sí en sus espaldas, dejando sus cuerpos enteros cubiertos por sus alas). Rava objetó que tal vez no estaban uno frente al otro (y por lo tanto sus alas se superponían). Rav Aha bar Jacob objetó que podrían haber estado en diagonal. Rav Huna, hijo de Rav Josué objetó que la casa podría haber sido más ancha arriba que abajo. Rav Papa objetó que sus alas podrían haber estado dobladas. Rav Ashi objetó que sus alas podrían haberse superpuesto entre sí.[79]

Observando que Éxodo 25:11 dice: «Lo recubrirás de oro puro, por dentro y por fuera», Rava interpretó que cualquier erudito cuyo interior no sea como el exterior no es un erudito. (Un erudito, por tanto, debe tener el mismo carácter dorado por dentro y por fuera).[80]
La Mishná describía cómo en Yom Kipur el Sumo Sacerdote (כֹּהֵן גָּדוֹל, Kohen Gadol) colocaba una bandeja de fuego entre las dos barras del Arca de la Alianza descrita en Éxodo 25:12.[81]
.jpg)
El rabino Abbahu enseñó que un querubín (como en Éxodo 25:18) tenía rostro de niño (keravya), pues en Babilonia llamaban a un niño ravya. Rav Papa preguntó a Abaye que si esto es así, entonces hay una dificultad para interpretar el Libro de Ezequiel 10:14, que dice de la visión de Ezequiel: «el primer rostro era el rostro del querubín, el segundo era el rostro de un hombre, el tercero el rostro de un león y el cuarto el rostro de un águila». ¿No serían iguales el rostro del querubín y el rostro de un hombre? La Guemará respondió que uno era un rostro grande y el otro un rostro pequeño.[82]

El rabino Johanan y el rabino Eleazar discrepaban sobre la posición de los querubines. Uno decía que estaban uno frente al otro, y el otro que estaban orientados hacia adentro (hacia la puerta). La Guemará preguntó cómo se podía conciliar la opinión de que estaban uno frente al otro con 2 Crónicas 3:13, que dice: «Y sus rostros estaban hacia adentro». El Guemará explicó que se enfrentaban (en señal de afecto, simbolizando la relación entre Dios y el pueblo) cuando Israel obedecía la voluntad de Dios; se enfrentaban hacia adentro (alejados el uno del otro, simbolizando el amor no correspondido de Dios por Israel) cuando Israel no obedecía la voluntad de Dios. La Guemará preguntó cómo se podía conciliar la visión de que estaban orientados hacia dentro con Éxodo 25:20, que dice: «Con sus rostros uno frente al otro». La Guemará explicó que estaban ligeramente girados hacia los lados (en parte uno frente al otro y en parte hacia dentro). Como se enseñó en una Baraita, Onkelos el prosélito dijo que los Querubines tenían forma de niños (como algunos leen 2 Crónicas 3:10) y sus rostros estaban vueltos hacia los lados, como los de un estudiante que se despide de su maestro (girando hacia los lados una cierta distancia antes de darle la espalda completamente al maestro).[83]
Rav Kattina dijo que cada vez que los israelitas subían al Templo en una fiesta, los sacerdotes corrían la cortina y les mostraban los querubines, cuyos cuerpos estaban entrelazados entre sí (en un abrazo). Y los sacerdotes le decían a la gente que eran tan amados por Dios como el amor entre un hombre y una mujer. El rabino Aha bar Jacob explicó que el Segundo Templo contenía querubines pintados, como dice 1 Reyes 6:29: «Y él (Salomón) talló todas las paredes de la casa alrededor con figuras talladas de querubines y palmeras y flores abiertas, por dentro y por fuera», y 1 Reyes 6:35 dice: «los recubrió de oro ajustado sobre el trabajo tallado». Y 1 Reyes 7:36 dice: «Según el espacio de cada uno, con «loyot» (en hebreo, «coronas alrededor»).» Rabbah, hijo de Rav Shela, dijo que «según el espacio de cada uno con «loyot»» significa «como un hombre que abraza a su compañera». («Loyot» está relacionado con la raíz que significa «atar»). Resh Lakish enseñó que cuando los romanos entraron en el Templo (durante su destrucción) y vieron a los Querubines cuyos cuerpos estaban entrelazados entre sí, se los llevaron y se burlaron de los israelitas, diciendo que un pueblo cuyas bendiciones y maldiciones Dios supuestamente cumplía se ocupaba de tales cosas (sensuales). E inmediatamente los romanos los degradaron, como dice el Libro de las Lamentaciones 1:8: «Todos los que la honraban, la despreciaron, porque han visto su desnudez».[84]

El rabino Meir y el rabino Judá difieren sobre cuál era el «testimonio» que Dios ordenó a Moisés que colocara en el Arca en Éxodo 25:21. El rabino Meir enseñó que el Arca contenía las tablas de piedra y un rollo de la Torá. Sin embargo, el rabino Judá enseñó que el Arca solo contenía las tablas de piedra, con el rollo de la Torá colocado en el exterior. Al leer Éxodo 25:17, el rabino Meir observó que el Arca medía 2½ codos de largo y, como un codo estándar equivale a 6 palmos, el Arca medía 15 palmos de largo. El rabino Meir calculó que las tablas medían 6 palmos de largo, 6 de ancho y 3 de grosor, y estaban colocadas una al lado de la otra en el Arca. Así, las tablas ocupaban 12 palmos, lo que dejaba 3 palmos sin ocupar. El rabino Meir restó 1 palmo para los dos lados del Arca (½ palmo para cada lado), dejando 2 palmos para el rollo de la Torá. El rabino Meir dedujo que había un rollo en el Arca a partir de las palabras de 1 Reyes 8:9: «No había nada en el Arca salvo las dos tablas de piedra que Moisés puso allí». Como las palabras «nada» y «salvo» crean una limitación seguida de una limitación, el rabino Meir siguió la regla de la construcción bíblica de que una limitación sobre una limitación implica lo contrario, en este caso la presencia de algo no mencionado: el rollo de la Torá. Sin embargo, el rabino Judá enseñó que el codo del Arca equivalía solo a 5 palmos, lo que significa que el Arca tenía 12½ palmos de largo. Las tablas (cada una de 6 palmos de ancho) se depositaron una al lado de la otra en el Arca, lo que representaba 12 palmos. Por lo tanto, quedaba medio palmo, que correspondía a los dos lados del Arca. Contando a continuación el ancho del Arca, el rabino Judá calculó que las tablas ocupaban 6 palmos y los lados del Arca representaban ½ palmo, dejando 1 palmo. Allí, enseñó el rabino Judá, se depositaron las columnas de plata mencionadas en el Cantar de los Cantares 3:9-10: «El rey Salomón se hizo un palanquín de madera del Líbano, e hizo sus columnas de plata». Al lado del Arca se colocó el cofre que los filisteos enviaron como regalo, como se relata en 1 Samuel 6:8, donde el rey filisteo dijo: «Y poned en un cofre junto a él las joyas de oro que le devolvéis como ofrenda por la culpa, y enviadlo para que se vaya». Y en este cofre se colocó el rollo de la Torá, como dice Deuteronomio 31:26: «Toma este libro de la ley y ponlo al lado del Arca de la Alianza del Señor», lo que demuestra que el rollo se colocó al lado del Arca y no en ella. El rabino Judá interpretó la doble limitación de 1 Reyes 8:9, «nada en el Arca salvo», para dar a entender que el Arca también contenía los fragmentos de las primeras tablas que Moisés rompió. El Talmud explicó además que, según la teoría del rabino Judá, antes de que llegara el cofre filisteo, el rollo de la Torá se colocó en una repisa que sobresalía del Arca.[85] El rabino Josué ben Levi enseñó a sus hijos a tener cuidado de respetar a un erudito anciano que ha olvidado su aprendizaje sin tener la culpa, pues se decía que tanto las tablas enteras como los fragmentos de las tablas que Moisés rompió se colocaron en el Arca.[86]

El rabino Hanina señaló que, para todos los recipientes que Moisés hizo, la Torá dio las medidas de su longitud, anchura y altura (en Éxodo 25:23 para el altar, Éxodo 27:1 para la mesa y Éxodo 30:2 para el altar del incienso). Pero para la cubierta del Arca, Éxodo 25:17 dio su longitud y anchura, pero no su altura. El rabino Hanina enseñó que se puede deducir la altura de la cubierta del Arca a partir de la característica más pequeña del recipiente, el borde de la mesa, sobre el cual Éxodo 25:25 dice: «Y le harás un borde de un palmo alrededor». Al igual que la altura del borde de la mesa era de un palmo, también lo era la de la cubierta del Arca. El rabino Huna enseñó que la altura de la cubierta del Arca puede deducirse de Levítico 16:14, que se refiere a «la cara de la cubierta del Arca», y una «cara» no puede ser más pequeña que un palmo. El rabino Aha bar Jacob enseñó una tradición según la cual la cara del querubín no era menor que el ancho de una mano, y el rabino Huna también hizo su deducción sobre la altura de la cubierta del Arca a partir del paralelismo.[87]
La Mishná describía los detalles de la mesa prevista en Éxodo 25:23.[88]Rabino Jose discrepó de la Mishná al enseñar que el marco del ancho de una mano descrito en Éxodo 25:25, no los soportes, sostenía el pan de la proposición en su lugar, pero interpretaron que el borde de la mesa existía solo a los pies de la mesa, no en su superficie.[89]
La Mishná enseñaba que quien robaba uno de los vasos sagrados («kisvot») descritos en Éxodo 25:29 y Números 4:7 era abatido por los zelotes en el acto.[90]
Ben Zoma interpretó Éxodo 25:30 para enseñar que el pan de la proposición tenía que tener caras.[91] Y la Tosefta interpretó Éxodo 25:30 para enseñar que la mesa no permanecía sin pan durante la noche.[92]
Los rabinos consideraron lo que había que hacer para cumplir el mandamiento de Éxodo 25:30 de poner el pan de la ofrenda ante Dios «continuamente» (תָּמִיד, tamid), y las implicaciones de eso para el mandamiento de Josué 1:8 que «este libro de la ley no se apartará de tu boca, sino que meditarás en él día y noche». El rabino José enseñó que incluso si se quitaba el pan viejo de la mesa por la mañana y se ponía el pan nuevo en la mesa solo por la noche, se había cumplido el mandamiento de poner el pan «continuamente». El rabino Ammi hizo una analogía a partir de esta enseñanza del rabino Jose de que las personas que aprenden solo un capítulo de la Torá por la mañana y un capítulo por la noche, han cumplido, no obstante, el precepto de Josué 1:8 de que «este libro de la ley no se apartará de tu boca, sino que meditarás en él día y noche». El rabino Johanan dijo en nombre del rabino Simeón ben Yohai que incluso las personas que leen solo el «Shema» (Deuteronomio 6:4-9) por la mañana y por la noche cumplen así el precepto de Josué 1:8. El rabino Johanan enseñó que, sin embargo, está prohibido enseñar esto a las personas que, por ignorancia, son descuidadas en la observancia de las leyes (ya que podría disuadirlas de seguir estudiando la Torá). Pero Rava enseñó que es meritorio decirlo en su presencia (ya que podrían pensar que si el mero hecho de recitar el Shemá dos veces al día merece una recompensa, cuán grande sería la recompensa por dedicar más tiempo al estudio de la Torá).[93]
Los rabinos enseñaron en una Baraita que durante los 40 años que Simeón el Justo ejerció como Sumo Sacerdote, se concedió una bendición sobre el pan de la proposición. Todos los sacerdotes que obtenían un trozo de pan de la proposición del tamaño de una aceituna se lo comían y quedaban saciados. Algunos comían menos y dejaban algo sin comer. Después de la época de Simeón el Justo, se lanzó una maldición sobre el pan de la proposición, de modo que cada sacerdote recibía un trozo tan pequeño como una alubia. Los sacerdotes piadosos retiraban las manos, mientras que los glotones lo cogían y lo devoraban. Una vez, un sacerdote glotón se apoderó de su porción y de la de su compañero, y desde entonces lo llamaron «aprovechador» hasta el día de su muerte.[94]
.jpg)
La Mishná enseñaba que la ausencia de una de las siete ramas de la menorá exigida en Éxodo 25:31-40 invalidaba las demás y que la ausencia de una de las siete lámparas de la menorá invalidaba las demás.[95] La Guemará explicó que esto es así porque Éxodo 25:36 utiliza la expresión «será» en este sentido. Talmud babilónico Menajot 28a. Del mismo modo, la Tosefta enseñaba que la invalidez de cualquiera de las copas, nudos o flores de la menorá descrita en Éxodo 25:31 invalidaba las demás.[54]
Issi ben Judah enumeró las palabras «como flores de almendro» en Éxodo 25:34 entre cinco pasajes de la Torá cuyas estructuras gramaticales no están claras. Issi ben Judah enseñó que no está claro si «como flores de almendro» se refiere a las copas mencionadas antes o a los pomos y flores mencionados después.[96]
Rabí Hiyya bar Abba dijo en nombre de Rabí Johanan que el ángel Gabriel se puso algo parecido a un delantal de artesano y le mostró a Moisés el funcionamiento de la menorá, ya que Números 8:4 dice: «Y este era el funcionamiento de la menorá» (el término «este» implica que se mostró algo como patrón o modelo para ilustrar las instrucciones).[97]

El rabino Abin comparó la instrucción de Éxodo 25:40 con la de un apuesto rey que ordenó a un sirviente que hiciera un busto exactamente igual a él. El sirviente exclamó que no era posible que hiciera un retrato exactamente igual al del rey. Pero el rey respondió que el sirviente lo pintaría con sus materiales, pero que el rey aparecería en su propia gloria. Así, cuando en Éxodo 25:40 Dios le dijo a Moisés: «Mira que los hagas según su modelo», Moisés se quejó de que no era Dios para poder hacer uno exactamente igual al modelo. Dios respondió que Moisés debía seguir el modelo de azul, púrpura y escarlata que vio arriba. La «madera de acacia, erguida» de Éxodo 26:15 reflejaría a los serafines que están en lo alto, y el rabino Hiyya bar Abba dijo que los broches de oro de Éxodo 26:6 reflejarían las estrellas brillantes del cielo. Así, Dios le dijo a Moisés que si hacia abajo una réplica de lo que estaba arriba, Dios haría que su Shejiná morara entre el pueblo.[98]
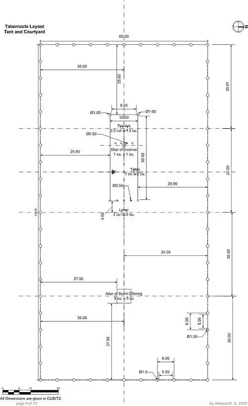
_-_Layout_and_Dimensions_-_Full.jpg)
Éxodo capítulo 26
Éxodo 26:1 ordenó a los israelitas que hicieran las cortinas del Tabernáculo con «lino fino retorcido» (שֵׁשׁ, «sheish»). Los rabinos enseñaron en una Baraita que siempre que la Torá instruía a los israelitas a hacer cosas con «fino lino entrelazado» (שֵׁשׁ, «sheish»), utilizaban hilos compuestos por seis hebras (שֵׁשׁ, «sheish») entrelazadas en cada hilo.[99]
Observando que, con respecto a las cortinas del Tabernáculo, Éxodo 26:1 lo llama «obra del hábil diseñador», mientras que Éxodo 26:36 lo llama «obra del bordador», el rabino Eleazar leyó los dos versículos juntos. El rabino Eleazar enseñó que los bordadores bordaban sobre el diseño que los diseñadores habían dibujado. Por otra parte, una Baraita enseñaba en nombre de Rabí Nehemías que el trabajo del bordador era una labor de aguja que solo era visible en una cara de la tela, mientras que el trabajo del diseñador era un trabajo de tejido que aparecía en ambas caras de la tela.[100]
Rabban Yohanan ben Zakai interpretó la palabra «Líbano» en Deuteronomio 3:25 como referencia al Templo de Jerusalén y «esa hermosa montaña» como referencia al Monte del Templo.[101] Un Midrash empleó esta interpretación de «Líbano» como el Templo para explicar el papel del oro en el mundo. El rabino Simeón ben Lakish enseñó que el mundo no merecía tener el uso del oro. Pero Dios creó el oro para el Tabernáculo (por ejemplo, en Éxodo 26:6) y el Templo. El Midrash dedujo esto del uso de la palabra «bueno» tanto en Génesis 2:12, donde dice: «el oro de aquella tierra es bueno», como en Deuteronomio 3:25, donde dice: «aquella hermosa región montañosa y el Líbano», concluyendo que el oro de la tierra fue creado para aquello que es bueno, el Templo.[102]
Rav Ashi enseñó que se podía deducir del término עַשְׁתֵּי-עֶשְׂרֵה, «ashtei-esreih», u «once», en Éxodo 26:7, que quien añade a la palabra de Dios en realidad le resta. Si se sustrajera la primera letra del término, se obtendría שְׁתֵּי-עֶשְׂרֵה, «shtei-esreih», o «doce», por lo que añadir esa letra reduce su significado.[103]
Los rabinos enseñaron en una Baraita que las cortinas inferiores del Tabernáculo estaban hechas de lana azul, lana púrpura, lana carmesí y lino fino, mientras que las cortinas superiores que formaban la tienda estaban hechas de pelo de cabra. Y enseñaron que las cortinas superiores requerían mayor habilidad que las inferiores, pues Éxodo 35:25 dice de las inferiores: «Y todas las mujeres que eran sabias de corazón hilaban con sus manos», mientras que Éxodo 35:26 dice de las superiores: «Y todas las mujeres cuyo corazón las movía en sabiduría hilaban las cabras». Se enseñó en nombre del rabino Nehemías que el pelo se lavaba en las cabras y se hilaba mientras aún estaba en las cabras.[104]
Rav Adda bar Ahavah dijo que las pieles de «tachash» mencionadas en Éxodo 26:14 procedían de un animal que vivía en los tiempos de Moisés. La Guemará interpretó que el rabino Nehemías dijo que su piel tenía muchos colores.[105]
El rabino Haninah enseñó que el mundo no era digno de tener árboles de cedro , pero Dios los creó para el Tabernáculo (por ejemplo, en la madera de acacia de Éxodo 26:15) y el Templo, como dice el Salmo 104:16: «Los árboles del Señor se sacian, los cedros del Líbano que Él plantó», interpretando una vez más Líbano como el Templo. El rabino Samuel ben Nahman en nombre del rabino Jonathan enseñó que hay 24 tipos de cedros, de los cuales siete son especialmente finos, como dice Isaías 41:19: «Plantaré en el desierto el cedro, la acacia, el arrayán y el olivo; plantaré en la soledad el ciprés, el plátano y el álamo». Dios previó que el Tabernáculo estaría hecho de estos árboles, como dice el Salmo 104:17, «En el que anidan las aves», y «aves» se refiere a aquellas aves que ofrecían los sacerdotes. Y cuando el Salmo 104:17 dice: «En cuanto a la cigüeña (חֲסִידָה, hasidah), los abetos son su casa», la חֲסִידָה, hasidah (cigüeña) se refiere al Sumo Sacerdote, de quien dice Deuteronomio 33:8: «Tu Tumim y Tu Urim estén con Tu santo (חֲסִידֶךָ, hasidekha).»[106]
Otro Midrash explicaba que en Éxodo 26:15, Dios eligió madera de acacia, la madera de un árbol que no da fruto, para construir el Tabernáculo y dar ejemplo para siempre de que la gente no debe construir casas con madera de árboles frutales.[107]
La Guemará dedujo del informe de Éxodo 26:16 sobre la longitud de las tablas que tanto el Tabernáculo como el altar tenían diez codos (unos 15 pies) de altura.[108]

En Deuteronomio 18:15, Moisés predijo que «el Señor tu Dios te levantará un profeta... como yo», y el rabino Juan enseñó que los profetas tendrían que ser, como Moisés, fuertes, ricos, sabios y mansos. Fuertes, porque Éxodo 40:19 dice de Moisés: “extendió la tienda sobre el tabernáculo”, y un Maestro enseñó que el propio Moisés la extendió, y Éxodo 26:16 informa: “Diez codos será la longitud de una tabla”. De manera similar, la fuerza de Moisés puede derivarse de Deuteronomio 9:17, en el que Moisés relata: «Y tomé las dos tablas, y las eché de mis dos manos, y las quebré», y se enseñó que las tablas tenían seis palmos de largo, seis de ancho y tres de grosor. Rico, como relata Éxodo 34:1 la instrucción de Dios a Moisés: «Tallad dos tablas de piedra», y los rabinos interpretaron el versículo para enseñar que las tablas pertenecerían a Moisés. Sabio, porque Rav y Samuel dijeron que se crearon 50 puertas de entendimiento en el mundo, y todas menos una se le dieron a Moisés, porque el Salmo 8:6 dice de Moisés: «Lo has hecho un poco menor que Dios». Manso, porque Números 12:3 dice: «El hombre Moisés era muy manso».[109]
El rabino Samuel ben Nahman utilizó la descripción del lado (en hebreo, צֶלַע, zela) del tabernáculo en Éxodo 26:20 para ayudar a interpretar la creación de la mujer. El rabino Jeremías ben Leazar enseñó que cuando Dios creó a Adán, lo creó hermafrodita —dos cuerpos, masculino y femenino, unidos— porque Génesis 5:2 dice: «varón y hembra los creó... y llamó su nombre Adán». El rabino Samuel ben Nahman enseñó que cuando Dios creó a Adán, lo creó con dos caras. Entonces Dios dividió a Adán y lo hizo de dos espaldas, una de este lado y otra del otro. Se planteó una objeción al hecho de que Génesis 2:21 dice: «Y tomó una de sus costillas» (lo que implica que Dios creó a Eva por separado de Adán). El rabino Samuel ben Nahman respondió que la palabra se lee como «costilla» —מִצַּלְעֹתָיו, «mi-zalotav»— en realidad significa uno de los costados de Adán, tal como se lee en Éxodo 26:20, «Y para el segundo costado (צֶלַע, «zela») del tabernáculo».[110]
.jpg)
El rabino Levi leyó Éxodo 26:28, en relación con «la barra de en medio, que atravesará de un extremo al otro», calculó que la viga debía tener 32 codos de longitud y preguntó dónde encontrarían los israelitas una viga así en el desierto. El rabino Levi dedujo que los israelitas habían almacenado el cedro para construir el Tabernáculo desde los tiempos de Jacob. Así lo relata Éxodo 35:24: «Y todo hombre con quien se hallaba madera de acacia», no «con quien se hallaría madera de acacia». El rabino Levi enseñó que los israelitas cortaron los árboles en Magdala de los Tintoreros, cerca de Tiberíades, y los llevaron consigo al Antiguo Egipto, y no se encontró ningún nudo ni grieta en ellos.[111]
La Mishná describía dos velos que separaban el Lugar Santo del Lugar Santísimo en el Segundo Templo, pero el rabino José dijo que solo había un velo, como se describe en Éxodo 26:33 en relación con el Tabernáculo.[112]
.jpg)
Éxodo, capítulo 27
El rabino Judá sostenía que el altar era más ancho de lo que pensaba el rabino José, mientras que el rabino José sostenía que el altar era más alto de lo que pensaba el rabino Judá. El rabino José dijo que se debían leer literalmente las palabras de Éxodo 27:1, «cinco codos de largo y cinco codos de ancho». Pero el rabino Judá señaló que Éxodo 27:1 utiliza la palabra «cuadrado» (רָבוּעַ, «ravua»), al igual que Ezequiel 43:16 utiliza la palabra «cuadrado» (רָבוּעַ, «ravua»). El rabino Judá argumentó que, al igual que en Ezequiel 43:16, la dimensión se medía desde el centro (de modo que la dimensión describía solo un cuadrante del total), por lo que las dimensiones de Éxodo 27:1 debían medirse desde el centro (y, por lo tanto, según el rabino Judá, el altar tenía 10 codos de cada lado). La Guemará explicó que sabemos que así es como hay que entender Ezequiel 43:16 porque Ezequiel 43:16 dice: «Y el hogar tendrá doce codos de largo por doce codos de ancho, en forma cuadrada», y Ezequiel 43:16 continúa: «a sus cuatro lados», enseñando que la medida se tomó desde el centro (interpretando «a» como que desde un punto en particular había 12 codos en todas las direcciones, por lo tanto, desde el centro). El rabino José, sin embargo, razonó que un uso común de la palabra «cuadrado» se aplicaba a la altura del altar. El rabino Judá dijo que uno debería leer literalmente las palabras de Éxodo 27:1, «Y su altura será de tres codos». Pero el rabino José señaló que Éxodo 27:1 utiliza la palabra «cuadrado» (רָבוּעַ, «ravua»), al igual que Éxodo 30:2 utiliza la palabra «cuadrado» (רָבוּעַ, «ravua», en referencia al altar interior). El rabino José argumentó que, al igual que en Éxodo 30:2, la altura del altar era el doble de su longitud, también en Éxodo 27:1, la altura debía leerse como el doble de su longitud (y, por lo tanto, el altar tenía 10 codos de altura). El rabino Judá cuestionó la conclusión del rabino José, ya que si los sacerdotes se paraban en el altar para realizar el servicio a 10 codos del suelo, la gente los vería desde fuera del patio. El rabino José respondió al rabino Judá que Números 4:26 dice: «Y las cortinas del atrio, y el biombo para la puerta de la entrada del atrio, que está junto al Tabernáculo y junto al altar alrededor», enseñando que así como el Tabernáculo tenía 10 codos de altura, también el altar tenía 10 codos de altura; y Éxodo 38:14 dice: «Las cortinas de un lado tenían quince codos» (enseñando que las paredes del patio tenían 15 codos de altura). La Guemará explicó que, según la lectura del rabino José, las palabras de Éxodo 27:18, «Y la altura será de cinco codos», significaban desde el borde superior del altar hasta la parte superior de las cortinas. Y según el rabino José, las palabras de Éxodo 27:1, «y su altura será de tres codos», significaban que había tres codos desde el borde de la terraza (en el lateral del altar) hasta la parte superior del altar. Sin embargo, el rabino Judá concedió que el sacerdote pudiera ser visto fuera del Tabernáculo, pero argumentó que el sacrificio en sus manos no podía ser visto.[113]

Un Midrash enseñaba que el altar estaba recubierto de cobre (en hebreo: נְחֹשֶׁת, nechosheit), como se indica en Éxodo 27:2, para expiar la frente de bronce (מֵצַח הַנְּחֹשֶׁת, meitzaj ha-nejoshet), como dice Isaías 48:4: «Tu cuello es un tendón de hierro, y tu frente de bronce (נְחוּשָׁה, nejushá).»[114]
El rabino José señaló que, aunque Éxodo 27:18 informaba de que el patio del Tabernáculo medía solo 100 codos por 50 codos (unos 45 metros por 22 metros), en un espacio pequeño cabía mucho, ya que Levítico 8:3 daba a entender que el espacio albergaba milagrosamente a todo el pueblo israelita.[115]
Un Midrash enseñaba que la longitud del patio que se menciona en Éxodo 27:18, de 100 codos, sumada a la longitud del Tabernáculo (30 codos), daba un total de 130 codos. Y el Midrash enseñó que se aludía a este número cuando (como informa Números 7:37) el príncipe de la Tribu de Simeón trajo una ofrenda de «un plato de plata, cuyo peso era de 130 siclos». El Midrash enseñó que el plato aludía al patio que rodeaba el Tabernáculo como el mar rodea el mundo.[116]
Sin embargo, la Guemará citó a Abaye como el significado claro de las palabras: «La longitud del patio será de 100 codos y la anchura de 50 por todas partes», en Éxodo 27:18. Abaye enseñó que los israelitas erigieron el Tabernáculo a 50 codos de la entrada del patio, de modo que pudiera haber un espacio de 50 codos delante del Tabernáculo y un espacio de 20 codos a cada lado del Tabernáculo.[117]
Un Midrash enseñó que Dios considera que estudiar la estructura del santuario equivale a reconstruirlo.[118]
En la interpretación judía medieval
La parashá se discute en estas fuentes judías medievales:[119]

Éxodo, capítulo 25
Maimónides enseñó que Dios dijo a los israelitas que construyeran un santuario en Éxodo 25:8 e instituyó la práctica de los sacrificios en general como pasos de transición para apartar a los israelitas de la adoración de la época y llevarlos hacia la oración como medio principal de adoración. Maimónides señaló que en la naturaleza, Dios creó animales que se desarrollan gradualmente. Por ejemplo, cuando nace un mamífero, es extremadamente tierno y no puede comer alimentos secos, por lo que Dios proporcionó pechos que producen leche para alimentar al animal joven, hasta que pueda comer alimentos secos. Del mismo modo, enseñó Maimónides, Dios instituyó muchas leyes como medidas temporales, ya que habría sido imposible que los israelitas de repente descontinuaran todo a lo que se habían acostumbrado. Así que Dios envió a Moisés para hacer de los israelitas (en palabras de Éxodo 19:6) «un reino de sacerdotes y una nación santa». Pero la costumbre general de adoración en aquellos días era sacrificar animales en templos que contenían ídolos. Así que Dios no ordenó a los israelitas que abandonaran esas formas de servicio, sino que les permitió continuar. Dios transfirió al servicio de Dios lo que antes había servido como adoración a los ídolos, y ordenó a los israelitas que sirvieran a Dios de la misma manera, es decir, que construyeran un santuario (Éxodo 25:8), que erigieran el altar al nombre de Dios (Éxodo 20:21), que ofrecieran sacrificios a Dios (Levítico 1:2), que se inclinaran ante Dios y que quemaran incienso ante Dios. Dios prohibió hacer cualquiera de estas cosas a cualquier otro ser y seleccionó sacerdotes para el servicio en el Templo en Éxodo 28:41. Mediante este plan divino, Dios borró los rastros de idolatría y estableció el gran principio de la Existencia y Unidad de Dios. Pero el servicio de sacrificio, enseñaba Maimónides, no era el objetivo principal de los mandamientos de Dios sobre el sacrificio; más bien, las súplicas, las oraciones y otros tipos similares de culto están más cerca del objetivo principal. Así, Dios limitó el sacrificio a un solo Templo (véase Deuteronomio 12:26) y el sacerdocio a los miembros de una familia en particular. Estas restricciones, enseñó Maimónides, sirvieron para limitar el culto sacrificial y lo mantuvieron dentro de unos límites tales que Dios no consideró necesario abolir el servicio sacrificial por completo. Pero en el plan divino, la oración y la súplica pueden ser ofrecidas en todas partes y por todas las personas, al igual que el uso de Flecos (Números 15:38) y Tefilín (Éxodo 13:9, 16) y tipos similares de servicio.[120]
Maimónides enseñó que la creencia en la existencia de los ángeles estaba relacionada con la creencia en la existencia de Dios, y que la creencia en Dios y en los ángeles conducía a la creencia en la profecía y en la Ley. Para apoyar esta interpretación, Dios ordenó a los israelitas que hicieran sobre el Arca la forma de dos ángeles. Maimónides enseñó que no había un solo querubín para que la gente no se equivocara al confundirlo con la imagen de Dios o al asumir que el ángel era una deidad. Al hacer dos querubines y declarar (en Deuteronomio 6:4) «el Señor es nuestro Dios, el Señor es Uno», Moisés proclamó la teoría de la existencia de varios ángeles y que no eran deidades.[121]
En la interpretación moderna
La parashá se discute en estas fuentes modernas:

Éxodo, capítulos 25-27
Franz Rosenzweig argumentó que la construcción del Tabernáculo era el objetivo y la cima de la Torá: en la esclavitud egipcia, los israelitas habían construido edificios para los faraones, ahora tenían el privilegio de trabajar por el amor de Dios, confirmando así su libertad.[122]

Umberto Cassuto argumentó que el propósito del Tabernáculo (literalmente, «Morada») en Éxodo 25:1-27:21 era servir como símbolo tangible de la presencia de Dios entre los israelitas, que estaban a punto de emprender el viaje desde el monte Sinaí, el lugar de la teofanía donde habían presenciado la revelación de Dios. Mientras acamparon en el Sinaí, fueron conscientes de la cercanía de Dios, pero una vez que emprendieron su viaje, el vínculo parecía roto sin el símbolo en medio de ellos.[123]
Terence Fretheim argumentó que Éxodo 25-31 representa un clímax tanto en el viaje de Israel como en el de Dios, lo que indica un cambio en la presencia de Dios con Israel: (1) La aparición ocasional de Dios en la montaña o en la tienda de campaña itinerante (en Éxodo 33:7-11) se convirtió en la presencia continua de Dios con Israel; (2) La distancia de Dios con el pueblo cambió de la cima remota de la montaña al centro del campamento; y (3) La morada de Dios ya no era un lugar fijo, sino portátil, en movimiento con el pueblo de Dios.[124]
Robert Alter informó del fuerte consenso académico de que Éxodo 25-27 es obra de la Fuente sacerdotal (P), lo que refleja la especial fascinación de P por los detalles de la parafernalia cultual. Alter argumentó que los editores bíblicos optaron por introducir este bloque de material cuando Moisés había desaparecido en la nube en la cima de la montaña para ofrecer una antítesis tranquilizadora a la temerosa distancia del pueblo de la ardiente presencia divina y la cercanía de Moisés a Dios. El plan arquitectónico del Tabernáculo prometía que Dios descendería de lo alto para morar entre su pueblo dentro del santuario seguro del Tabernáculo. Además, las donaciones respaldadas por Dios contrastan con las donaciones transgresoras que permiten el becerro de oro en Éxodo 32.[125]
Meyers argumentó que, aunque una modesta tienda santuario, tal vez reflejada en el término «tienda de reunión» (אֹהֶל מוֹעֵד, ohel moed) en Éxodo 27:21, habría sido posible, la elaborada y costosa estructura de Éxodo 25-27 probablemente reflejaba en parte el verdadero Templo de Jerusalén. Al igual que el monte Sinaí (en Éxodo 19:20-25) y el Templo de Jerusalén, el Tabernáculo tenía tres zonas de santidad. Así, a diferencia de los edificios religiosos actuales, que son lugares a los que la gente entra para adorar, el Tabernáculo era como los templos y santuarios del mundo antiguo, que se consideraban residencias terrenales de las deidades (véase Éxodo 25.8), prohibidas para la mayoría de los humanos: estructuras costosas y bien amuebladas que se ajustaban a sus divinos ocupantes.[34]
Tigay informó de que los estudiosos debaten si el Tabernáculo existió realmente. Algunos creen que Éxodo 25-27 describe alguna forma del Primer Templo de Jerusalén, históricamente retroyectado al período de las peregrinaciones para darle legitimidad. Otros señalan paralelismos con aspectos de la arquitectura del Tabernáculo en el Egipto y Mari, Siria, del segundo milenio, y entre las tribus árabes, y sugieren que (al menos a grandes rasgos) el Tabernáculo reflejaba el recuerdo de un santuario que pudo haber precedido al asentamiento de los israelitas en Canaán.[29]
Éxodo, capítulo 25
Tigay señaló que Éxodo 25:3 enumera los metales y Éxodo 25:4-5 enumera las telas en orden descendente de calidad, y el material del que estaba hecho un artículo dependía de su proximidad al Lugar Santísimo. Ref. Tigay. Nahum M. Sarna observó que el hierro brilla por su ausencia, ya sea por su gran rareza en la época o porque su uso para fabricar armas de muerte más eficientes lo hacía incompatible con los fines espirituales a los que servía el Tabernáculo.[126]
Citando un término acadio que indica un tinte amarillo o naranja, Alter argumentó que la palabra תְּחָשִׁים, «techashim» en Éxodo 25:5 se traduce de manera más plausible como «pieles teñidas de ocre» que como «pieles de delfín» o «pieles de dugongo». Alter argumentó que el color amarillo o naranja estaría en consonancia con las telas teñidas de forma brillante en Éxodo 25:4.[127] escribió que nadie sabe lo que significa el término, señalando que se ha traducido como pieles de delfín, pieles de tejón, pieles de cabra y pieles de un color particular. Friedman escribió que es un cognado de una palabra árabe para delfín, pero, dado que no aparece en la lista de animales que están prohibidos o permitidos como alimento en Levítico 11, puede que no se refiera a una especie particular de animal en absoluto. Friedman concluyó que puede significar simplemente pieles curtidas o cuero.[128]
Sharon Sobel observó que cuando Dios declaró en Éxodo 25:8: «Que me hagan un santuario», la palabra «ellos» se refería tanto a hombres como a mujeres. En Éxodo 35:1, al comienzo de la descripción paralela de la construcción del Tabernáculo que corresponde a las instrucciones dadas en Parashat Terumah, Moisés reunió explícitamente a toda la comunidad de Israel, incluidos hombres y mujeres, como se confirma en Éxodo 35:22, «hombres y mujeres, todos aquellos cuyo corazón se movió, todos los que querían hacer una ofrenda»; Éxodo 35:25-26, «todas las mujeres hábiles hilaban con sus propias manos y traían lo que habían hilado...; y todas las mujeres que sobresalían en esa habilidad hilaban el pelo de las cabras»; y Éxodo 35:29, «así los israelitas, todos los hombres y mujeres cuyo corazón se movió para traer algo para el tabernáculo». . . ; y todas las mujeres que sobresalían en esa habilidad hilaban el pelo de las cabras»; y Éxodo 35:29, «así los israelitas, todos los hombres y mujeres cuyos corazones se conmovieron para traer algo para la obra que el Señor, a través de Moisés, había ordenado que se hiciera, lo trajeron como una ofrenda voluntaria al Señor». Sobel concluyó que el texto de la Torá nos dice que es necesario que toda la comunidad, tanto hombres como mujeres, se involucre para traer la presencia de Dios a su medio.[129] Del mismo modo, Meyers señaló que tanto mujeres como hombres proporcionaron los materiales a los que se refieren Éxodo 25:1-9 y Éxodo 35:4-29, como dejan claro Éxodo 35:22 y 29, incluidas las telas fabricadas y donadas por mujeres artesanas (como se indica en Éxodo 35:25-26).[130]
Sarna señaló que Éxodo 25:8 habla de Dios que no mora «en él», es decir, en el Tabernáculo, sino «entre ellos», es decir, entre los israelitas. Sarna observó que el verbo «morar» no es el común en hebreo «y-sh-v», sino el más raro «sh-k-n», que transmite la idea de alojamiento temporal en una tienda de campaña como en el estilo de vida nómada. Sarna concluyó que el Tabernáculo no era la morada de Dios, como lo eran estructuras paganas similares. Más bien, argumentó Sarna, el Tabernáculo hizo perceptible y tangible la concepción de la inmanencia de Dios, es decir, de la morada de la Presencia Divina en el campamento israelita.[131]
Meyers sugirió que la palabra «modelo» en Éxodo 25:9 se refería a la morada celestial a partir de la cual se debía modelar la morada terrenal.[132] Bruce Wells informó, sin embargo, que los eruditos debaten el significado de la palabra «patrón». Una posibilidad es que el objeto que Dios le mostró a Moisés representaba la morada de Dios en los cielos. La otra posibilidad es que Éxodo 25:9 se refiera simplemente a un modelo a escala de la estructura que Dios le ordenó construir a Moisés. Wells señaló que varios textos del antiguo Oriente Próximo apoyan esta segunda opción, refiriéndose a casos en los que los dioses revelaron modelos o planos de objetos religiosos a los responsables de construirlos. En un documento babilónico medio, se descubrió milagrosamente cerca del Éufrates un modelo de arcilla de la estatua del dios Shamash, que mostraba información que faltaba desde hacía mucho tiempo sobre el aspecto que debía tener la estatua y la ropa con la que debía adornarse, lo que permitió al rey babilónico hacer una nueva estatua.[133]
Alter escribió que la instrucción de Éxodo 25:16 de colocar las tablas de piedra de los Diez Mandamientos en el Tabernáculo reflejaba una práctica común en el antiguo Cercano Oriente de colocar documentos de contratos solemnes dentro de recintos sagrados.[134]
Alter escribió que el término «querubines» (en hebreo, כְּרֻבִים, keruvim) en Éxodo 25:18 se deriva de una raíz que sugiere híbrido o compuesto y quizás también «corcel», y se refiere a temibles bestias aladas como la esfinge egipcia que figuran en la poesía como corceles celestiales de Dios.[134]

Baruch Spinoza afirmó que una lectura detenida de las Escrituras muestra que todas las revelaciones de Dios a los profetas se hicieron a través de palabras o apariencias, o una combinación de ambas, y que estas palabras y apariencias eran reales, cuando eran externas a la mente del profeta que las oyó o vio, o imaginarias, cuando la imaginación del profeta estaba en un estado que le llevó a suponer claramente que las oyó o vio. Spinoza leyó Éxodo 25:22, donde Dios dice: «Y allí me encontraré contigo y te hablaré desde el propiciatorio que está entre los querubines», para informar de que Dios reveló a Moisés las leyes que Dios deseaba transmitir a los israelitas con una voz real. Spinoza argumentó que Dios necesariamente debió haber empleado algún tipo de voz real, ya que Moisés encontró a Dios dispuesto a comunicarse con él en cualquier momento. Y Spinoza argumentó que este, donde Dios proclamó la ley, fue el único caso de una voz real.[135]
Al observar los términos botánicos (ramas, cálices, flores de almendro, pétalos) en la descripción del candelabro en Éxodo 25:31-40, Meyers sugirió que el candelabro representaba un árbol sagrado y tal vez a Dios como fuente de fertilidad.[136]
Gunther Plaut rastreó la historia de la menorá, informando que, como se representa en el Arco de Tito, el ejército romano llevó la menorá a Roma como botín de guerra. Después de eso, los judíos continuaron con la intención del mandamiento en Éxodo 27:20-21 de encender la menorá manteniendo una luz separada, un ner tamid, en la sinagoga. Originalmente, los judíos colocaban el ner tamid frente al arca en la pared occidental de la sinagoga, pero luego lo trasladaron a un nicho al lado del arca y más tarde a una lámpara suspendida sobre el arca. Plaut informó de que el ner tamid ha llegado a simbolizar la presencia de Dios, una luz espiritual que emana como si procediera del Templo.[137]
Éxodo, capítulo 26
Friedman observó que la anchura de un codo y medio de cada tabla utilizada para construir el Tabernáculo descrito en Éxodo 26:16 es extraña, ya que suponía que los antiguos israelitas llevaban una cuerda de medir de un codo de largo. Friedman se preguntó por qué los israelitas diseñarían una estructura con componentes de un codo y medio en lugar de un codo o dos codos. Friedman explicó el inusual ancho de un codo y medio postulando que el medio codo extra era para superponerse con la tabla adyacente. Friedman informó que los arquitectos a los que consultó dijeron que tal disposición superpuesta tendría ventajas de estabilidad y ventilación. Basándose en esta disposición, Friedman sugirió que el Tabernáculo tenía 20 codos de largo y de 6 a 8 codos de ancho y que, por lo tanto, el Tabernáculo tendría el tamaño justo para caber bajo las alas extendidas entre los dos querubines que 1 Reyes 6:20-24 describe dentro del Lugar Santísimo en el Templo de Salomón. Friedman concluyó que el autor de la Fuente sacerdotal que se cree que escribió este material debió de haber vivido antes de que Nabucodonosor II destruyera el Templo de Salomón en el 587 a. C.[138]
Mark Smith vio en la palabra para estas tablas, קְּרָשִׁים, kerashim, una conexión con la morada del dios cananeo El, llamada krsh, por «tabernáculo» o «pabellón». Smith citó esto como una de las varias razones por las que llegó a la conclusión de que el Dios israelita יְהוָה, YHVH, y El se identificaron en una etapa temprana.[139]
Mandamientos
Según Maimónides y el Sefer Ha-Chinuch, hay 2 mandamientos positivos y 1 negativo en la parashá:[140]
- Para construir un santuario[141]
- Para no quitar las varas del Arca de la Alianza[142]
- Para hacer el pan de la proposición[143]
Liturgia
La presencia de Dios en un trono entre querubines en Éxodo 25:17-22 se refleja en el Salmo 99:1, que a su vez es uno de los seis salmos recitados al comienzo del Kabbalat Shabat servicio de oración.[144]
Las luces encendidas de la Menorá de Éxodo 25:31-40 desempeñaron un papel clave en Hanukkah y, por lo tanto, se mencionan a su vez en la inserción de Hanukkah en la sección Modim de la oración Amidah en cada uno de los tres servicios de oración.[145]
Maqam semanal

En el Maqam semanal, los judíos sefardíes orientales basan cada semana los cantos de los servicios en el contenido de la parashá de esa semana. Para la Parashat Terumah, los judíos sefardíes aplican el Maqam Hoseni, el maqam que expresa la belleza, ya que es la parashá donde se elabora la belleza del Tabernáculo y sus utensilios.[146]
Haftarah
La haftarah de la parashá es 1 Reyes 5:26-6:13.

Resumen
Dios le dio sabiduría al rey Salomón, y Salomón hizo un tratado de paz con el rey Hiram I de Tiro, Líbano. Salomón ordenó a su recaudador de impuestos Adoniram que reclutara a 30 000 hombres y los enviara al Líbano en turnos de 10 000, con un mes en el Líbano y dos meses en casa.[147] Salomón también tenía 70 000 hombres que llevaban cargas, 80 000 hombres que tallaban piedra en las montañas y 3300 oficiales jefes que supervisaban el trabajo.[148] Salomón ordenó que se cortaran piedras grandes y costosas para sentar los cimientos del Templo de Jerusalén, y los constructores de Salomón, los constructores de Hiram y los Gebalitas las tallaron y prepararon la madera y las piedras para construir el Templo.[149]

Salomón comenzó a construir el Templo en el año 480 después de que los israelitas salieran de Egipto, en el cuarto año de su reinado, en el mes de Ziv.[150] El Templo medía 60 codos de largo, 20 codos de ancho y 30 codos de alto, y tenía un pórtico de 20 codos de largo y 10 codos de profundidad.[151] Sus ventanas eran anchas por dentro y estrechas por fuera.[152] A lo largo de la pared del Templo había estructuras y cámaras laterales, con la planta baja de la estructura lateral de 5 codos de ancho, la del medio de 6 codos de ancho y la tercera planta de 7 codos de ancho, y los huecos rodeaban la pared exterior.[153] El Templo fue construido con piedra preparada en la cantera, y en el lugar de la construcción no se oyó ningún martillo, hacha u otra herramienta de hierro.[154] La puerta de la planta más baja de las cámaras laterales estaba en el lado derecho del templo, y unas escaleras de caracol subían a la planta intermedia y bajaban a la tercera.[155] Así que Salomón construyó el Templo y lo terminó con tablones de cedro sobre vigas, con todo el Templo descansando sobre vigas de cedro.[156]

Y vino la palabra del Señor a Salomón, diciendo: «En cuanto a esta casa que estás construyendo, si caminas en mis estatutos, y ejecutas mis ordenanzas, y guardas todos mis mandamientos, entonces estableceré mi palabra contigo que hablé a David tu padre y moraré en ella entre los hijos de Israel, y no abandonaré a mi pueblo Israel».[157]
Conexión con la parashá
Tanto la parashá como la haftará describen la organización de recursos de un gran líder judío para construir una morada para Dios, la parashá en la colección de Moisés de regalos para construir el Tabernáculo,[4] y la haftará en el reclutamiento de mano de obra y la recolección de madera y piedra de Salomón para construir el Templo de Jerusalén.[158] Tanto la parashá como la haftará describen las condiciones para una estructura en la que Dios pudiera habitar (ve-shakhanti) entre (be-tokh) los israelitas.[159]
En Shabbat Zachor
Cuando la parashá coincide con el Shabat especial Shabat Zachor (como ocurrió en 2021), la haftará es 1 Samuel 15:2-34.[2]
En Shabat Rosh Jodesh
Cuando la parashá coincide con el sabbat especial de Rosh Jodesh, la haftará es Isaías 66:1-24. Sin embargo, si no es un año bisiesto, entonces el Rosh Jodesh Shabbat Adar también es Shabbat Shekalim, y la lectura de la haftará para los judíos asquenazíes es Reyes II 12:1-17.[160]
Referencias
- ↑ com/tanach/childrens-torah-portions/book-of-shemoth/torah-stats-for-shemoth/ «Estadísticas de la Torá para Shemot». Akhlah Inc. Consultado el 11 de septiembre de 2023.
- ↑ a b «Parashat Terumah». Hebcal. Consultado el 23 de enero de 2018.
- ↑ Véase, por ejemplo, Menachem Davis, editor, The Schottenstein Edition Interlinear Chumash: Shemos/Exodus (Brooklyn: Mesorah Publications, 2008), páginas 177-200
- ↑ a b Exodus 25:1–8.
- ↑ Exodus 25:10–16.
- ↑ Exodus 25:17–21.
- ↑ Exodus 25:22.
- ↑ Exodus 25:23–30.
- ↑ Exodus 25:31–40.
- ↑ Exodus 26:1–6.
- ↑ Exodus 26:7–13
- ↑ Exodus 26:12.
- ↑ Exodus 26:15–25.
- ↑ Exodus 26:31–33.
- ↑ Exodus 26:34–35.
- ↑ Exodus 26:36–37.
- ↑ Cf. Talmud, «Yoma» 72b
- ↑ Exodus 27:9–16.
- ↑ Véase, por ejemplo, Richard Eisenberg, [https://www.rabbinicalassembly.org/sites/default/files/public/halakhah/teshuvot/19861990/eisenberg_triennial. pdf «Un ciclo trienal completo para la lectura de la Torá», en «Actas de la Comisión de Derecho y Normas Judías del Movimiento Conservador: 1986-1990» (Nueva York: Asamblea Rabínica, 2001), páginas 383-418.
- ↑ Para más información sobre la interpretación bíblica interna, véase, por ejemplo, Benjamin D. Sommer, «Inner-biblical Interpretation», en Adele Berlin y Marc Zvi Brettler, editores, The Jewish Study Bible: 2nd Edition (Nueva York: Oxford University Press, 2014), páginas 1835-41
- ↑ Véase en general Jon D. Levenson, Creation and the Persistence of Evil (San Francisco: Harper & Row, 1988), páginas 78-99; véase también Jeffrey H. Tigay, «Éxodo», en Adele Berlin y Marc Brettler, editores, Jewish Study Bible: 2nd Edition, página 157.
- ↑ (1) Génesis 1:1–5; (2) Génesis 1:6–8; (3) Génesis 1:9–13; (4) Génesis 1: 14–19; (5) Génesis 1:20–25; (6) Génesis 1:24–31; (7) Génesis 2:1–3.
- ↑ (1) Exodus 25:1–30:10; (2) Exodus 30:11–16; (3) Exodus 30:17–21; (4) Exodus 30: 22-33; (5) Exodus 30:34-37; (6) Exodus 31:1-11; (7) Exodus 31:12-17.
- ↑ Génesis 2:1; Éxodo 39:32.
- ↑ Génesis 1:31; Éxodo 39:43.
- ↑ Génesis 2:2; Éxodo 40:33–34.
- ↑ Génesis 2:3; Éxodo 39:43.
- ↑ Génesis 2:3; Éxodo 40:9–11.
- ↑ a b Jeffrey H. Tigay, «Éxodo», en Adele Berlin y Marc Brettler, editores, Jewish Study Bible: 2nd Edition, página 157.
- ↑ Éxodo 25:37
- ↑ Exodus 28:1–39
- ↑ Compare Exodus 39:32 a Génesis 2:1–3; Éxodo 39:43 a Génesis 1:31; y Éxodo 40:33 a Génesis 2:2
- ↑ Exodus 40:17.
- ↑ a b Carol Meyers, «Éxodo», en Michael D. Coogan, Marc Z. Brettler, Carol A. Newsom, y Pheme Perkins, editores, The New Oxford Annotated Bible (Nueva York: Oxford University Press, 4.ª edición revisada, 2010), página 117
- ↑ Véase en general Sorel Goldberg Loeb y Barbara Binder Kadden, Teaching Torah (Denver: A.R.E. Publishing, 1997), página 157
- ↑ Sinaí: Exodus 19:12, 21–23; Tabernáculo: Éxodo 27:21; Éxodo 28:43; Levítico 16:2; Números 1:51.
- ↑ Sinaí: Exodus 24:12; Exodus 31:18; Exodus 32:15; Exodus 32: 15; Exodus 34:1–4, 28–29; Deuteronomy 4:13; Deuteronomy 5: 22; Deuteronomio 9:9–11, 15; HE; Tabernáculo: Exodus 25:16; Deuteronomy 10:5.
- ↑ Sinaí: Exodus 19:9; 16; Exodus 24:15–18; Deuteronomy 4: 11; Deuteronomy 5:22; Tabernáculo: Exodus 33:9–10; Exodus 34:2; Exodus 40:34–38; Leviticus 16: 2; Números 9:15–22; Números 12:5; Números 16:42; Deuteronomio 31:15
- ↑ Sinaí: Exodus 19:20; Tabernáculo: Exodus 29:43; Exodus 40:34; Leviticus 16:2.
- ↑ Sinaí: Exodus 19:3, 9, 16; Tabernáculo: Exodus 33:9–10.
- ↑ Véase en general Terence E. Fretheim, Exodus (Louisville: John Knox Press, 1991), página 264
- ↑ Para más información sobre la interpretación no rabínica temprana, véase, por ejemplo, Esther Eshel, «Early Nonrabbinic Interpretation», en Adele Berlin y Marc Brettler, editores, «Jewish Study Bible: 2nd Edition», páginas 1841-59
- ↑ Josefo, Antigüedades de los judíos. 3:7:7 Archivado el 9 de agosto de 2012 en Wayback Machine..
- ↑ Filón, ¿Quién es el heredero de las cosas divinas? capítulo 34, párrafos 165-66
- ↑ Para más información sobre la interpretación rabínica clásica, véase, por ejemplo, Yaakov Elman, «Classical Rabbinic Interpretation», en Adele Berlin y Marc Brettler, editores, Jewish Study Bible: 2.ª edición, páginas 1859-78.
- ↑ Éxodo Rabá 33:6.
- ↑ Mekhilta de Rabbi Simeon Pisha 15:8:3.
- ↑ Éxodo Rabbah 35:5.
- ↑ Talmud babilónico Shabat 26a; Menajot 42b, 44a
- ↑ Talmud babilónico Yevamot 4b.
- ↑ Talmud babilónico Shabat 28b.
- ↑ Talmud babilónico Shabat 28a.
- ↑ Tosefta Shabbat 8:23.
- ↑ a b Tosefta Menachot 6:11.
- ↑ Tosefta Menachot 7:7.
- ↑ Éxodo Rabá 33:1.
- ↑ Mekhilta del rabino Simeón Bahodesh 54:2:7; véase también Avot del rabino Nathan 11:1 (atribuido al rabino Tarfon).
- ↑ Mekhilta del rabino Ishmael Pisha, capítulo 16
- ↑ Talmud babilónico Ketubot 62b.
- ↑ Talmud babilónico Yoma 3b
- ↑ Éxodo Rabá 33:4.
- ↑ Mekhilta del rabino Ishmael 82:1.
- ↑ Éxodo Rabá 51:4.
- ↑ Éxodo Rabá 34:1.
- ↑ Véase Génesis 1:1–5.
- ↑ Véase Números 7:10–17.
- ↑ Véase Levítico 9:1–21.
- ↑ Véase Levítico 9:24.
- ↑ Véase Exodus 25:8.
- ↑ Véase Levítico 9:22, empleando la bendición prescrita por Números 6:22–27.
- ↑ Véase Leviticus 17:3–4.
- ↑ Véase Exodus 12:2.
- ↑ Talmud babilónico Meguilá 10b
- ↑ Talmud de Babilonia Berakhot 55a
- ↑ Talmud babilónico Eruvin 2a-b; Shevuot 16b
- ↑ Talmud de Babilonia Sanedrín 16b; Shevuot 14b
- ↑ [Mishná Avot 4:13, http://www.sefaria.org/Pirkei_Avot.4.13].
- ↑ Éxodo Rabá 34:2
- ↑ Talmud babilónico Bava Batra 98b-99a.
- ↑ Talmud babilónico Yoma 72b
- ↑ Mishnah Yoma 5:1; Talmud babilónico Yoma 52b
- ↑ Talmud babilónico, Jaguigá 13b.
- ↑ Talmud babilónico Bava Batra 99a
- ↑ Talmud babilónico Yoma 54a-b.
- ↑ Talmud babilónico Bava Batra 14a-b.
- ↑ Talmud babilónico Berajot 8b.
- ↑ Talmud babilónico Sucá 5a-b.
- ↑ Mishná Menajot 11:5–7; Talmud babilónico Menajot 96a, 99b.
- ↑ Tosefta Menajot 11:6.
- ↑ Mishnah Sanhedrin 9:6; Talmud babilónico Sanhedrin 81b.
- ↑ Mishná Menajot 11:4; Talmud babilónico Menajot 96a.
- ↑ Tosefta Menajot 11:12.
- ↑ Talmud babilónico Menajot 99b
- ↑ Talmud babilónico Yoma 39a-b.
- ↑ Mishná Menajot 3:7; Talmud babilónico Menajot 28a.
- ↑ Mekhilta del rabino Simeón Amalek 54:2; Talmud babilónico Yoma 52a-b.
- ↑ Talmud babilónico Menajot 29a.
- ↑ Éxodo Rabá 35:6
- ↑ Talmud babilónico Yoma 71b.
- ↑ Talmud babilónico Yoma 72b.
- ↑ Talmud babilónico Gittin 56b.
- ↑ Génesis Rabbah 16:2; véase también Exodus Rabbah 35:1.
- ↑ Talmud de Babilonia Sanedrín 29a.
- ↑ Talmud babilónico Shabat 99a.
- ↑ Talmud babilónico Shabat 28a.
- ↑ Éxodo Rabbah 35:1.
- ↑ Éxodo Rabbah 35:2.
- ↑ Talmud babilónico Shabat 92a.
- ↑ Talmud babilónico Nedarim 38a
- ↑ Génesis Rabbah 8:1
- ↑ Génesis Rabbah 94:4
- ↑ Mishnah Yoma 5:1; Tosefta Yoma (Kippurim) 2:12; Talmud babilónico Yoma 51b.
- ↑ Talmud babilónico Zevachim 59b-60a
- ↑ Tanhuma Terumah 11.
- ↑ Génesis Rabbah 5:7; Levítico Rabbah 10:9.
- ↑ Números Rabbah 13:19.
- ↑ Talmud babilónico Eruvin 23b
- ↑ Tanhuma, Tzav 14.
- ↑ Para más información sobre la interpretación judía medieval, véase, por ejemplo, Barry D. Walfish, «Medieval Jewish Interpretation», en Adele Berlin y Marc Brettler, editores, Jewish Study Bible: 2nd Edition, páginas 1891-1915.
- ↑ Maimónides. La guía para perplejos, parte 3, capítulo 32. El Cairo, Egipto, 1190. En, por ejemplo, Maimónides. La guía para perplejos, traducido por Michael Friedländer, páginas 322-22. El Cairo, Egipto, 1190, en, por ejemplo, Moisés Maimónides. La guía para perplejos, traducido por Michael Friedländer, páginas 322-27. Nueva York: Dover Publications, 1956
- ↑ Maimónides. «La guía para perplejos», parte 3, capítulo 45, en, por ejemplo, Moisés Maimónides. «La guía para perplejos», traducido por Michael Friedländer, página 356.
- ↑ Véase W. Gunther Plaut. The Torah: A Modern Commentary: Revised Edition. Edición revisada editada por David E.S. Stern, página 543. Nueva York: Unión para el Judaísmo Reformista, 2006. (citando a Martin Buber y Franz Rosenzweig. Die Schrift und ihre Verdeutschung, páginas 115 y siguientes).
- ↑ Umberto Cassuto. A Commentary on the Book of Exodus. Jerusalén, 1951, traducido por Israel Abrahams, página 319. Jerusalén: The Magnes Press, La Universidad Hebrea, 1967.
- ↑ Terence E. Fretheim. Éxodo: Interpretación: Un comentario bíblico para la enseñanza y la predicación, página 264. Louisville, Kentucky: John Knox Press, 1991.
- ↑ Robert Alter. «Los cinco libros de Moisés: Una traducción con comentarios», páginas 460-61. Nueva York: W.W. Norton & Co., 2004.
- ↑ Nahum M. Sarna. «The JPS Torah Commentary: Exodus: The Traditional Hebrew Text with the New JPS Translation», página 157. Filadelfia: Jewish Publication Society, 1991.
- ↑ Robert Alter. Los cinco libros de Moisés: Una traducción con comentarios, página 461. Richard Elliott Friedman
- ↑ Richard Elliott Friedman. Commentary on the Torah: With a New English Translation, página 255. Nueva York: Harper San Francisco, 2001.
- ↑ Sharon L. Sobel, «Community as Sacred Space», en Elyse Goldstein, editora, «The Women's Torah Commentary: Nuevas perspectivas de mujeres rabinas sobre las 54 porciones semanales de la Torá (Woodstock, Vermont: Jewish Lights Publishing, 2000), páginas 157-58.
- ↑ Carol Meyers. «Éxodo». En «The New Oxford Annotated Bible: New Revised Standard Version With The Apocrypha: An Ecumenical Study Bible», editado por Michael D. Coogan, Marc Z. Brettler, Carol A. Newsom y Pheme Perkins, páginas 133-34.
- ↑ Nahum M. Sarna. «The JPS Torah Commentary: Éxodo: El texto tradicional en hebreo con la nueva traducción JPS, página 158.
- ↑ Carol Meyers. «Éxodo». En «The New Oxford Annotated Bible: New Revised Standard Version With The Apocrypha: An Ecumenical Study Bible», editado por Michael D. Coogan, Marc Z. Brettler, Carol A. Newsom y Pheme Perkins, página 118.
- ↑ Bruce Wells. «Éxodo». En Zondervan Illustrated Bible Backgrounds Commentary, editado por John H. Walton, volumen 1, páginas 247-48. Grand Rapids, Michigan: Zondervan, 2009.
- ↑ a b Robert Alter. Los cinco libros de Moisés: Una traducción con comentarios, página 462.
- ↑ Baruch Spinoza, «Tratado teológico-político», capítulo 1. (Ámsterdam, 1670), en, por ejemplo, Baruch Spinoza, Tratado teológico-político, traducido por Samuel Shirley (Indianápolis: Hackett Publishing Company, 2.ª edición, 2001), páginas 10-11.
- ↑ Carol Meyers. «Éxodo». En La Nueva Biblia Anotada de Oxford: Nueva Versión Estándar Revisada con los Apócrifos: Una Biblia de Estudio Ecuménica, editada por Michael D. Coogan, Marc Z. Brettler, Carol A. Newsom y Pheme Perkins, página 119.
- ↑ W. Gunther Plaut. La Torá: Un comentario moderno: Edición revisada. Edición revisada editada por David E.S. Stern, página 573.
- ↑ Richard Elliott Friedman. Who Wrote the Bible?, páginas 177-87. Nueva York: Summit Books, 1987.
- ↑ Mark S. Smith, The Early History of God (Nueva York: HarperSanFrancisco, 1990), páginas 8, 10.
- ↑ Véase, por ejemplo, Maimónides. Los mandamientos: Sefer Ha-Mitzvoth de Maimónides, traducido por Charles B. Chavel, volumen 1, páginas 27-29, 36-37; volumen 2, páginas 84-85. Londres: Soncino Press, 1967. «Sefer HaHinnuch: El libro de la educación [de las mitzvot]», traducido por Charles Wengrov, volumen 1, páginas 355-77. Jerusalén: Feldheim Publishers, 1991.
- ↑ Exodus 25:8.
- ↑ Exodus 25:15.
- ↑ Exodus 25:30.
- ↑ Reuven Hammer, Or Hadash: Un comentario sobre el Siddur Sim Shalom para el Shabat y las festividades (Nueva York: Asamblea Rabínica, 2003), página 19; Menachem Davis, La edición Schottenstein Siddur para el Shabat y las festividades con una traducción interlineal (Brooklyn: Mesorah Publications, 2002), página 66.
- ↑ Reuven Hammer, Or Hadash: Un comentario sobre el Siddur Sim Shalom para Shabat y festividades», página 8.
- ↑ Véase Mark L. Kligman, «The Bible, Prayer, and Maqam: Asociaciones extramusicales de los judíos sirios», Etnomusicología, volumen 45 (número 3) (otoño de 2001): páginas 443-479; Mark L. Kligman, «Maqam y liturgia: Ritual, música y estética de los judíos sirios en Brooklyn (Detroit: Wayne State University Press, 2009).
- ↑ 5:27–28
- ↑ 5:29–30
- ↑ 5:31–32
- ↑ 6:1
- ↑ 6:2–3.
- ↑ 6:4.
- ↑ 6:5–6
- ↑ 6:7
- ↑ 6:8
- ↑ 6:9–10
- ↑ 6:11–13
- ↑ 5:26–31
- ↑ Exodus 25:85:13
- ↑ [1]
Bíblico
- 2 Samuel 22:2–15 (cherubim).
- Ezekiel 1:5–14 (cherubim); 10:1–22 (cherubim).
- Psalms 18:11 (cherubim); 80:2 (cherubim); 84:2–3, 11 (Tabernacle, courts); 90:1 (dwelling); 92:14 (courts); 100:4 (court); 132:8 (ark).
Antiguo no rabínico
- 1 Maccabees 4:47–59 (rededication of the Temple).
- Philo. Allegorical Interpretation 3:33:102; Who Is the Heir of Divine Things? 23:113; 34:166; 46:218; On Mating with the Preliminary Studies 2:8; 17:89; 21:114; 30:168; On Flight and Finding 19:101; On the Change of Names 35:190. Alexandria, Egypt, early 1st Century C.E. In, e.g., The Works of Philo: Complete and Unabridged, New Updated Edition. Translated by Charles Duke Yonge, pages 62, 285, 290, 294, 304, 312, 314, 319, 330, 357. Peabody, Massachusetts: Hendrickson Publishers, 1993.
- Josephus, Antiquities of the Jews 3:6:1, 3:7:7 Archivado el 9 de agosto de 2012 en Wayback Machine.. Circa 93–94. In, e.g., The Works of Josephus: Complete and Unabridged, New Updated Edition. Translated by William Whiston, pages 85–86, 90. Peabody, Massachusetts: Hendrickson Publishers, 1987.
Medieval
- Bede. Of the Tabernacle and Its Vessels, and of the Priestly Vestments. Monkwearmouth, England, 720s. In Bede: On the Tabernacle. Translated with notes and introduction by Arthur G. Holder. Liverpool: Liverpool University Press, 1994.
- Exodus Rabbah 33:1–35:6. 10th Century. In, e.g., Midrash Rabbah: Exodus. Translated by Simon M. Lehrman, volume 3, pages 414–35. London: Soncino Press, 1939.
- Solomon ibn Gabirol. A Crown for the King, 31:378. Spain, 11th Century. Translated by David R. Slavitt, pages 50–51. New York: Oxford University Press, 1998.

- Rashi. Commentary. Exodus 25–27. Troyes, France, late 11th Century. In, e.g., Rashi. The Torah: With Rashi's Commentary Translated, Annotated, and Elucidated. Translated and annotated by Yisrael Isser Zvi Herczeg, volume 2, pages 319–73. Brooklyn: Mesorah Publications, 1994.
- Rashbam. Commentary on the Torah. Troyes, early 12th century. In, e.g., Rashbam's Commentary on Exodus: An Annotated Translation. Edited and translated by Martin I. Lockshin, pages 303–51. Atlanta: Scholars Press, 1997.
- Judah Halevi. Kuzari. 3:23. Toledo, Spain, 1130–1140. In, e.g., Jehuda Halevi. Kuzari: An Argument for the Faith of Israel. Introduction by Henry Slonimsky, page 162. New York: Schocken, 1964.
- Abraham ibn Ezra. Commentary on the Torah. France, 1153. In, e.g., Ibn Ezra's Commentary on the Pentateuch: Exodus (Shemot). Translated and annotated by H. Norman Strickman and Arthur M. Silver, volume 2, pages 531–83. New York: Menorah Publishing Company, 1996.

- Maimonides. The Guide for the Perplexed, part 1, chapters 3, 6, 38; part 2, chapters 30, 45; part 3, chapter 45. Cairo, Egypt, 1190. In, e.g., Moses Maimonides. The Guide for the Perplexed. Translated by Michael Friedländer, pages 16, 19, 53, 216, 245, 356. New York: Dover Publications, 1956.
- Hezekiah ben Manoah. Hizkuni. France, circa 1240. In, e.g., Chizkiyahu ben Manoach. Chizkuni: Torah Commentary. Translated and annotated by Eliyahu Munk, volume 2, pages 575–94. Jerusalem: Ktav Publishers, 2013.
- Nachmanides. Commentary on the Torah. Jerusalem, circa 1270. In, e.g., Ramban (Nachmanides): Commentary on the Torah. Translated by Charles B. Chavel, volume 2, pages 434–70. New York: Shilo Publishing House, 1973.

- Zohar 1:31a, 74a, 130a, 217a, 224a; 2:14b, 55a, 63a, 76a, 89b, 126a–43a, 154b, 157b, 159a, 162b, 169a, 171a, 176a, 195a, 221a, 233b, 235b, 241a; 3:4b, 126a, 192a. Spain, late 13th Century. In, e.g., The Zohar. Translated by Harry Sperling and Maurice Simon. 5 volumes. London: Soncino Press, 1934.
- Bahya ben Asher. Commentary on the Torah. Spain, early 14th century. In, e.g., Midrash Rabbeinu Bachya: Torah Commentary by Rabbi Bachya ben Asher. Translated and annotated by Eliyahu Munk, volume 4, pages 1217–75. Jerusalem: Lambda Publishers, 2003.
- Jacob ben Asher (Baal Ha-Turim). Commentary on the Torah. Early 14th century. In, e.g., Baal Haturim Chumash: Shemos/Exodus. Translated by Eliyahu Touger; edited and annotated by Avie Gold, volume 2, pages 813–43. Brooklyn: Mesorah Publications, 2000.
- Isaac ben Moses Arama. Akedat Yizhak (The Binding of Isaac). Late 15th century. In, e.g., Yitzchak Arama. Akeydat Yitzchak: Commentary of Rabbi Yitzchak Arama on the Torah. Translated and condensed by Eliyahu Munk, volume 1, pages 458–71. New York, Lambda Publishers, 2001.
Moderno
- Isaac Abravanel. Commentary on the Torah. Italy, between 1492–1509. In, e.g., Abarbanel: Selected Commentaries on the Torah: Volume 2: Shemos/Exodus. Translated and annotated by Israel Lazar, pages 294–328. Brooklyn: CreateSpace, 2015.
- Abraham Saba. Ẓeror ha-Mor (Bundle of Myrrh). Fez, Morocco, circa 1500. In, e.g., Tzror Hamor: Torah Commentary by Rabbi Avraham Sabba. Translated and annotated by Eliyahu Munk, volume 3, pages 1101–22. Jerusalem, Lambda Publishers, 2008.
- Obadiah ben Jacob Sforno. Commentary on the Torah. Venice, 1567. In, e.g., Sforno: Commentary on the Torah. Translation and explanatory notes by Raphael Pelcovitz, pages 418–31. Brooklyn: Mesorah Publications, 1997.
- Moshe Alshich. Commentary on the Torah. Safed, circa 1593. In, e.g., Moshe Alshich. Midrash of Rabbi Moshe Alshich on the Torah. Translated and annotated by Eliyahu Munk, volume 2, pages 537–50. New York, Lambda Publishers, 2000.
- Shlomo Ephraim Luntschitz. Kli Yakar. Lublin, 1602. In, e.g., Kli Yakar: Shemos. Translated by Elihu Levine, volume 2, pages 164–224. Southfield, Michigan: Targum Press/Feldheim Publishers, 2007.
.jpg)
- Avraham Yehoshua Heschel. Commentaries on the Torah. Cracow, Poland, mid 17th century. Compiled as Chanukat HaTorah. Edited by Chanoch Henoch Erzohn. Piotrkow, Poland, 1900. In Avraham Yehoshua Heschel. Chanukas HaTorah: Mystical Insights of Rav Avraham Yehoshua Heschel on Chumash. Translated by Avraham Peretz Friedman, pages 184–88. Southfield, Michigan: Targum Press/Feldheim Publishers, 2004.
- Thomas Hobbes. Leviathan, 3:40; 4:45. England, 1651. Reprint edited by C. B. Macpherson, pages 503–04, 675–76. Harmondsworth, England: Penguin Classics, 1982.
- Edward Taylor. "18. Meditation. Heb. 13.10. Wee Have an Altar." In Preliminary Meditations: First Series. Cambridge, Massachusetts: Early 18th Century. In Harold Bloom. American Religious Poems, 21–22. New York: Library of America, 2006.
.crop.jpg)
- Chaim ibn Attar. Ohr ha-Chaim. Venice, 1742. In Chayim ben Attar. Or Hachayim: Commentary on the Torah. Translated by Eliyahu Munk, volume 2, pages 753–88. Brooklyn: Lambda Publishers, 1999.
- Yaakov Culi and Yitzchak Magriso. Me'am Lo'ez. Constantinople, 1746. In Jacob Culi and Yitzchak Magriso. The Torah Anthology: Me'am Lo'ez. Translated by Aryeh Kaplan, volume 9, pages 3–140. Jerusalem: Moznaim Publishing, 1990.
- Nachman of Breslov. Teachings. Bratslav, Ukraine, before 1811. In Rebbe Nachman's Torah: Breslov Insights into the Weekly Torah Reading: Exodus-Leviticus. Compiled by Chaim Kramer; edited by Y. Hall, pages 213–22. Jerusalem: Breslov Research Institute, 2011.
- Samson Raphael Hirsch. The Pentateuch: Exodus. Translated by Isaac Levy, volume 2, pages 427–509. Gateshead: Judaica Press, 2nd edition 1999. Originally published as Der Pentateuch uebersetzt und erklaert. Frankfurt, 1867–1878.
- M.D William Brown. The Tabernacle and Its Priests and Services: Described and Considered in Relation to Christ and the Church, With Numerous Illustrations. Edinburgh 1871. Reprinted Peabody, Massachusetts: Hendrickson Publishers, 1996.

- Samuel David Luzzatto (Shadal). Commentary on the Torah. Padua, 1871. In, e.g., Samuel David Luzzatto. Torah Commentary. Translated and annotated by Eliyahu Munk, volume 3, pages 848–57. New York: Lambda Publishers, 2012.
- Archibald R.S. Kennedy. "Tabernacle." In Dictionary of the Bible. Edited by James Hastings, John A. Selbie, John C. Lambert, and Shailer Mathews, volume 4, pages 653–68. Edinburgh, 1898–1904. Reprinted, e.g., Harrington, Delaware: Delmarva Publications, 2014.
- Yehudah Aryeh Leib Alter. Sefat Emet. Góra Kalwaria (Ger), Poland, before 1906. Excerpted in The Language of Truth: The Torah Commentary of Sefat Emet. Translated and interpreted by Arthur Green, pages 117–22. Philadelphia: Jewish Publication Society, 1998. Reprinted 2012.

- Hermann Cohen. Religion of Reason: Out of the Sources of Judaism. Translated with an introduction by Simon Kaplan; introductory essays by Leo Strauss, page 80. New York: Ungar, 1972. Reprinted Atlanta: Scholars Press, 1995. Originally published as Religion der Vernunft aus den Quellen des Judentums. Leipzig: Gustav Fock, 1919.
- Alexander Alan Steinbach. Sabbath Queen: Fifty-four Bible Talks to the Young Based on Each Portion of the Pentateuch, pages 57–60. New York: Behrman's Jewish Book House, 1936.
- Benno Jacob. The Second Book of the Bible: Exodus. London, 1940. Translated by Walter Jacob, pages 758–809. Hoboken, New Jersey: Ktav, 1992.
- Julian Morgenstern. "The Ark, the Ephod, and the ‘Tent of Meeting.’" Hebrew Union College Annual, volume 17 (1942–43): pages 153–266.

- Frank Moore Cross. "The Tabernacle." Biblical Archaeologist, volume 10 (1947): pages 45–68.
- Umberto Cassuto. A Commentary on the Book of Exodus. Jerusalem, 1951. Translated by Israel Abrahams, pages 317–68. Jerusalem: The Magnes Press, The Hebrew University, 1967.
- D.W. Gooding. The Account of the Tabernacle: Translation and Textual Problems of the Greek Exodus. Cambridge: Cambridge University Press, 1959. Reprinted 2009.
- Menachem Haran. "The Complex of Ritual Acts Performed inside the Tabernacle," Scripta Hierosolymitana, volume 8 (1961): pages 272–302.
- R. E. Clements. God and Temple. Oxford and Philadelphia: Fortress, 1965.
- Menachem Haran. "The Priestly Image of the Tabernacle." Hebrew Union College Annual, volume 36 (1965): pages 191–226.
- Baruch A. Levine. "The Descriptive Tabernacle Texts of the Pentateuch." Journal of the American Oriental Society, volume 85 (number 3) (July–September 1965): pages 307–18.

- Gerhard von Rad. "The Tent and the Ark." In The Problem of the Hexateuch and Other Essays, pages 103–24. New York: McGraw-Hill Book Company, 1966.
- Carol L. Meyers. The Tabernacle Menorah. Missoula, Montana: Scholars Press, 1976.
- Elie Munk. The Call of the Torah: An Anthology of Interpretation and Commentary on the Five Books of Moses. Translated by E.S. Mazer, volume 2, pages 362–91. Brooklyn: Mesorah Publications, 1995. Originally published as La Voix de la Thora. Paris: Fondation Samuel et Odette Levy, 1981.
- Marc A. Gellman. "A Tent of Dolphin Skins." In Gates to the New City: A Treasury of Modern Jewish Tales. Edited by Howard Schwartz, pages 173–74. New York: Avon, 1983. Reissue edition Northvale, New Jersey: Jason Aronson, 1991.
- Victor (Avigdor) Hurowitz. "The Priestly Account of Building the Tabernacle." Journal of the American Oriental Society, volume 105 (number 1) (January–March 1985): pages 21–30.
- Nahum M. Sarna. Exploring Exodus: The Origins of Biblical Israel, pages 190–215. 1986. Reprinted New York: Schocken Books, 1996.
- Richard Elliott Friedman. "A Brilliant Mistake" and "The Sacred Tent." In Who Wrote the Bible? pages 161–87. New York: Summit Books, 1987.
- Pinchas H. Peli. Torah Today: A Renewed Encounter with Scripture, pages 81–84. Washington, D.C.: B'nai B'rith Books, 1987.
- Gabriel Josipovici. "Building the Tabernacle." In The Book of God: A Response to the Bible, pages 90–107. New Haven: Yale University Press, 1988.
- Jon D. Levenson. "Cosmos and Microcosm." In Creation and the Persistence of Evil: The Jewish Drama of Divine Omnipotence, pages 78–99. San Francisco: Harper & Row, 1988.
- Craig R. Koester. Dwelling of God: The Tabernacle in the Old Testament, Intertestamental Jewish Literature, and the New Testament. Catholic Biblical Association of America, 1989.
- Mark S. Smith. The Early History of God: Yahweh and the Other Deities in Ancient Israel, pages 10, 101. New York: HarperSanFrancisco, 1990. (Exodus 25:22; 26–40).
- Harvey J. Fields. A Torah Commentary for Our Times: Volume II: Exodus and Leviticus, pages 61–68. New York: UAHC Press, 1991.
- Nahum M. Sarna. The JPS Torah Commentary: Exodus: The Traditional Hebrew Text with the New JPS Translation, pages 155–75. Philadelphia: Jewish Publication Society, 1991.
- Richard Elliott Friedman. "Tabernacle." in Anchor Bible Dictionary. Edited by David Noel Freedman, volume 6, pages 292–300. New York: Doubleday, 1992.
- Nehama Leibowitz. New Studies in Shemot (Exodus), volume 2, pages 459–507. Jerusalem: Haomanim Press, 1993. Reprinted as New Studies in the Weekly Parasha. Lambda Publishers, 2010.
- Walter Brueggemann. "The Book of Exodus." In The New Interpreter's Bible. Edited by Leander E. Keck, volume 1, pages 884–902. Nashville: Abingdon Press, 1994.
- Judith S. Antonelli. "The Tabernacle." In In the Image of God: A Feminist Commentary on the Torah, pages 203–12. Northvale, New Jersey: Jason Aronson, 1995.
- Victor Avigdor Hurowitz. "The Form and Fate of the Tabernacle: Reflections on a Recent Proposal." The Jewish Quarterly Review, volume 86 (number 1/2) (July–October 1995): pages 127–51.

- Ellen Frankel. "Terumah: The Image of God." In The Five Books of Miriam: A Woman's Commentary on the Torah, pages 130–32. New York: G. P. Putnam's Sons, 1996.
- W. Gunther Plaut. The Haftarah Commentary, pages 187–94. New York: UAHC Press, 1996.
- Sorel Goldberg Loeb and Barbara Binder Kadden. Teaching Torah: A Treasury of Insights and Activities, pages 128–33. Denver: A.R.E. Publishing, 1997.
- Susan Freeman. Teaching Jewish Virtues: Sacred Sources and Arts Activities, pages 165–78. Springfield, New Jersey: A.R.E. Publishing, 1999. (Exodus 25:1–8).
- Stephanie Dalley. “Hebrew tahaš, Akkadian duhšu, Faience and Beadwork.” Journal of Semitic Studies, volume 45 (numer 1) 2000: pages 1–19.
- Exodus to Deuteronomy: A Feminist Companion to the Bible (Second Series). Edited by Athalya Brenner, page 34, 38. Sheffield: Sheffield Academic Press, 2000.
- Daniel E. Fleming. [Stable URL: https://www.jstor.org/stable/1585490 “Mari’s Large Public Tent and the Priestly Tent Sanctuary.”] Vetus Testamentum, volume 50 (number 4) (October 2000): pages 484–98.
- Sharon L. Sobel. "Community as Sacred Space." In The Women's Torah Commentary: New Insights from Women Rabbis on the 54 Weekly Torah Portions. Edited by Elyse Goldstein, pages 154–59. Woodstock, Vermont: Jewish Lights Publishing, 2000.
- Martin R. Hauge. The Descent from the Mountain: Narrative Patterns in Exodus 19–40. Sheffield: Journal for the Study of the Old Testament Press, 2001.
- Avivah Gottlieb Zornberg. The Particulars of Rapture: Reflections on Exodus, pages 315–50. New York: Doubleday, 2001.
- Lainie Blum Cogan and Judy Weiss. Teaching Haftarah: Background, Insights, and Strategies, pages 127–37. Denver: A.R.E. Publishing, 2002.
- Michael Fishbane. The JPS Bible Commentary: Haftarot, pages 120–23. Philadelphia: Jewish Publication Society, 2002.
- Alan Lew. This Is Real and You Are Completely Unprepared: The Days of Awe as a Journey of Transformation, pages 53–55. Boston: Little, Brown and Company, 2003.
- Robert Alter. The Five Books of Moses: A Translation with Commentary, pages 460–71. New York: W.W. Norton & Co., 2004.
- Stephen G. Rosenberg. "The Jewish Temple at Elephantine." Near Eastern Archaeology, volume 67 (number 1) (March 2004): pages 4–13.
- Jeffrey H. Tigay. "Exodus." In The Jewish Study Bible. Edited by Adele Berlin and Marc Zvi Brettler, pages 163–71. New York: Oxford University Press, 2004.
- Professors on the Parashah: Studies on the Weekly Torah Reading Edited by Leib Moscovitz, pages 135–41. Jerusalem: Urim Publications, 2005.
- W. Gunther Plaut. The Torah: A Modern Commentary: Revised Edition. Revised edition edited by David E.S. Stern, pages 543–60. New York: Union for Reform Judaism, 2006.
- William H.C. Propp. Exodus 19–40, volume 2A, pages 310–428, 495–528. New York: Anchor Bible, 2006.
- Suzanne A. Brody. "Tabernacle Kit #40." In Dancing in the White Spaces: The Yearly Torah Cycle and More Poems, page 81. Shelbyville, Kentucky: Wasteland Press, 2007.

- James L. Kugel. How To Read the Bible: A Guide to Scripture, Then and Now, pages 285, 288–89, 486, 524. New York: Free Press, 2007.
- Kenton L. Sparks. “‘Enūma Elish’ and Priestly Mimesis: Elite Emulation in Nascent Judaism.” Journal of Biblical Literature, volume 126 (2007): 637–42. (“Priestly Mimesis in the Tabernacle Narrative (Exodus 25–40)”).
- The Mishkan: The Tabernacle: Its Structure, Its Vessels, and the Kohen’s Vestments. Brooklyn: Artscroll, 2008. (multimedia representation).
- The Torah: A Women's Commentary. Edited by Tamara Cohn Eskenazi and Andrea L. Weiss, pages 451–72. New York: URJ Press, 2008.
- Thomas B. Dozeman. Commentary on Exodus, pages 569–632. Grand Rapids, Michigan: William B. Eerdmans Publishing Company, 2009.
- Mark George. "Building an Inclusive Social Space: Parashat Terumah (Exodus 25:1–27:19)." In Torah Queeries: Weekly Commentaries on the Hebrew Bible. Edited by Gregg Drinkwater, Joshua Lesser, and David Shneer; foreword by Judith Plaskow, pages 102–05. New York: New York University Press, 2009.
- Reuven Hammer. Entering Torah: Prefaces to the Weekly Torah Portion, pages 113–17. New York: Gefen Publishing House, 2009.
- Rebecca G.S. Idestrom. “Echoes of the Book of Exodus in Ezekiel.” Journal for the Study of the Old Testament, volume 33 (number 4) (June 2009): pages 489–510. (Motifs from Exodus found in Ezekiel, including the call narrative, divine encounters, captivity, signs, plagues, judgment, redemption, tabernacle/temple, are considered.).
- Bruce Wells. "Exodus." In Zondervan Illustrated Bible Backgrounds Commentary. Edited by John H. Walton, volume 1, pages 247–53. Grand Rapids, Michigan: Zondervan, 2009.
- Carol Meyers. "Exodus." In The New Oxford Annotated Bible: New Revised Standard Version With The Apocrypha: An Ecumenical Study Bible. Edited by Michael D. Coogan, Marc Z. Brettler, Carol A. Newsom, and Pheme Perkins, pages 117–22. New York: Oxford University Press, Revised 4th Edition 2010.
- Jonathan Sacks. Covenant & Conversation: A Weekly Reading of the Jewish Bible: Exodus: The Book of Redemption, pages 187–215. Jerusalem: Maggid Books, 2010.
- Avrohom Biderman. The Mishkan: The Tabernacle: Its Structure and its Sacred Vessels. Brooklyn: Artscroll, 2011.
- James W. Watts. "Aaron and the Golden Calf in the Rhetoric of the Pentateuch." Journal of Biblical Literature, volume 130 (number 3) (fall 2011): pages 417–30.

- Shmuel Herzfeld. "Learning To Give." In Fifty-Four Pick Up: Fifteen-Minute Inspirational Torah Lessons, pages 112–16. Jerusalem: Gefen Publishing House, 2012.
- Torah MiEtzion: New Readings in Tanach: Shemot. Edited by Ezra Bick and Yaakov Beasley, pages 339–75. Jerusalem: Maggid Books, 2012.
- Michael B. Hundley. Gods in Dwellings: Temples and Divine Presence in the Ancient Near East. Atlanta: Society of Biblical Literature, 2013.
- Dov Linzer. "Just the People of the Book, Really?" The Jerusalem Report, volume 24 (number 22) (February 10, 2014): page 48.
- Jonathan Sacks. Lessons in Leadership: A Weekly Reading of the Jewish Bible, pages 93–97. New Milford, Connecticut: Maggid Books, 2015.
- Raanan Eichler. "The Poles of the Ark: On the Ins and Outs of a Textual Contradiction." Journal of Biblical Literature, volume 135, number 4 (Winter 2016): pages 733–41.
- Nathan Mastnjak. “Hebrew taḥaš and the West Semitic Tent Tradition.” Vetus Testamentum, volume 66 (November 2016): pages 1–9.
- Jonathan Sacks. Essays on Ethics: A Weekly Reading of the Jewish Bible, pages 117–22. New Milford, Connecticut: Maggid Books, 2016.
- Kenneth Seeskin. Thinking about the Torah: A Philosopher Reads the Bible, pages 85–100. Philadelphia: The Jewish Publication Society, 2016.
- Shai Held. The Heart of Torah, Volume 1: Essays on the Weekly Torah Portion: Genesis and Exodus, pages 184–93. Philadelphia: Jewish Publication Society, 2017.
- Steven Levy and Sarah Levy. The JPS Rashi Discussion Torah Commentary, pages 59–61. Philadelphia: Jewish Publication Society, 2017.
Rabínico clásico
- Mishnah: Yoma 5:1; Sanhedrin 9:6; Avot 4:13; Menachot 11:4–7. Land of Israel, circa 200 C.E. In, e.g., The Mishnah: A New Translation. Translated by Jacob Neusner, pages 272, 604, 757–58. New Haven: Yale University Press, 1988.
- Tosefta: Shabbat 8:23; Eruvin 4:9; Shekalim 3:13–14; Kippurim (Yoma) 2:12; Sanhedrin 4:8; Menachot 6:11, 7:7, 11:6, 12. Land of Israel, circa 250 C.E. In, e.g., The Tosefta: Translated from the Hebrew, with a New Introduction. Translated by Jacob Neusner, volume 1, pages 384, 444, 535–36, 553; volume 2, pages 1159, 1431, 1434–35, 1457, 1458–59. Peabody, Massachusetts: Hendrickson Publishers, 2002.
- Jerusalem Talmud: Terumot 1a–b; Shabbat 5b, 20b, 63a, 85a, 94a; Shekalim 2b, 44a–45a, 47b–48a, 59a–b; Yoma 2a, 4a, 31b; Sukkah 3a–b; Megillah 12b; Sotah 39b–40a; Sanhedrin 10a; Shevuot 13b; Avodah Zarah 14b; Horayot 18b. Tiberias, Land of Israel, circa 400 CE. In, e.g., Talmud Yerushalmi. Edited by Chaim Malinowitz, Yisroel Simcha Schorr, and Mordechai Marcus, volumes 7, 13–15, 20–22, 26, 37, 44, 46–47, 49. Brooklyn: Mesorah Publications, 2008–2020. And in, e.g., The Jerusalem Talmud: A Translation and Commentary. Edited by Jacob Neusner and translated by Jacob Neusner, Tzvee Zahavy, B. Barry Levy, and Edward Goldman. Peabody, Massachusetts: Hendrickson Publishers, 2009.
- Genesis Rabbah 3:9; 5:7; 8:1; 16:2; 17:6; 66:2; 80:6; 91:9; 94:4. Land of Israel, 5th Century. In, e.g., Midrash Rabbah: Genesis. Translated by Harry Freedman and Maurice Simon, volume 1, pages 26, 38, 54, 125, 137; volume 2, pages 601, 739, 845, 871. London: Soncino Press, 1939.
.jpg)
- Midrash Tanhuma Terumah. 5th–10th centuries. In, e.g., The Metsudah Midrash Tanchuma: Shemos II. Translated and annotated by Avrohom Davis; edited by Yaakov Y.H. Pupko, volume 4 (Shemos volume 2), pages 101–44. Monsey, New York: Eastern Book Press, 2004.
- Babylonian Talmud: Berakhot 8b, 30a, 55a; Shabbat 28a, 48a, 91a, 92a, 98b, 133b; Eruvin 2a–b, 4a–b, 23b, 58a; Pesachim 76b; Yoma 3b, 33b, 38a, 39a–b, 51b–52b, 54a–b, 71b, 72b; Sukkah 4b–5b, 7b, 45b, 49a, 50b; Rosh Hashanah 31a; Megillah 10b; Chagigah 13b, 26b; Yevamot 4b, 81b; Ketubot 62b, 106a; Nedarim 38a; Bava Kamma 110b; Bava Batra 12b, 14a–b, 67a, 98b–99a; Sanhedrin 7a, 16b, 22a, 29a, 39a, 81b; Makkot 15a, 22a; Shevuot 14b–15a, 16b; Avodah Zarah 9b, 23b–24b; Zevachim 53a, 59b–60a, 62a–b, 82b, 85b, 96a, 119b; Menachot 27b–29a, 42b, 44a, 88b, 96a, 97a, 98a–b, 99b; Chullin 133b; Bekhorot 44a; Temurah 31b; Niddah 26b. Sasanian Empire, 6th Century. In, e.g., Talmud Bavli. Edited by Yisroel Simcha Schorr, Chaim Malinowitz, and Mordechai Marcus, 72 volumes. Brooklyn: Mesorah Publications, 2006.
Enlaces externos

Textos
Commentarios
- Academy for Jewish Religion, California
- Academy for Jewish Religion, New York
- Aish.com Archivado el 17 de marzo de 2013 en Wayback Machine.
- American Jewish University—Ziegler School of Rabbinic Studies
- Chabad.org
- Jewish Theological Seminary
- MyJewishLearning.com
- Orthodox Union
- Pardes from Jerusalem
- Reconstructing Judaism
- Union for Reform Judaism
- United Synagogue of Conservative Judaism
- Yeshiva University