Vía Cornelia

Vía Cornelia (en latín: Via Cornelia) es una antigua calzada de la ciudad de Roma que habría ido en dirección este a oeste cercana a la pared norte del Circo de Nerón en la zona que actualmente estaría ubicada el complejo de la Ciudad del Vaticano. Su ubicación está estrechamente relacionada con la Vía Aurelia y a la Vía Triumphalis.[1]

Historia

Entre los arqueólogos, existe la creencia que la vía Cornelia no existió, y que su nombre es una mutilación del nombre Vía Aurelia. Esta conjetura se deriva del hecho de que la vía Cornelia sólo es mencionada por testigos e itinerarios de los siglos VII y VIII, misma época en que la población de Roma se redujo de aproximadamente un millón y medio de habitantes a sesenta mil, muchos de ellos pobres y con apenas conocimiento del latín. Estos ciudadanos no habrían tenido idea de la topografía de la época imperial. En contra de lo anterior, documentos fidedignos del siglo IV mencionan que San Pedro fue enterrado a lo largo de la Vía Triumphalis.[2]

En 1924, una excavación en Antioquía de Pisidia descubrió una piedra con inscripciones datadas aproximadamente hacia 93 d. C., y que ofrece una fuerte evidencia de que la vía Cornelia habría existido antes del reinado del emperador Constantino I. La inscripción en la piedra menciona un comandante de la octava legión Augusta que, Vespasiano y Tito, fue supervisor de la vía Aurelia y de la vía Cornelia.[3]

Localización

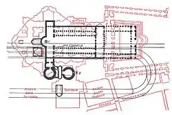
Topografía anteriormente aceptada de la ubicación de vía Cornelia. Investigaciones posteriores demostraron su inexactitud histórica.

Anteriormente, se creyó que la pared sur de la Basílica de San Pedro se encontraba precisamente sobre las paredes norte del Circo de Nerón y que una calle corría por el norte del circo, bajo la actual basílica. Sin embargo, las excavaciones en el área demostraron la falsedad de lo anterior: en 1936, investigaciones en la Plaza de San Pedro, descubrieron rastros de la vía Cornelia posteriores a la época de Constantino. A su vez, un fragmento de la carretera pavimentada preconstantiniana, a lo largo de la anterior alineación, se encontraron en la esquina suroeste de la basílica.

Actualmente se cree que la vía Cornelia recorría en dirección este a oeste, se levantaba suavamente cerca de la fuente más meridional de la Plaza de San Pedro, y poco antes de ese punto, la vía Aurelia se bifurcaba de ella y se dirigía al suroeste; mientras que la vía Cornelia continuaba hacia el oeste, al sur de la fachada de la basílica, eventualmente hacia la ciudad de Caere.

Se cree que la vía Triumphalis nacía en el Puente de Nerón y se dirigía hacia la Plaza de San Pedro, para luego virar hacia noroeste hacia la zona comercial de la Ciudad del Vaticano. Al día del hoy, la Via della Conciliazione sigue aproximadamente la misma ruta que la vía Cornelia realizaba.[4]​ Recientemente, el Vaticano ha abierto al público las excavaciones con los restos de la necrópolis de Via Triumphalis, que había sido descubierta durante la década de 1950, y que corresponde a un extenso cementerio romano.

Función

Es posible, que la vía Cornelia fuera construida por Calígula para mejorar el enfoque de los jardines imperiales Horti Agrippinae. Por lo tanto, pudo haber formado el límite norte de los jardines de Nerón en aquella época, conectándolos con el circo y una doble hilera de mausoleos (necrópolis vaticana).[5]

Referencias

  1. O'Callaghan, Roger T. "Recent Excavations under the Vatican Crypts." The Biblical Archaeologist, Vol. 12, No.1.(Feb., 1949)
  2. L. E. Hudec "Recent Excavations under St. Peter's Basilica in Rome." Journal of Bible and Religion, Vol. 20, No. 1. (Jan., 1952)
  3. Robinson, David M. "A New Latin Economic Edict from Pisidian Antioch" Transactions and Proceedings of the American Philological Association, Vol. 55. (1924)
  4. Townend, Gavind "Archaeological Notes: The Circus of Nero and the Vatican Excavations" American Journal of Archaeology, Vol. 62, No. 2. (Apr., 1958)
  5. J. M. C. Toynbee "The Shrine of St. Peter and Its Setting" The Journal of Roman Studies, Vol. 43. (1953)