Riego en conos aluviales
Conos aluviales (conos de deyección, abanicos aluviales) ocurren al pie de montañas y son testigos de avenidas de ríos. Los ríos, teniendo un flujo veloz en la montaña, llevan sedimentos. Después de perder la velocidad al entrar en el área plano al pie de la montaña, las aguas depositan los sedimentos creando un cuerpo de tierra en forma de cono. Los sedimentos gruesos, como la grava y la arena se depositan primeramente en la planicie cerca de la salida del río de la montaña. Los sedimentos más finos, consistiendo de limo y arcilla se consolidan más lejos, al base del cono.
Al entrar en la llanura, y forzado por las deposiciones de los sedimentos, el río se divide en numerosas ramas que se desplieguen aguas abajo en forma de abanico. Los conos contienen reservorios considerables de agua subterránea rellenados anualmente por la infiltración del agua de las ramas del río hacia el subsuelo que normalmente es bien permeable y se obtienen acuíferos importantes.
Las áreas montañosas reciben más precipitación que las llanuras y constituyen una cuenca de drenaje proveyendo un recurso de agua. Por esto, los conos aluviales en las regiones áridos y semiáridos se utilizan frecuentemente para el riego de cultivos agrícolas. Los conos muestran un aspecto verde en un ambiente desértico.
Cuando muy grande y plano, el cono también se llama delta interior.
Los métodos de riego difieren de acuerdo al régimen hidrológico del río, la forma del abanico, y los recursos naturales disponibles.
Clases de conos aluviales
Los siguientes conos aluviales se revisan en orden de incremento de rendimiento de agua:
- Los conos aluviales a lo largo de llanuras de ríos cerca de Khuzdar, Baluchistán, Pakistán (figura 1).
- Estos conos aluviales reciben el agua de cuencas pequeñas en regiones de montaña baja. Son relativamente pequeños, inclinados, y sujetos a inundaciones irregulares y repentinos.
- Este cono de tamaño más grande recibe las aguas del río Hableh Rud con una cuenca importante en los Montes Elburz
- El cono aluvial de 'Punata al este de Cochabamba, Bolivia (figura 3).
- Este cono bien grande recibe las aguas del río Paracaya que origina en la Cordillera de los Andes
- Este cono enorme y plano recibe una cantidad grande de agua desde Angola. El caudal entrando demora seis meses antes de llegar a la base del delta. El cono es tan extenso y plano que a menudo se llama delta interior.
- Vistas aéreas desde el espacio de conos aluviales
-
Fig. 1. Un cono relativamente pequeño e inclinado cerca de Khuzdar, Baluchistán, Pakistán.
-
Fig. 2. El cono mayor de Garmsar, cerca de Tehéran, Irán, al pie de la sierra Alburz. -
Fig. 3. El cono grande de Punata cerca de Cochabamba, Bolivia en la cordillera de los Andes. -
Fig. 4. El cono muy extenso y plano del delta interior de Okavango cerca de Maun, Botswana.
Estudios de casos
Khuzdar
La lluvia promedia anual en Baluchistan varía entre 200 y 400 mm dependiente de la altitud, y la mayor parte cae en el invierno (noviembre a marzo). Tradicionalmente, en las tierras con gradiente, los campesinos construyeren diques de tierra a lo largo de las curvas de nivel (isolíneas) para captar el agua de escorrentía (Fig. K1). Este método de recolección de agua (localmente llamado khushkaba) suplía agua adicional para los cultivos sembrados justamente arriba del dique, donde el agua captada se infiltra en el suelo suministrando extra humedad en el suelo para suplementar la lluvia escasa.
En conos aluviales, las avenidas proveyeron aún más agua. Las avenidas desviadas de los arroyos se retuvieron detrás de los diques empleados en el sistema khushkaba.[1] Este método de intercepción de avenidas se llama localmente sailaba (Fig. K2). El sistema se combina con la extracción de agua subterránea mediante galerías excavadas, localmente llamadas karezes y mejor conocidas como viajes de agua.[2] Los karezes facilitan la agricultura regada durante todo el año (Fig. K3).
Aunque los sistemas sailaba y karez ocupan alrededor de 20% de las tierras bajo agricultura, su producción es mayor de 40% de la producción total.
Es un desarrollo moderno de instalar pozos profundos bombeados para explotar el agua subterránea de los acuíferos más eficazmente que con los karezes. Los propietarios de los pozos son emprendedores ajenos y la población original corre el riesgo de perder el agua de sus karezes cuando los pozos disminuyen el nivel del agua subterránea por debajo de los karezes con la consecuencia que estos se secan.[3]
- Ilustraciones de conos aluviales cerca de Khuzdar
-
Fig. K1. Dique de tierra para retener la escorrentía a fin de practicar la agricultura.
-
Fig. K2. Conos aluviales con sailabas y karezes para el manejo de agua en la agricultura.
-
Fig. K3. Riego permanente de los cultivos basado en el sistema de karezes.
-
Fig. K4. Interferencia hidrológica de un moderno pozo profundo con bomba en el funcionamiento del karez.
Garmsar
El sistema de riego en el cono aluvial de Garmsar es bien desarrollado (Fig. G1), con canales de riego revestidos incluido el grande canal de cinturón traversando por el centro del cono.[4]
El área de cultivos en cada estación climática abarca a 30% y 70% del área se queda en barbecho. Los cultivos de invierno mayormente son el trigo y la cebada, mientras que los cultivos de verano son el algodón y el melón. Sin embargo la siembra de los cultivos nuevos se practica antes de cosechar el cultivo previo, y por ello existen épocas con 60% de ocupación de la tierra. Los suelos en barbecho están en rotación continua con los suelos cultivados a través de los años de manera que no hay tierras permanentemente sin cultivo excepto en los bordos de la base del cono aluvial donde se encuentran suelos salinos.[5]
Un balance anual estimado de aguas se muestra en Fig. G2. Se puede notar que el abastecimiento de las pérdidas del riego hacia el acuífero juega un papel importante. En la estación seca, el agua subterránea está usada para el regadío por medio de pozos profundos bombeados. Un sección transversal de la situación del agua subterránea y el acuífero se ve en Fig. G3.
En el manejo de riego, los derechos de agua están basados en sang, una medida de flujo continuo de unos 10 l/s, pero en la práctica la medida varía de 10 a más de 15 l/s. El agua se entrega a unos 100 unidades terciarias (normalmente un pueblo o una comunidad) en las cuales el agua se divide en rotaciones de 12 días entre los campesinos regantes cada uno de quienes tiene el derecho de recibir el número de sanges que le corresponde durante un número fijo de horas en cada ciclo de rotación. Cada comunidad o pueblo también es una asociación de usuarios del agua de riego, que tiene la responsabilidad de distribuir el agua en la unidad terciaria justamente y mantener el sistema de los canales terciarios.

La distribución del agua de riego superficial a nivel secundario, es decir al nivel de distribución del agua a las comunidades, está a manos de la Autoridad de Aguas de Garmsar y fundado en los derechos totales de agua de todas las comunidades, convenios verbales y comunicaciones con los usuarios de agua en ausencia de un manual escrito. La Autoridad también mantiene los canales de riego y las obras hidráulicas a nivel secundario. Las obras pueden ser rediseñadas ajustándolas de acuerdo a las necesidades comunicadas verbalmente. La distribución justa del caudal anual del río no es cosa simple porque esto es bien variable con un promedio por segundo en el rango de 5 a 20 m³/s.
Los pozos profundos son propiedad privada. El barrenar de los pozos está sujeto a una licencia, pero la adjudicación de licencias se ha parado por el temor de sobreexplotación del acuífero porque no hay reglas de operación de las bombas en la licencia.
En los bordos del cono aluvial la tabla de agua subterránea es poco profundo porque la capacidad de transporte del acuífero se disminuye por dos razones: (1) el gradiente hidráulico se reduce cuando el cono aluvial inclinado se acerca al llano desértico, y (2) el espesor y la conductividad hidráulica se reducen por la mayor presencia de partículas finas en los suelos y la textura más arcillosa. Las zanjas de drenaje necesarias para el control de la profundidad del freático no son mantenidos por la Autoridad de las aguas, porque se ubican afuera del perímetro regado oficial, sino por los grupos de campesinos que se asentaron allá. Para sus recursos del agua de riego estos grupos dependen de (1) avenidas eventuales del río , (2) aguas desperdiciadas del sistema oficial de riego, y (3) pozos profundos.
Con fines de estabilizar la agricultura en los bordos del cono aluvial, que son amenazados por la salinización de los suelos, se recomienda el método de cultivación en fajas (Fig. G4). Con este método se tienen fajas no cultivadas al lado de las fajas en regadío y la salinización se dirige a las fajas sin riego. El método también se llama drenaje por sacrificio.
- Ilustraciones del cono aluvial de Garmsar
-
Fig. G1. Mapa del área de Garmsar con canales de riego
-
Fig. G2. La irrigación y los balances de agua, promedios anuales estimados, en MCM
-
Fig. G3. Sección transversal del acuífero mostrando las condiciones hidrogeológicas
-
Fig. G4. Principio de la cultivación por fajas y sacrificio de fajas no regadas a donde se dirige la salinización de los suelos.
Punata
El cono aluvial de Punata está ubicada en el Departamento de Cochabamba, Bolivia. La región de Punata y la parte superior del Valle Alto, a una altitud de 2800 m, recibe en el verano una lluvia de 400 a 450 mm, comenzando en la segunda mitad de noviembre y terminando en marzo. El maíz es el cultivo de alimento más importante, seguido por la papa. El forraje principal es el alfalfa, seguido por paja del maíz (Fig.P1). Tradicionalmente estos cultivos se han podido plantar exitosamente gracias a la existencia de recursos de agua adicionales como la escorrentía, las avenidas, flujo de base del río, y agua subterránea. En los meses de invierno, la cultivación está restringida por la ocurrencia de heladas nocturnas, especialmente en junio y julio, y por la ausencia de lluvias.[6]
En 1988, la población rural total se estimaba a 25 000 consistiendo de 4 000 familias de las cuales 3680 eran familias campesinas. Las fincas son chicas con un tamaño promedio de 1.3 ha del cual 1.0 ha está cultivada. El tamaño modal es solamente 0.7 ha, lo que indica que hay algunas propiedades relativamente muy grandes.
Las avenidas fluviales en la estación lluviosa pueden ser utilizadas para el riego por cada uno quien lo desea. No obstante, al fin de la estación de lluviosa, cuando las avenidas receden, el flujo del río sólo puede ser utilizado por los privilegiados en el riego de rotación porque ellos, o sus ancestros, han obtenido un título para su uso contribuyendo con su labor en la ejecución de las obras pertenecientes (el sistema mita). Hacia el mes de mayo el flujo básico del río se vuelve muy reducido y se arranca un período de secanía que dura hasta noviembre.
La irrigación se considera deseable para adelantar la estación de cultivos a agosto/septiembre obteniéndose una cosecha temprana. La cosecha temprana tiene un alto valor de mercado y reduce los requerimientos picos del labor. Además, el riego temprano reduce el riesgo de falla de los cultivos y permite la diversificación de los productos agrícolas. Sin embargo algunas comunidades campesinas han desistido en el pasado del esfuerzo extra necesario para obtener derechos de agua de riego adicional y parecieron contentas con cultivos de lluvia no más.
A escala modesta se practica el regadío por agua subterránea utilizando pozos profundos.
Con el objetivo de satisfacer las necesidades de la mayoría de los campesinos que deseaban fuertemente disponer de agua de riego adicional, se inició a partir de 1970 el Proyecto Punata-Tiraque. El proyecto incluye la construcción de un sistema complicado de presas, embalses, y reservorios en la montaña colindante (Fig. P2).
El área bruto de Punata se estima a 4 600 ha del cual 90% puede ser usado para la agricultura o la ganadería. En 1970 unos 1 150 ha recibieron agua de riego, sea agua superficial derivada de la presas (sea la Laguna Robada o Lluska Kocha), o agua bombeada de los 16 pozos profundos sirviendo unos 350 ha. Además hay unos cientos de ha que ocasionalmente reciben riego por avenida.
El método tradicional de riego está basada en el manejo de caudales grandes por finca (golpes) a largos intervalos. Las bocatomas en el río Pucara Mayu, al lugar donde el río entra en el cono aluvial de Punata, dejan pasar de modo alternado las aguas de cada uno de los sistemas de reservorios (Laguna Robada y Lluska Kocha/Muyu Loma) y el agua de escorrentía natural. El nuevo sistema, por otro lado, está diseñado para flujos menores con intervalos de rotación más cortos funcionando continuamente para toda el área de manera que ya no es preciso de separar los varios recursos de agua. El sistema cubre un área mucho mayor que el sistema tradicional e incorpora las asociaciones de campesinos que utilizaban el riego por golpe (que parcialmente pueden ser socios de las asociaciones del flujo de mita también), y las asociaciones de sistemas de pozos profundos (que asimismo pueden tener miembros que también son miembros de las otras asociaciones a la vez), tanto como las personas que no tenían anteriores derechos de agua.[7]
Entonces, el nuevo sistema hace inevitable el reemplazo de los derechos de agua tradicionales por un mecanismo totalmente diferente de derechos y deberes. Puesto que los límites de las nuevas zonas de riego no corresponden con los límites de los Comités de Riego existentes y dispersos (Fig. P3), no sólo el manejo de agua sino también la estructura de la organizaciones deben ajustarse a la situación nueva.
- Ilustraciones del cono aluvial de Punata
-
Fig. P1. Un calendario típico de cultivación en una finca regada en el área de Punata
-
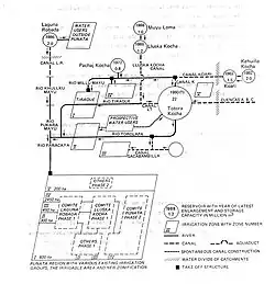
Fig. P2. Los perímetros regados en Punata con un sistema complejo de reservorios, zonas de riego, y asociaciones de regantes (Comités)
-
Fig. P3. Esquema de las zonas de riego con los recursos de agua y la ubicación de los pozos profundos
-
Fig. P4. La permeabilidad y la transmissividad del acuífero se disminuyen hacia el bordo del cono aluvial
Okavango

Características
El delta interior de Okavango en el noroeste de Botsuana tiene la forma de una mano gigantesca con los dedos desplegados (véase el mapa). El Río Okavango, que origina en Angola, entra el delta en su ápex. El río trae en promedio 10 000 millones m³ de agua por año al delta. El caudal es más elevado en los meses de marzo y abril (alrededor de 1000 m³/s en promedio) y más bajo en noviembre (100 a 200 m³/s).
El enorme volumen de agua que se disperse en el delta es absorbido casi por completo en las ciénagas permanentes y temporarias (las últimas se llaman localmente molapos). Existe una vegetación rica y diversa en los pantanos lo que crea un ambiente ideal para numerosos especies de animales. La fauna rica encuentra su hábitat en los miles de islas entre los pantanos.
La poca agua que excede la capacidad de retención del yermo húmedo se drena de julio a noviembre por los dedos de la mano extendida. Demora más de seis meses que la descarga máxima del río se manifiesta en la base del delta, cerca de Maun. Aquí el agua enfrenta una barrera: la falla geológica de Thamalakane (véase el mapa), donde las arenas del desierto Kalahari suben 10 m. Al pie de la falla el río Thamalakane colecciona las aguas (sólo 5% del flujo que entra en el delta) y los lleva casi sin pendiente al río Boteti, que fluye por una abertura en la falla. Al final, las aguas restantes se evaporan en los salares de Makgadikgadi, más de 200 km al este.
Aunque la precipitación anual en el delta es relativamente baja (en promedio 500 mm, que caen mayormente en los meses de diciembre a marzo), ella contribuye un volumen de agua igual a 50% de flujo entrante del río Okavango. La precipitación anual y su distribución en el tiempo es tan errático como el caudal del río mismo.
El río Okavango transporta una gran cantidad de arena y otros sedimentos al delta. La masa de los sedimentos traídos es alrededor de 2 millones toneladas por año. Sales también entran en el delta en forma disuelta. La concentración salina del agua es más o menos 200 mg/l, un valor bien bajo. El peso total de sales importados también asciende a 2 millones de toneladas al año.[8]
Los sedimentos y sales importados por el río Okavango se depositan en el delta. Junto con la vegetación los sedimentos depositados ofrecen resistencia al flujo de agua, razón por la cual los mayores cursos de agua zigzagueaban en la historia desde el pulgar hacia el dedo auricular de la mano del delta. Movimientos tectónicos también contribuyeron a este fenómeno. En el presente, el dedo cordial, del cual desciende el río Boro, provee el mayor pase de agua.
Muchas de las islas están bordeados por árboles ribereños, pero en el centro las islas son desnudas: síntomas de salinidad del suelo (véase la fotografiá del delta).
El desierto Kalahari coopera con el río Okavango formando los suelos arenosos dominantes en el delta. El desierto utiliza la fuerza del viento como vector para depositar su porción de arena fina.
Las características del delta de Okavango han conducido a una densidad baja de la población, de modo que la situación natural apenas ha sido turbado por humanos. Además, la población ha tenido más interés en la caza y la ganadería que en la agricultura así que el desarrollo agrícola ha sido limitado.
Las tierras arables en los bordos sureste del delta, que se secan después de que las inundaciones han retrocedido (estos terrenos se llaman molapos), tienen a menudo una capa arenosa en el suelo superior. En las depresiones, la capa superior puede ser delgada o ausente, exponiendo un suelo de arcilla pesada.
Desarrollos
En 1987/79, después de cuatro años de avenidas altas y prolongadas que imposibilitaron de cultivar los molapos, una sequía coincidió con un estallido de fiebre aftosa en el ganado, dejando la población local en un estado de emergencia. Esto resultó en dos acciones importantes:
- La primera acción ocurrió de 1979 a 1981 cuando, como parte de un programa de ayuda contra el hambre ("Alimentos por Trabajo"), la FAO organizó obras de trabajo intensivo rehabilitando los diques de control de inundaciones que fueron construidos por la población local para proteger los cultivos contra la sumersión de las tierras agrícolas por tormentas. También se construyeron algunos nuevos diques.
- La segunda acción fue la construcción del Cerco Búfalo (véase el mapa), que separa los bordes del delta de su interior para prevenir la extensión de las enfermedades del ganado bovino. Completado en 1983, este cerco aumentó la importancia de los molapos que quedaron afuera. Especialmente en los años en que las lluvias tardaban, el crecimiento hierbas en los molapos después de la recesión de las inundaciones provee prácticamente el único recurso de pastoreo en la región, incluyendo el pastoreo de los rebaños en las áreas lejanas del delta. Con los molapos dentro del cerco bovino excluidos al ganado, la intensidad de pastoreo en los molapos afuera del cerco crecía considerablemente.[9]
El MDP
El proyecto de desarrollo de los molapos (en inglés: Molapo Development Project, MDP) comenzó sus operaciones en 1983. El proyecto se dirigió al incremento de la producción agraria en áreas piloto protegiéndolos contra inundaciones prologadas mediante diques con compuertas (véase el foto). Al momento en que haya entrado suficiente agua en el molapo, la compuerta se puede cerrar y el nivel se baja por la evaporación y la infiltración en el suelo, y los cultivos pueden iniciarse mientras el nivel de agua afuera de la compuerta siempre es alto. El proyecto era una respuesta a las inundaciones altas y prolongadas de los años 1974-1978, cuando la agricultura en los molapos no era posible. Sin embargo, en los años siguientes la avenidas eran insuficientes y las aguas no llegaron a los molapos afuera del cerco bovino, y la producción de cultivos sufría nuevamente, esta vez de las condiciones secas. Por esto se decidió enfocarse también en la producción agraria estable con alimentación de agua netamente por las lluvias. La figura de las hidrogramas muestra que la producción agrícola no era posible en 60% de los años observados debido a inundaciones altas y prolongadas. La figura también muestra como medidas de control de inundaciones pueden ayudar en la recesión oportuna de las avenidas en el molapo. Después de haber permitido que la avenida entre en el molapo se cierra la compuerta y la recesión de agua empieza bajo la influencia de la evaporación y la infiltración lo que asegura la posibilidad de plantar los cultivos con tiempo (en octubre o noviembre). Los cultivos consumen la humedad residual en suelo (unos 100 mm) hasta el comienzo de las lluvias en diciembre. Así se prolonga le duración de crecimiento de las plantas, se aumenta la cantidad de agua disponible, y la producción agraria se ve beneficiada. No obstante, el éxito de las medidas de control de inundación todavía depende de la cantidad y distribución adecuada de las lluvias.
Referencias
- ↑ «Water harvesting and agricultural land development options for spate irrigation». Consultado el 1 de septiembre de 2010.
- ↑ Daanish Mustafa, 2014. The Necessity of Karez Water Systems in Balochistan. Middle East Institute. Internet: [1]
- ↑ ILRI, 1983. Modern interferences in traditional water resources in Baluchistan Published in Annual Report 1982, p. 23-33. International Institute for Land Reclamation and Improvement (ILRI), Wageningen, The Netherlands. Reprinted in Water Research Journal (1983) 139, p. 53-60. Also reprinted in Water International 9 (1984), p.106- 111. Elsevier Sequoia, Amsterdam. Internet: [2]
- ↑ ILRI, 2000. Irrigation, groundwater, drainage and soil salinity control in the alluvial fan of Garmsar. Consultancy assignment to the Food and Agriculture Organization (FAO) of the United Nations, International Institute for Land Reclamation and Improvement (ILRI), Wageningen, The Netherlands. Internet: [3]
- ↑ Majid Ehteshami, 2014, Assessment of Garmsar optimum drainage design using a succesful strategy for salinity control. Journal of River Engineering, Vol 2, Issue 6. Internet: [4] Archivado el 22 de abril de 2018 en Wayback Machine.
- ↑ R.J. Sevenhuijsen, R.J. Oosterbaan and K. Zijderveld, 1988. : The Punata-Tiraque irrigation project near Cochabamba, Bolivia. International Institute for Land Reclamation and Improvement (ILRI), Wageningen, The Netherlands. Internet: [5]
- ↑ Cecilia Saldías et al. 2012. Losing the watershed focus: a look at complex community-managed irrigation systems in Bolivia. Water International, 37:7, 744-759. Internet: [6]
- ↑ Wellington R.L. Masamba 2009. The Okvango River Basin Water Commission (OKACOM), 2012. Transboundary Diagnostic Analysis of the Botswana Portion of the Okavango River Basin, Output 3: Irrigation Development. The Okvango River Basin Water Commission (OKACOM). Internet: [7]
- ↑ R.J. Oosterbaan, L.F. Kortenhorst, and L.H.Sprey, 1987. Flood-recession cropping in the molapo's of the Okavango Inland Delta, Botswana. Published in Annual Report 1986, p. 8 – 19. International Institute for Land Reclamation and Improvement (ILRI), Wageningen, The Netherlands. On line: [8] Archivado el 25 de julio de 2011 en Wayback Machine.